EasyManua.ls Logo

olympia electronics BS-636 - Connecting the BS-489 Telephone Operator; BS-489 Operator Connection; Installation Guidelines; Mains Power Supply Connection

Default Icon
9 pages
Print Icon
To Next Page IconTo Next Page
To Next Page IconTo Next Page
To Previous Page IconTo Previous Page
To Previous Page IconTo Previous Page
Loading...
Installation
In order to meet EMC requirements , connections of peripherals to the panel must be done using
shielded cables.
(220-240V AC)
The panel has holes on the back side for all the wiring to pass through. You can connect cables with
max. Conductor diametre of 2.5mm to the panels terminal blocks.
The mains power supply wiring must use a double insulation cable.
The connection with the mains power supply must be done to the terminal blocks located on the panels
up left area. Figure 8 .
Battery connection
The battery compartment has the appropriate dimensions f o r Α-986 battery of olympia electronics.
The charging unit on PCB is also calculated for the specific battery. Replace the battery only with one of
the same type.
From the PCB, are connected two battery wires with a special terminal on the edge. They must be
connected to the two battery poles. Connect the black wire to the negative pole (marked (-) or a black
mark) and the red wire to positive pole (marked (+) or a red mark).
The installation of the panel must be carried out by qualified personnel only.
Disconnect power before servicing.
Never insert or remove boards or componets with the power on.
During installation use grounded antistatic wrist band to protect this equiment form ESD.
The panel must be installed permanetly. It is not allowed to connect the device directly to any socket-
outlet.
Mounting the panel to the wall
The site chosen for the location of the panel should be clean and dry and not subject to shock or
vibration.
In page 1 shows the mounting holes of the panel.
The panel must be placed above 1m from the floor and and 1m below the ceiling and must have
distance 30cm from any other devices. No other power lines must pass behind the panel, only the
supply cables of the panel.
Cabling
Each screen or shield braid must properly be connected to the earth terminal block provided, thus
ensuring the shortest posible path.
The maximum conductor diameter size , which can be terminated, is 2,5mm²
Connecting the mains power supply
The main supply must include an earth conductor connected to the fixed installation earthing system of the building.
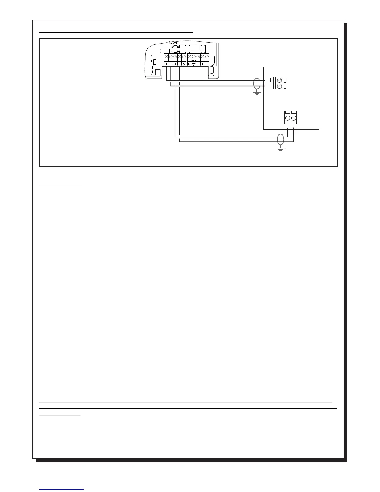
Figure 7. Connection diagram of BS-489 telephone operator.
24V_P
-
+
Mode 2 ON - Alarm
Mode 2 OFF - Fault
F_OUT
Fire Detection
Panel
In order to use the BS-489 in alarm
conditions
in
fault conditions
we must set the MODE
switch 2 to the ON position, while
we must set the MODE
switch 2 to the OFF position.
Connecting the BS-489 telephone operator
Page 6 from 9 921636000_09_023

Related product manuals