EasyManua.ls Logo

Omcan Imbera VR12 - Page 89

Default Icon
100 pages
Print Icon
To Next Page IconTo Next Page
To Next Page IconTo Next Page
To Previous Page IconTo Previous Page
To Previous Page IconTo Previous Page
Loading...
89
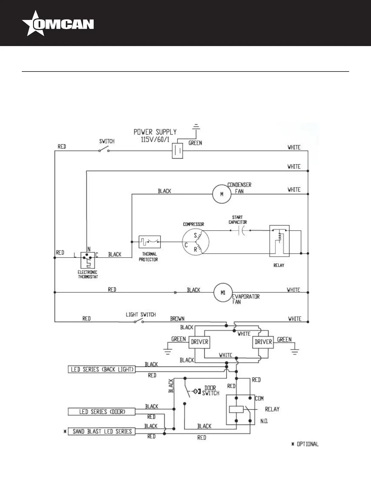
Electrical Schematics
Model G319 HC 45445
Model G319 41161

Related product manuals