EasyManua.ls Logo

Omron C200HW-PD024 - Page 134

Omron C200HW-PD024
241 pages
To Next Page IconTo Next Page
To Next Page IconTo Next Page
To Previous Page IconTo Previous Page
To Previous Page IconTo Previous Page
Loading...
Appendix BSpecifications
122
AC Input Unit C200H-IA121
Rated Input Voltage 100 to 120 VAC 50/60 Hz
Operating Input Voltage 85 to 132 VAC 50/60 Hz
Input Impedance
9.7 kW (50 Hz), 8 kW (60 Hz)
Input Current 10 mA typical (at 100 VAC)
ON Voltage 60 VAC min.
OFF Voltage 20 VAC max.
ON Response Time 35 ms max. (at 100 VAC, 25°C)
OFF Response Time 55 ms max. (at 100 VAC, 25°C)
No. of Circuits 1 (8 points/common)
Internal Current Consumption 10 mA 5 VDC max.
Weight 250 g max.
Dimensions A-shape
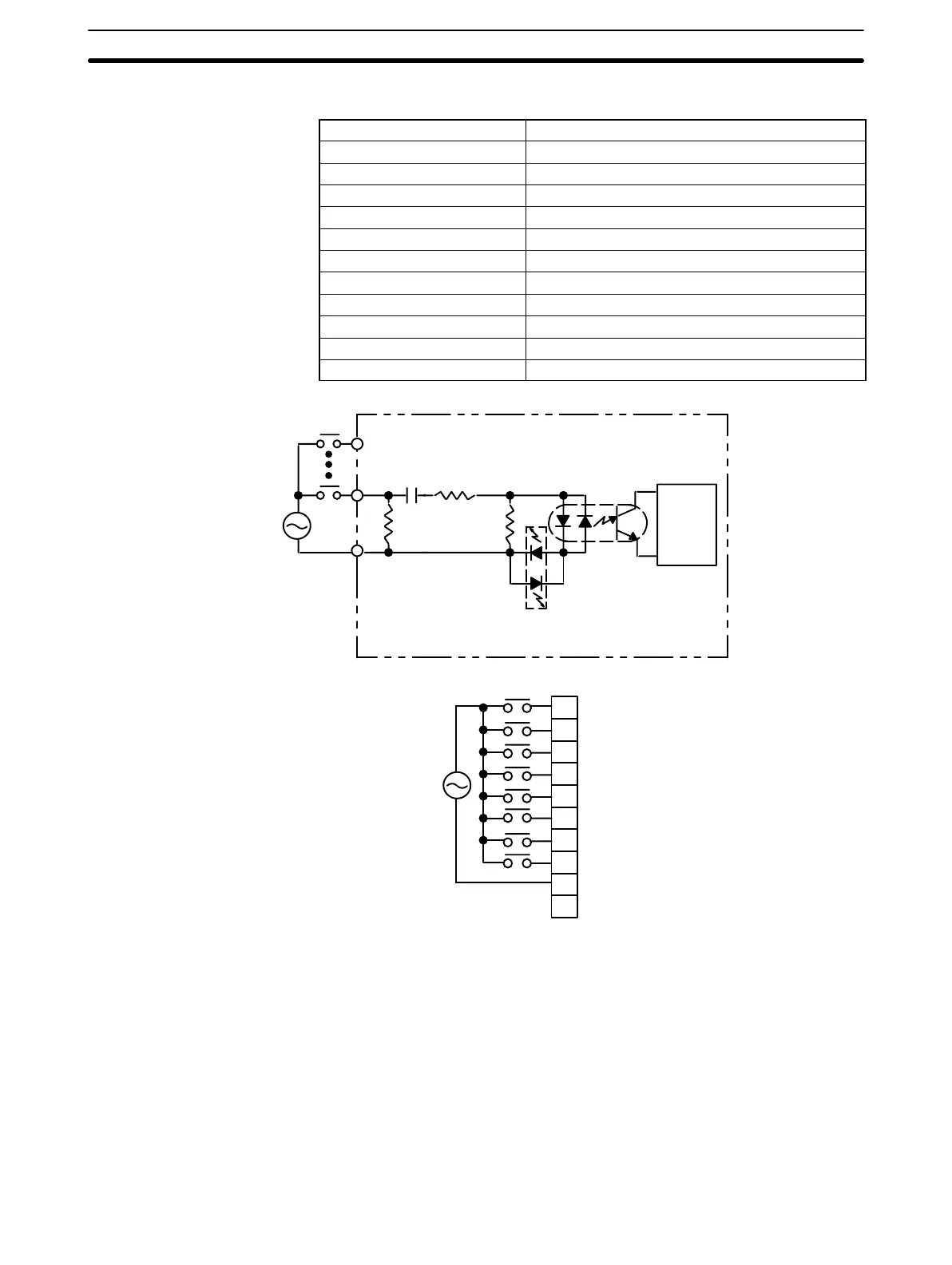
Circuit Configuration
IN
IN
COM
Internal
Circuit
100 to
120 VAC
470 W
Input indicator
0.33 mF
330 kW
910 W
Terminal Connections
COM
A0
A1
A2
A3
A4
A5
A6
A7
A8
A9
0
1
2
3
4
5
6
7
NC
100 to
120 VAC

Table of Contents

Related product manuals