EasyManua.ls Logo

Omron C200HW-PD024 - Page 137

Omron C200HW-PD024
241 pages
To Next Page IconTo Next Page
To Next Page IconTo Next Page
To Previous Page IconTo Previous Page
To Previous Page IconTo Previous Page
Loading...
Appendix BSpecifications
125
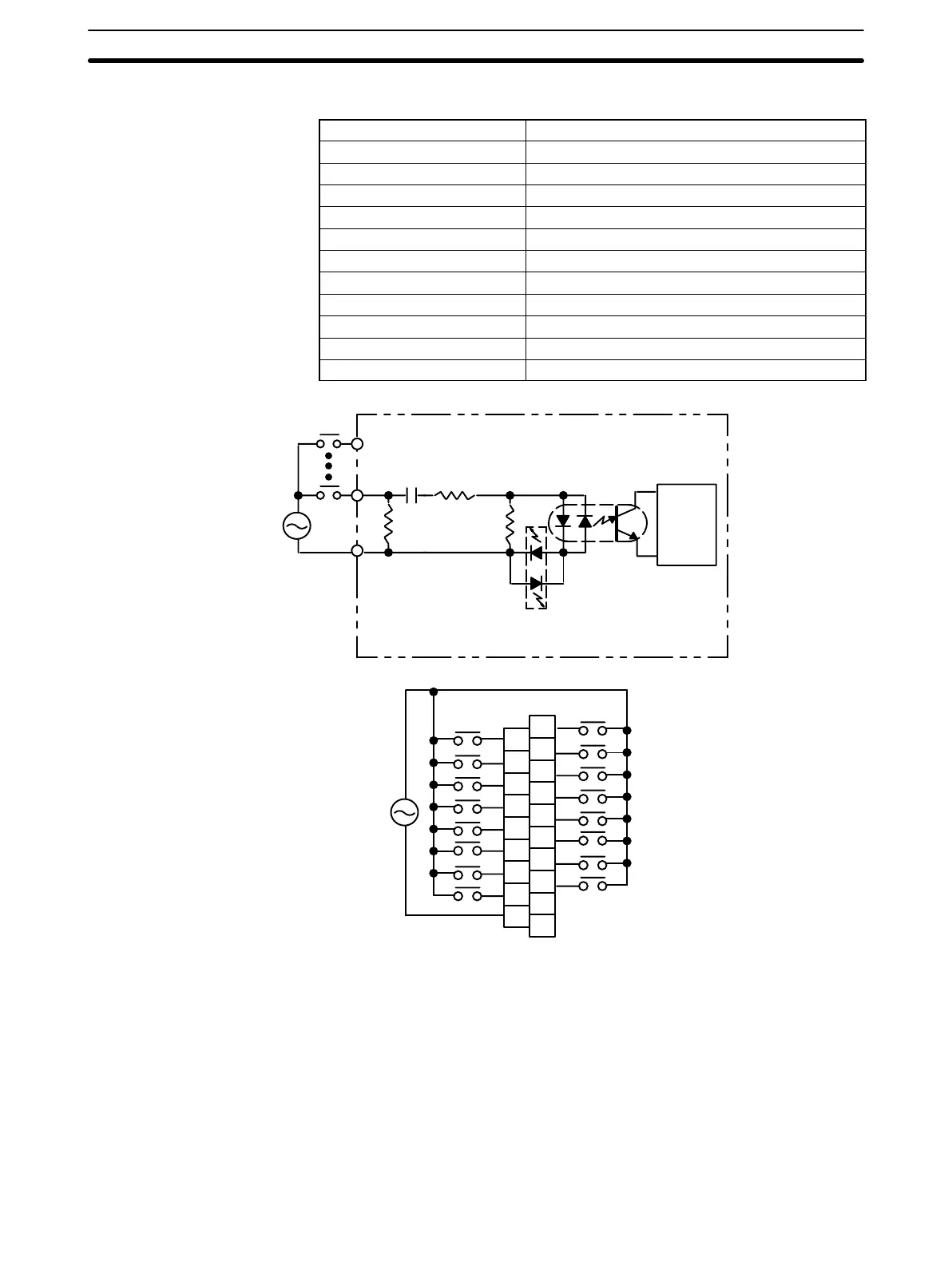
AC Input Unit C200H-IA222/IA222V
Rated Input Voltage 200 to 240 VAC 50/60 Hz
Operating Input Voltage 170 to 264 VAC 50/60 Hz
Input Impedance
21 kW (50 Hz), 18 kW (60 Hz)
Input Current 10 mA typical (at 200 VAC)
ON Voltage 120 VAC min.
OFF Voltage 40 VAC max.
ON Response Time 35 ms max. (at 200 VAC, 25°C)
OFF Response Time 55 ms max. (at 200 VAC, 25°C)
No. of Circuits 1 (16 points/common)
Internal Current Consumption 10 mA 5 VDC max.
Weight 300 g max./400 g max. (IA222V)
Dimensions B-shape
Circuit Configuration
IN
IN
COM
Internal
Circuit
200 to
240 VAC
Input indicator
680
0.15 mF
680 kW
910
Terminal Connections
A0
A1
A2
A3
A4
A5
A6
A7
A8
B0
B1
B2
B3
B4
B5
B6
B7
B8
B9
COM
1
3
5
7
9
11
13
15
NC
0
2
4
6
8
10
12
14
NC
200 to
240 VAC

Table of Contents

Related product manuals