EasyManua.ls Logo

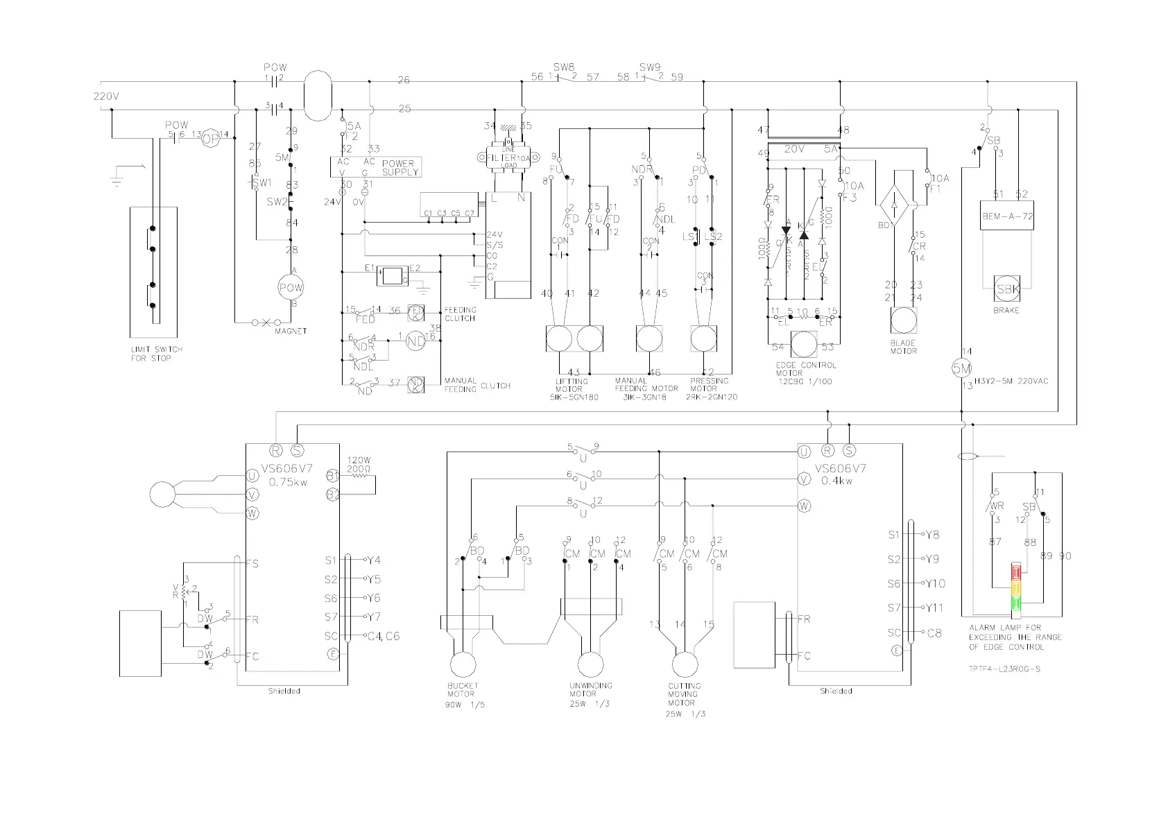
OSHIMA K5 - K5 n Power Circuit Diagram

Default Icon
76 pages
Print Icon
To Next Page IconTo Next Page
To Next Page IconTo Next Page
To Previous Page IconTo Previous Page
To Previous Page IconTo Previous Page
Loading...
吐布馬達
M6
red
w hite
violet
yellow
blue
M2
M3
3芯電纜線
1.25m m
2
升降馬達
M5
B
brow n
粉紅
GND
M4
black
V O 1+
FB s-B 2D A
green
pink
light
green
gray
orange
警示燈對邊超越
K 5n Pow er C ircuit
081022
K 5n 電力配線圖
押布馬達
M7
M8
對邊馬達
平行線
5 M IN SW ITC H O FF
五分鐘關機
煞車離合器
圓刀馬達
M9
緊急停 B
人機
R EA C TO R
電抗器
FB s-B 2D A
FB s-8EY T
FB s-32M C T
PLC
緊急停 A
V 1 U 2
W 1 V 2
U 1 W 2
M A N U A L M O V IN G
GND
FB s-B 2D A
V O 0+
M A C H IN E
M O TO R
R U N IN G
M
G
B
W
R
41