EasyManua.ls Logo

OTC 1750 - Page 10

OTC 1750
24 pages
Print Icon
To Next Page IconTo Next Page
To Next Page IconTo Next Page
To Previous Page IconTo Previous Page
To Previous Page IconTo Previous Page
Loading...
Utilización de la placa adaptadora universal para montar un motor
Figura 3
1. Verifique que el mecanismo de bloqueo de la manija
en el soporte del motor esté enganchado antes de
montar el motor. Consulte la Figura 5.
2.
Seleccione una placa adaptadora de motor que
tenga el patrón de pernos correcto para que se le
pueda brindar el servicio al motor. Utilice la gráfica
de aplicaciones provista con la placa adaptadora
para determinar qué orificios de los pernos se
adaptan al modelo específico del motor.
3. Asegure el motor a la placa adaptadora del motor
utilizando los espaciadores, pernos y arandelas
especificados en la gráfica de aplicaciones. Apriete
los pernos con una llave. Consulte la Figura 3.
4. Fije las placas laterales a la placa adaptadora del
motor, pero deje los tornillos de tapa y las tuercas
sueltas.
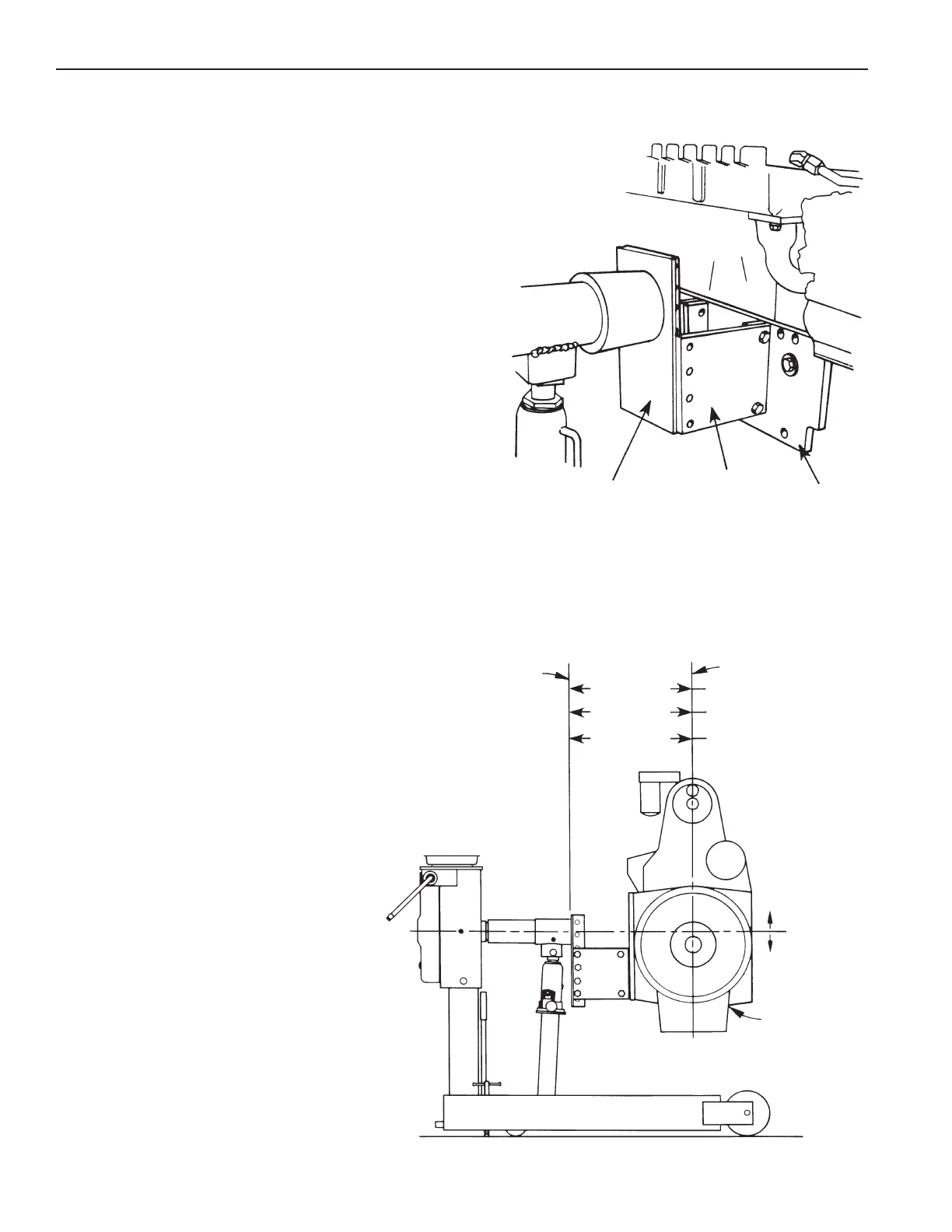
5. Consulte la Figura 4. Alinee el motor (con las
placas laterales fijadas a la placa adaptadora) con
la placa adaptadora universal sobre el soporte del
motor. Eleve o baje el motor hasta que su cetro
de balance esté alineado con el eje giratorio del
soporte del motor.
Nota: El centro de balance del
Placa
adaptadora
universal
Placa
lateral
Placa
adaptadora
del motor
Línea central
del motor
Superficie del cubo
de montaje
635 mm (25 pulg.)
508 mm (20 pulg.)
330 mm (13 pulg.)
1815 kg (4000 lbs.)
2268 kg (5000 lbs.)
2722 kg (6000 lbs.)
Figura 4
Centro de
gravedad
dentro de
50.8 mm
(2.0 pulg.)
en todas las
direcciones
Motor
motor (la mayor concentración de peso)
usualmente se encuentra 50.8 mm (dos
pulgadas) por encima del centro del
cigüeñal.
6. Alinee los agujeros roscados más
cercanos en la placa adaptadora
universal con los agujeros en las placas
laterales. Ajuste firmemente las placas
laterales a la placa adaptadora del motor
en el motor y a la placa adaptadora
universal en el soporte del motor.
Instrucciones de ensamble y funcionamiento Formulario No. 102302, hoja 2 de 3, reverso

Related product manuals