EasyManua.ls Logo

Palfinger PLR - Page 16

Palfinger PLR
39 pages
Print Icon
To Next Page IconTo Next Page
To Next Page IconTo Next Page
To Previous Page IconTo Previous Page
To Previous Page IconTo Previous Page
Loading...
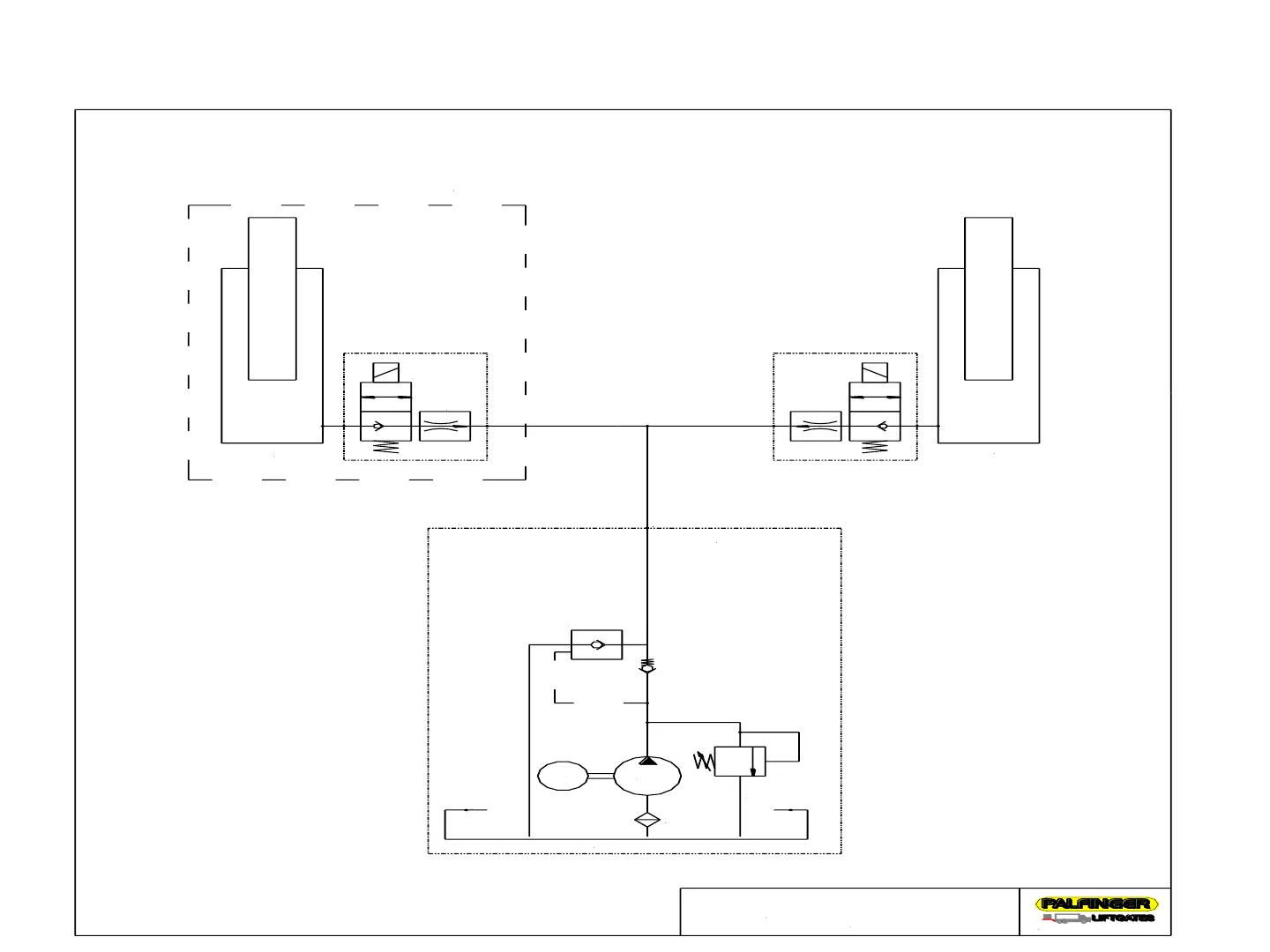
PLR Gravity Down-Hydraulic Schematic
"A"
PLR Gravity Down
USA Hydraulic Schematic
Discontinued on liftgate S/N: PT-10598
15939 Piuma Ave. Cerritos, CA 90703
R1 R2
S1 S2
Lift Cylinder
Lift Cylinder
S1 & S2 - Release Valve for Lowering
R1 & R2 - Flow Restrictor for limiting lower speed.
Raise = M
Lower = S1+S2
Port
Pump Unit
Filter
Pump
Reservoir Tank
Motor
Breather
"A"
M
Pilot to Close
Check Valve
Pump Unit M-3441-0104
Dual Cylinder Option
Relief Valve PSI:
Dual Cylinder: 2200
Single Cylinder: 2850
16

Related product manuals