EasyManua.ls Logo

Panasonic CS/CU-YW9DKE - Block Diagram

Panasonic CS/CU-YW9DKE
65 pages
To Next Page IconTo Next Page
To Next Page IconTo Next Page
To Previous Page IconTo Previous Page
To Previous Page IconTo Previous Page
Loading...
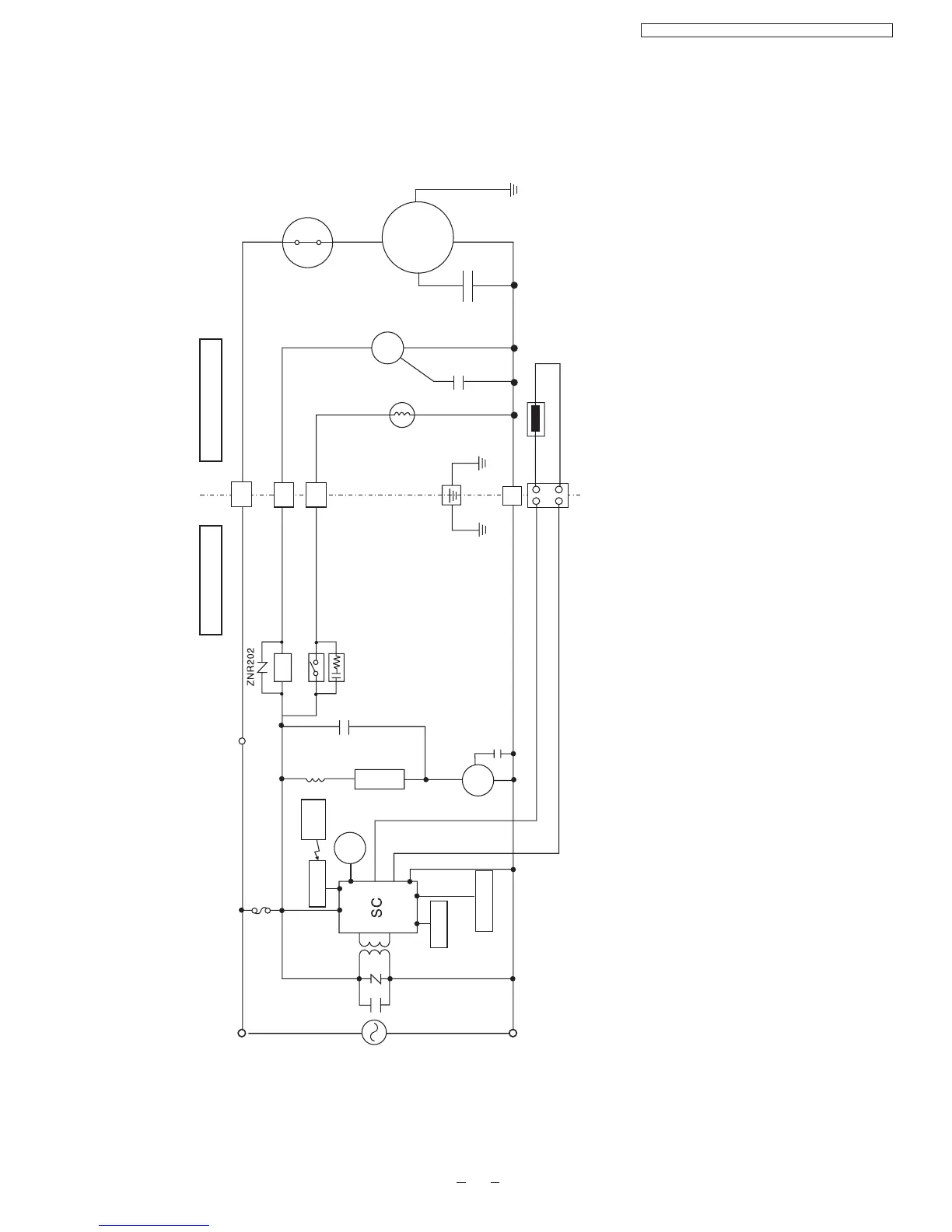
CS-YW9DKE/CU-YW9DKE
6 Block Diagram
FM
FM
2
CR201
3
4
1
RY-HOT
SSR202
SSR201
FUSE
RY-PWR
OUTDOOR UNIT
Receiver
Remote
Control
FM
4-Valve
Compressor
Sensor
Indicator
Piping Sensor
O.L.P.
INDOOR UNIT
13
POWER SUPPLY
AC230V 50Hz
CS-YW12DKE/CU-YW12DKE
CS-YW9DKE / CU-YW9DKE / CS-YW12DKE / CU-YW12DKE

Related product manuals