EasyManua.ls Logo

Panasonic CS-E28PKR - Outdoor Unit

Panasonic CS-E28PKR
205 pages
Print Icon
To Next Page IconTo Next Page
To Next Page IconTo Next Page
To Previous Page IconTo Previous Page
To Previous Page IconTo Previous Page
Loading...
71
11.3 Outdoor Unit
11.3.1 Install the Outdoor Unit
After selecting the best location, start installation to Indoor/Outdoor Unit Installation Diagram.
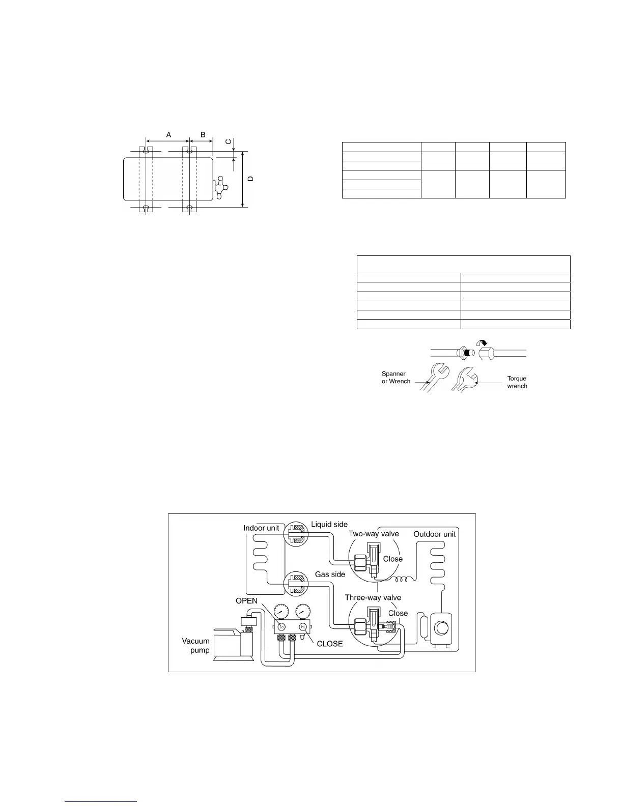
1 Fix the unit on concrete or rigid frame firmly and horizontally by bolt nut (ø10 mm).
2 When installing at roof, please consider strong wind and earthquake.
Please fasten the installation stand firmly with bolt or nails.
Model A B C D
E7***
540 mm 160 mm 18.5 mm 330 mm
E9***, E12***
E15***
613 mm 131 mm 16 mm 360.5 mm
E18***, E21***
E24***
11.3.2 Connect the Piping
Connecting the piping to indoor
Please make flare after inserting flare nut (locate at
joint portion of tube assembly) onto the copper pipe.
(In case of using long piping)
Connect the piping
Align the center of piping and sufficiently tighten
the flare nut with fingers.
Further tighten the flare nut with torque wrench in
specified torque as stated in the table.
Connecting the piping to outdoor
Decide piping length and then cut by using pipe cutter.
Remove burrs from cut edge.
Make flare after inserting the flare nut (locate at valve)
onto the copper pipe.
Align center of piping to valve and then tighten with
torque wrench to the specified torque as stated in the
table.
11.3.3 Evacuation of the Equipment
WHEN INSTALLING AN AIR CONDITIONER, BE SURE TO EVACUATE THE AIR INSIDE THE INDOOR UNIT AND
PIPES in the following procedure.
1 Connect a charging hose with a push pin to the Low side of a charging set and the service port of the 3-way
valve.
o Be sure to connect the end of the charging hose with the push pin to the service port.
2 Connect the center hose of the charging set to a vacuum pump.
3 Turn on the power switch of the vacuum pump and make sure that the needle in the gauge moves from
0 cmHg (0 MPa) to -76 cmHg (-0.1 MPa). Then evacuate the air approximately ten minutes.
Do not overtighten, overtightening may cause gas leakage.
Piping size Torque
6.35 mm (1/4”) [18 N•m (1.8 kgf.m)]
9.52 mm (3/8”) [42 N•m (4.3 kgf.m)]
12.7 mm (1/2”) [55 N•m (5.6 kgf.m)]
15.88 mm (5/8”) [65 N•m (6.6 kgf.m)]
19.05 mm (3/4”) [100 N•m (10.2 kgf.m)]

Table of Contents

Other manuals for Panasonic CS-E28PKR

Related product manuals