EasyManua.ls Logo

Panasonic CS-PS24NKV

Panasonic CS-PS24NKV
108 pages
To Next Page IconTo Next Page
To Next Page IconTo Next Page
To Previous Page IconTo Previous Page
To Previous Page IconTo Previous Page
Loading...
14
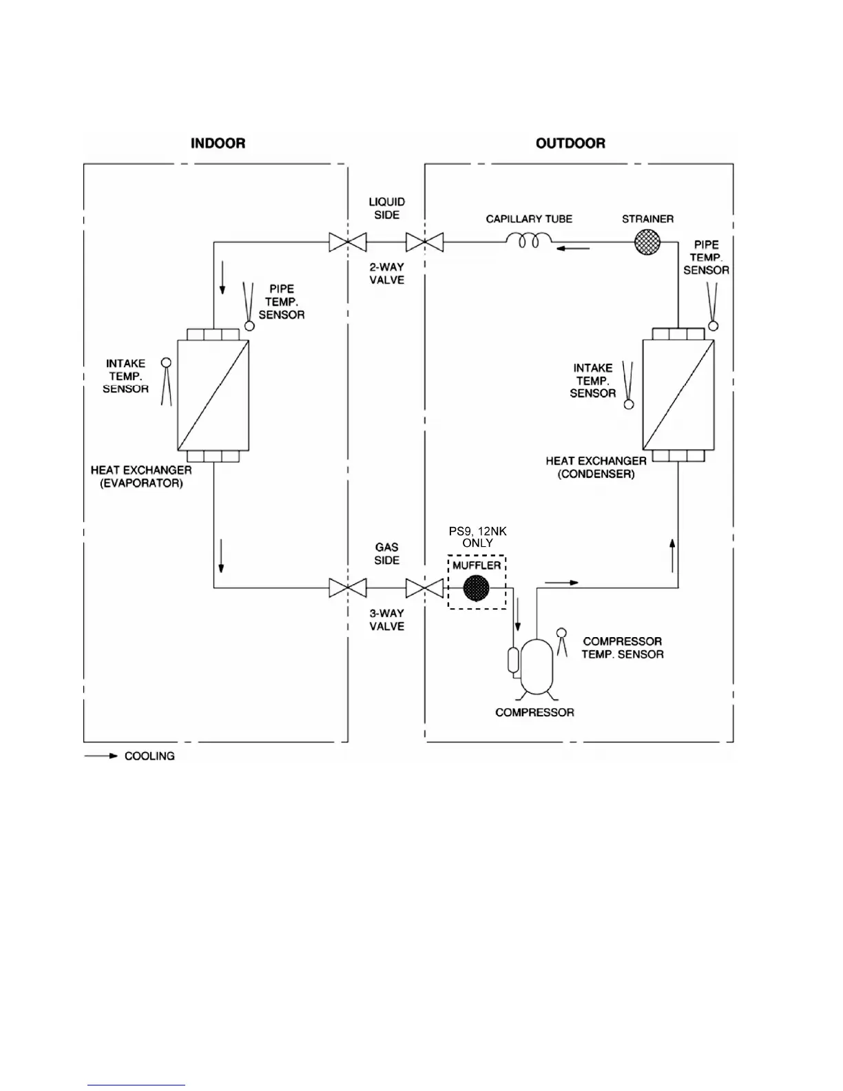
5. Refrigeration Cycle Diagram
5.1 CS-PS9NKV CU-PS9NKV CS-PS12NKV CU-PS12NKV

Table of Contents

Related product manuals