EasyManua.ls Logo

Panasonic CS-PW9CKE

Panasonic CS-PW9CKE
65 pages
To Next Page IconTo Next Page
To Next Page IconTo Next Page
To Previous Page IconTo Previous Page
To Previous Page IconTo Previous Page
Loading...
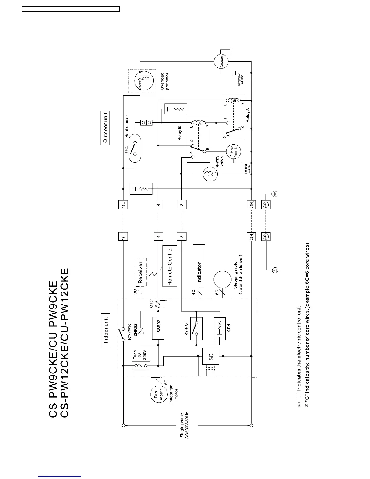
5 Block Diagram
12
CS-PW9CKE / CU-PW9CKE / CS-PW12CKE / CU-PW12CKE
Panasonic ilmalämpöpumput korjaa ja huoltaa pääkaupunkiseudulla: Jäähdytinpalvelu RefGroup Oy
www.ilmalämpöpumput.com

Related product manuals