EasyManua.ls Logo

Panasonic CS-S12NKUW-1

Panasonic CS-S12NKUW-1
30 pages
To Next Page IconTo Next Page
To Next Page IconTo Next Page
To Previous Page IconTo Previous Page
To Previous Page IconTo Previous Page
Loading...
13
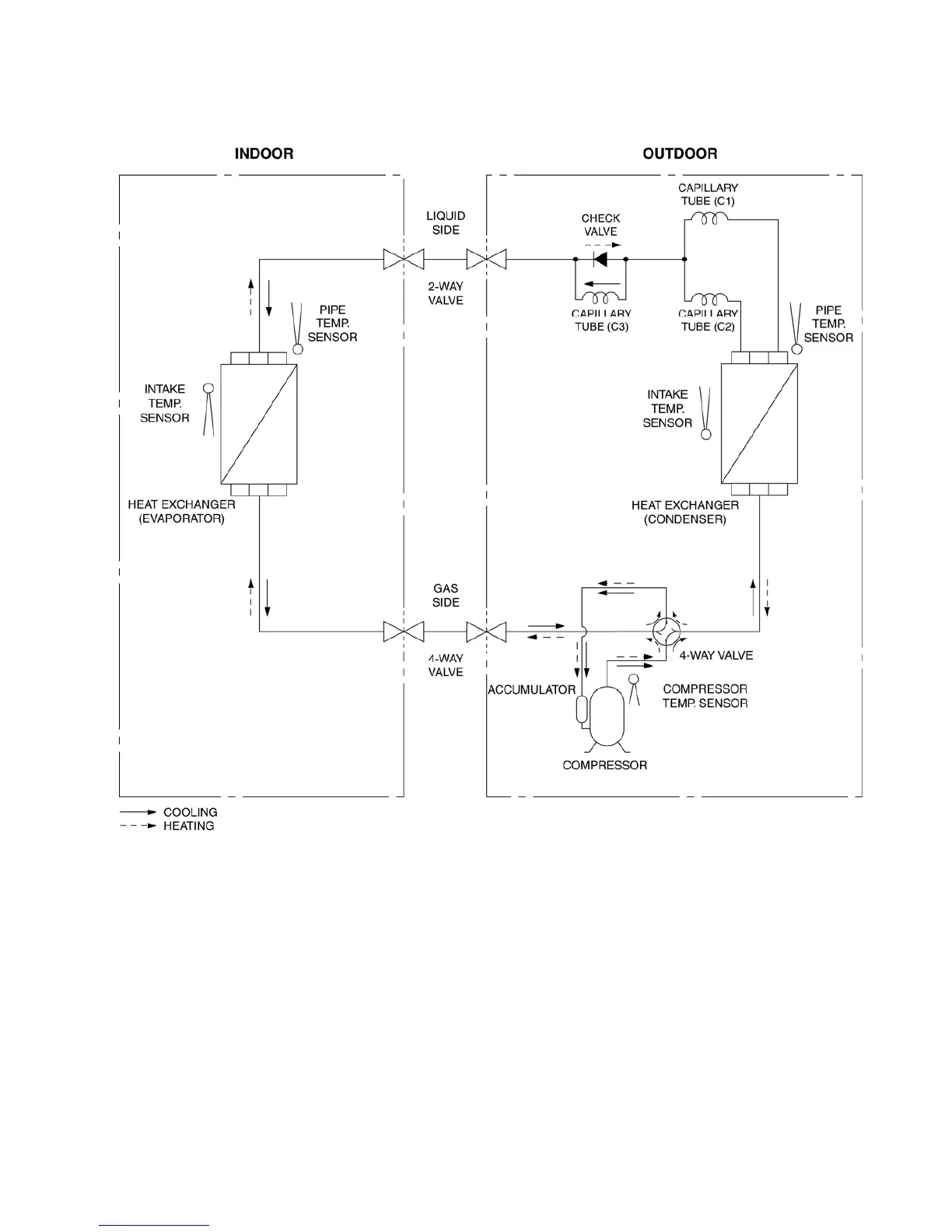
5. Refrigeration Cycle Diagram
5.1 CS-S9NKUW-1 CU-S9NKU-1 CS-S12NKUW-1 CU-S12NKU-1

Other manuals for Panasonic CS-S12NKUW-1

Related product manuals