EasyManua.ls Logo

Panasonic CU-A120KE - Wiring Diagram; CS-A70 KE; CU-A70 KE Wiring Diagram

Panasonic CU-A120KE
63 pages
Print Icon
To Next Page IconTo Next Page
To Next Page IconTo Next Page
To Previous Page IconTo Previous Page
To Previous Page IconTo Previous Page
Loading...
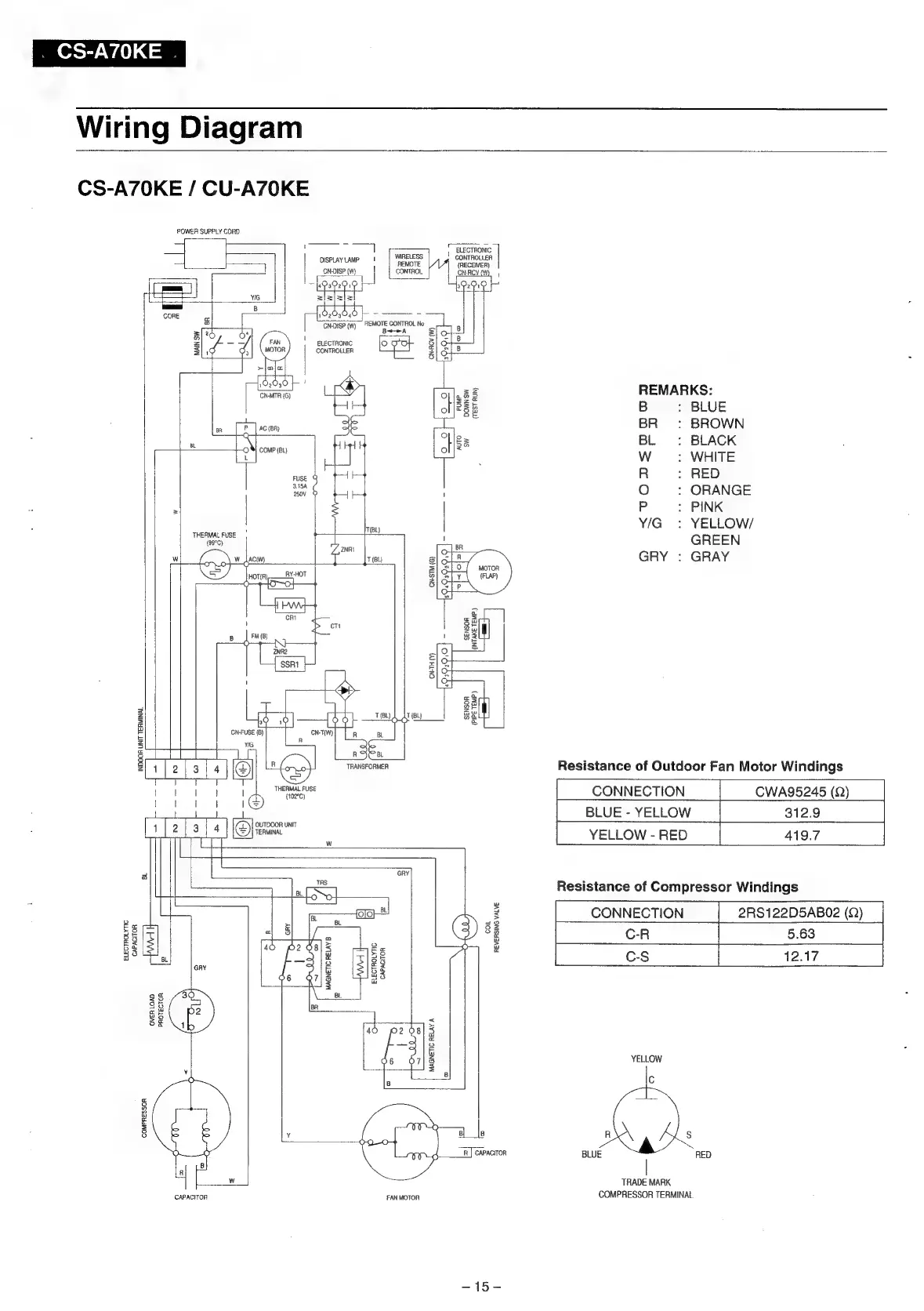
CS-A70KE
Wiring
Diagram
CS-A70KE
/
CU-A70KE
POWER
SUPPLY
CORD
4
|
osuvine
|
[HERES],
4
notes
|
|
om
Peccc
ae
ao
B
pis
Es
a
j
REMOTE
CONTROL
No
J
2
4
w)
Bae
A
=
8B
7
Vg
‘ELECTRONIC
yo
2
.
Sli
3
CONTROLLER
Z
oe
a
i
ieee
REMARKS:
rye
|
of
Ee
B
:
BLUE
ae
TP
acceny
3
I
BR
:
BROWN
a
Ea
rity
te
“I
85
BL
:
BLACK
L
alah
W
>:
WHITE
ruse
4
f+
R
:
RED
ua
¢
4
O
:
ORANGE
=
ss
P
:
PINK
|
ae
Y/G
:
YELLOW/
ae
i
GREEN
w
w_JAciw)
T
Ti6u)
GRY
:
GRAY
HOT(R)
RY-HOT
ae
3h
z
T
(6)
BH
ia
g
1{2lal4
9]
a
TRANSFORMER
Resistance
of
Outdoor
Fan
Motor
Windings
T T
'@
THERMAL
FUSE
|
CONNECTION
CWA95245
(Q)
[=
ete
BLUE
-
YELLOW
312.9
OUTDOOR
UNIT
‘Taya
|
«)i@herr
YELLOW-RED
|
419.7
7
Resistance
of
Compressor
Windings
x
3
|
CONNECTION
2RS122D5AB02
(Q)
al
:
58
|
C-R
5.63
gels
a
Al
:
[
es
12.17
GRY
i
5s
g
YELLOW
¥
3
C
5
Y
Bl
|e
R
s
R
|
CAPACITOR
BLUE
RED
B
w
TRADE
MARK
CAPACITOR
FAN
MOTOR
COMPRESSOR
TERMINAL
-~15-

Related product manuals