EasyManua.ls Logo

Panasonic CU-A12CKP5 - Evacuation of Installation

Panasonic CU-A12CKP5
90 pages
To Next Page IconTo Next Page
To Next Page IconTo Next Page
To Previous Page IconTo Previous Page
To Previous Page IconTo Previous Page
Loading...
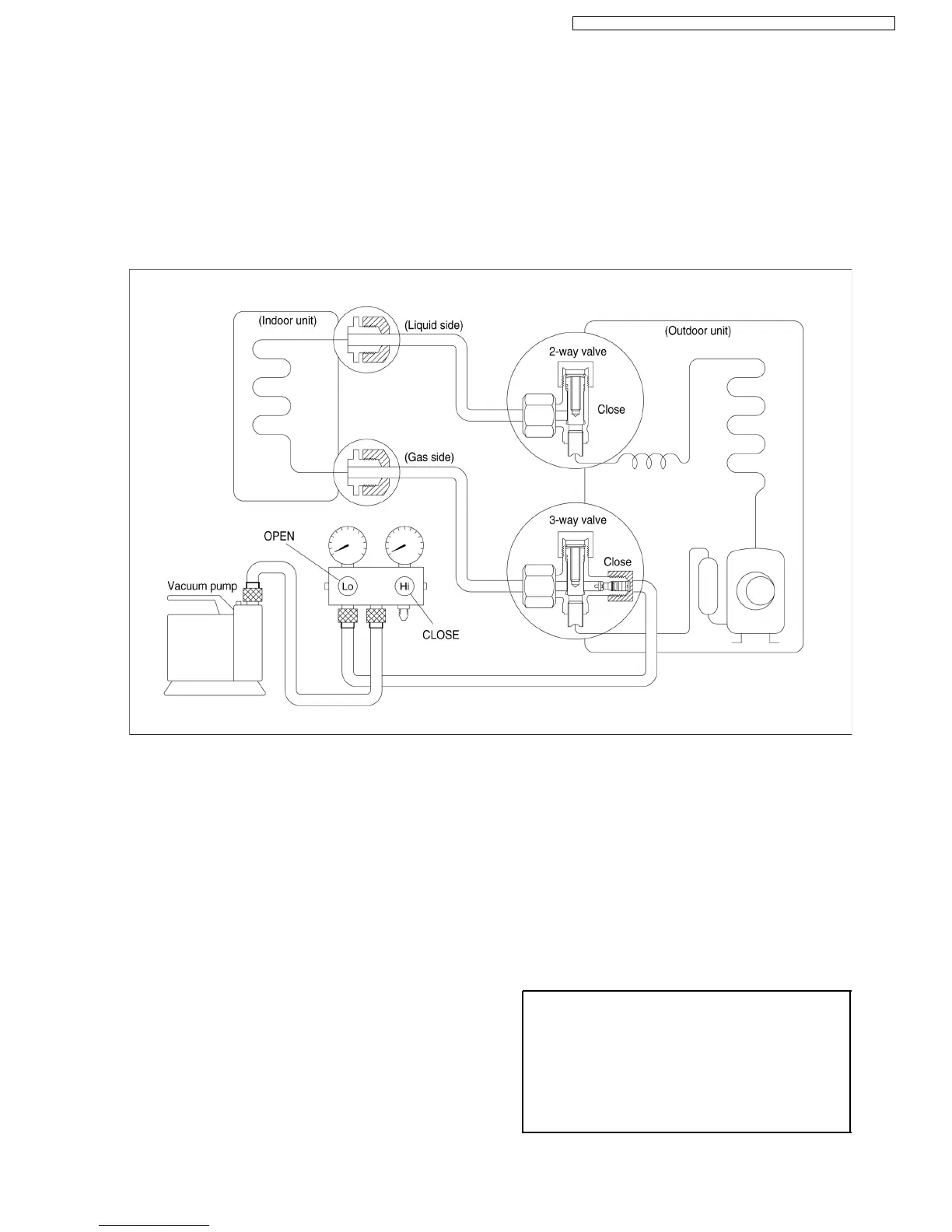
11.1.1. Evacuation of Installation
WHEN INSTALLING AN AIR CONDITIONER, BE SURE TO
EVACUATE THE AIR INSIDE THE INDOOR UNIT AND PIPES
in the following procedure.
1.
Connect a charging hose with a push pin to the Low
side of a charging set and the service port of a 3-way
valve.
Be sure to connect the end of the charging hose with the
push pin to the service port.
2.
Connect the centre hose of the charging set to a
vacuum pump.
3.
Turn on the power switch of the vacuum pump and
make sure that the needle in the gauge moves from 0
MPa (0 cmHg) to -0.1 MPa (-76 cmHg). Then evacuate
the air for approximately ten minutes.
4.
Close the Low side valve of the charging set and turn
off the vacuum pump. Make sure that the needle in the
gauge does not move after approximately five minutes.
BE SURE TO TAKE THIS PROCEDURE IN ORDER TO
AVOID GAS LEAKAGE.
If air remain in the indoor unit and refrigeration pipes, it will
affect the compressor, reduce to cooling capacity, and could
lead to a malfunction.
5.
Disconnect the charging hose from the vacuum pump
and from the service port of the 3-way valve.
6.
Tighten the service port cap at a torque of 18 N.m with
a torque wrench.
7.
Remove the valve caps of the 2-way valve and the 3-
way valve. Position both of the valves to open using
a hexagonal wrench (4 mm).
8.
Mount the valve caps onto the 2-way and 3-way valves.
Be sure to check for gas leakage.
Caution
If gauge needle does not move from 0 cmHg to -76
cmHg in step (3) above, take the following measures:
If the leaks stop when the piping connections are
tightened further, continue working from step (3).
If the leaks do not stop when the connections are
retightened, repair the location of the leak.
11.1. Evacuation of the Equipment (For Europe & Oceania Destination)
Procedure:
55
CS-A7CKP CU-A7CKP5 / CS-A9CKP CU-A9CKP5 / CS-A12CKP CU-A12CKP5

Other manuals for Panasonic CU-A12CKP5

Related product manuals