EasyManua.ls Logo

Panasonic CU-A12CKP5 - Page 85

Panasonic CU-A12CKP5
90 pages
To Next Page IconTo Next Page
To Next Page IconTo Next Page
To Previous Page IconTo Previous Page
To Previous Page IconTo Previous Page
Loading...
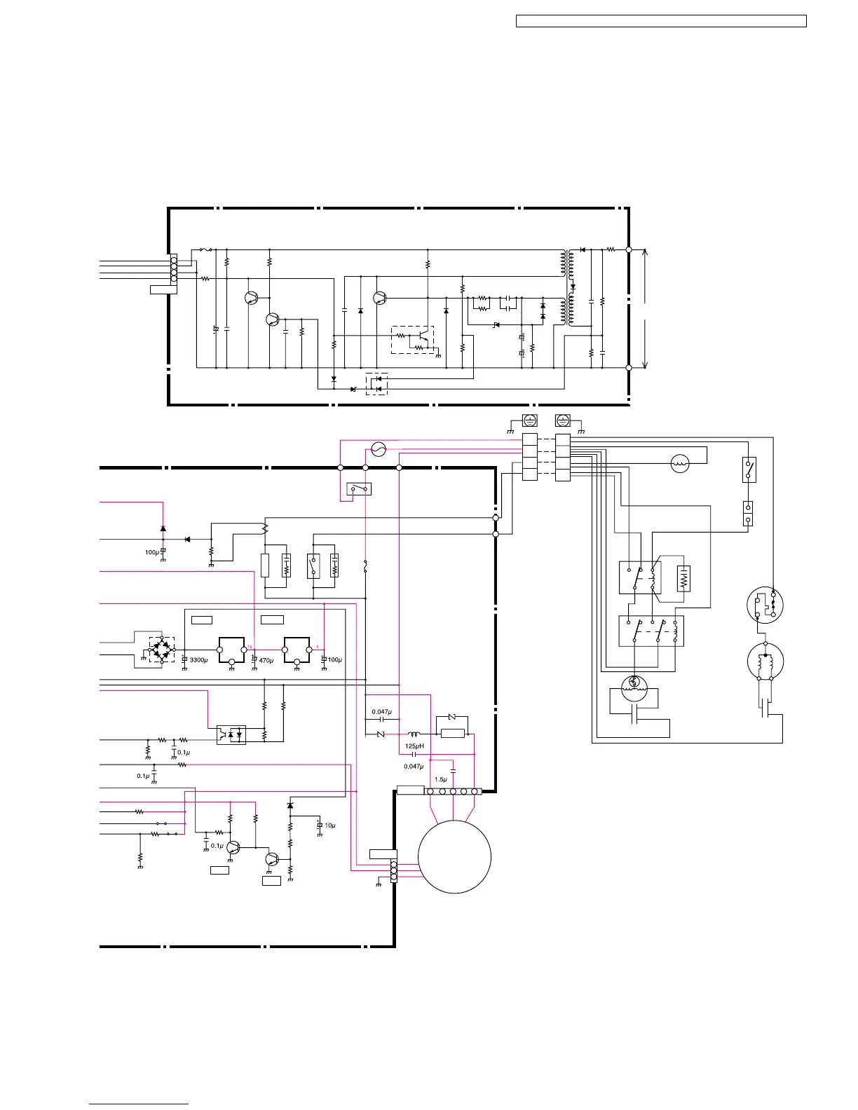
SCHEMATIC DIAGRAM 3/3
IC03
G
I
16V
C11
5V12V
I
G
IC04
C17
35V
(NHG)
DB01
C14
25V
1k
R36
50/60Hz
AC 220-240V
MOTOR
FAN
CN-FM
5431
CN-FB1
(PH-3)
RY-PWR
250V
2A
AC
(WHT)
511U
ZNR01
REGULATOR
REGULATOR
+
~
~
C12
400V
C-FM
C03
SSR01
511U
ZNR03
L01
C19
510
R48
39k/2W
R47
39k/2W
R57
820
R03
4.7k
R29
3.9k
R26
3
41
2
PC01
C07
10k
R40
JX3
24k
R42
RX1
R43
C18
c
e
b
R50
100k
R49
1k
R51
10k
c
e
b
6.2k
R54
10k
R53
6.2k
R52
ZD1
7.5EL1
D13
D14
RB501V-40
Q05
Q06
50V
C21
GENERATION
RESET SIGNAL
GENERATION
RESET SIGNAL
2
FUSE
CT01
O O
10k
R35
3
2
1
16V
C09
+
SSR02
RY-HOT
CR02
CR01
FM(BLU)
HOT(RED)
EH-4P
CH1
VIN
GND
ERR
4
3
2
1
F1
C2 C1
Q1
Q2
Q4
Q5
R2
R16
c
e
b
4.7k
10k
e
b
c
C3 R4
R3
R3
D2
Z01
D1
c
e
b
C3
D1
D3
R14
R13
R9
R15
R10
R102
-5.7kV
R101
HV
CN2
R12
C5
D6
D5
C10
C9
C6
Z02
c
e
b
R6
T01
D101
D102
C*
C7
GND
CN3
1
2
3
4
1
2
3
4
COIL REVERSING VALVE
ELECTROLYTIC
CAPACITOR
MAGNETIC RELAY B
BL/B
BL
BL
FAN MOTOR
CAPACITOR
CAPACITOR
OVER LOAD
PROTECTOR
COMPRESSOR
TRS
BL
BL
3
314
4
1
28
28
67
567
BL/B
BL
GRY
GRY
GRY
Y
Y
R
OBR
BB
B
B
R
B
B
R
MAGNETIC
RELAY A
85
CS-A7CKP CU-A7CKP5 / CS-A9CKP CU-A9CKP5 / CS-A12CKP CU-A12CKP5

Other manuals for Panasonic CU-A12CKP5

Related product manuals