EasyManua.ls Logo

Panasonic CU-A181KE - Wiring Diagram; CS-A181 KE; CU-A181 KE, CS-A241 KE; CU-A241 KE; Resistance Measurements

Panasonic CU-A181KE
50 pages
Print Icon
To Next Page IconTo Next Page
To Next Page IconTo Next Page
To Previous Page IconTo Previous Page
To Previous Page IconTo Previous Page
Loading...
– 12 –
MAC9512086C2
CS-A181KE
FAN MOTOR
CAPACITOR
654
(PIPE TEMP.)
SENSOR SENSOR
(AIR TEMP.)
PNK
YLW
ORG
RED
BRW
CN-STMCN-TH (YLM)
1324
MOTOR
THERMAL FUSE (102°C)
YLW/GRN
21
AC(WHT)
FUSE (3.15A)
L
P
CN-MTR (GRN)
YLW
RED
BLU
MOTOR
FAN
1
AUTO SW
DOWN SW
PUMP
POWER SUPPLY CORD
CONTROLLER
ELECTRONIC
BA
CN-DISP (WHT)
WHT
WHT
RECEIVER+
CONTROLLER
ELECTRONIC
DISPLAY LAMP
CONTROL
REMOTE
WIRELESS
BLU
MAIN SW
1
2
3
4
YLW/GRN
240/220V, 50Hz
RED
RED
RED
RED
BRW
BLK
WHT
CONTROL No
TRANSFORMER
BLK
BLK
T (BLK)
ZNR
CN-T(WHT)
DEICE (BLU)
RY-HOT
3
312
4
4
CAPACITOR
(4-WAY VALVE)
COIL
TRANSFORMER1
ZNR2
COMP(VLT) AC(WHT)
TRANSFORMER2
RY-HOT
RY-V
FUSE (3.15A)
RY-DEICE
RY-OFF
1
SENSOR
(AIR TEMP.)
(PIPE TEMP.)
SENSOR
CN-TH(WHT)
BLU BLU
RED
BRW
RY-H/L
ORG
BLU
RED
YLW
WHT
YLW
WHT
VLT
BLU
BLK
TERMINAL
OUTDOOR UNIT
BRW
BLU
RED
INDOOR UNIT TERMINAL
RED
GRY
HOT2(BLK)HOT1(RED) DEICE (GRY)
ELECTRONIC
COMPRESSOR
V(BLU)
(2-WAY VALVE)
COIL
BLU
BLK
WHT
HOT(RED)
BLUE
YELL
O
TRADE
M
COMPRESSO
R
321
WHT
WHT
WHT
CN-DISP (WHT)
()
3
1
(113°C)
THERMAL FUSE
CN-FUSE1(BLU)
(TEMP.)
O.L.P.
ZNR4
T 3.15A L 250V
FUSE
ZNR
WHT
(YL
W
(BLU)
ZNR3
FM2(ORG) FM1(BRW)
CONTROLLER
2
4
3
3
2
1
2
1
2
3
4
6
5
T (BLK)
AC (BRW)
COMP(BLK)
CN-FUSE2
REMOTE
(SW1)
5
4
3
2
1
BLU
(A241K ONLY)
CORE
(A241K ONLY)
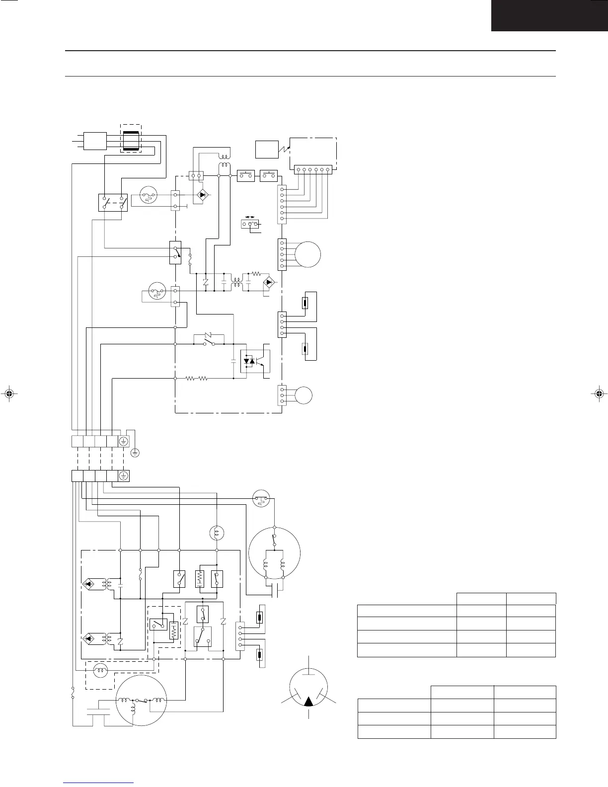
Wiring Diagram
CS-A181KE / CU-A181KE
CS-A241KE / CU-A241KE
CU-A181KE
CWA92294 ()
79.5
65.1
70.8
CU-A241KE
CWA92295 ()
46.8
64.6
73.7
CONNECTION
BLUE - BROWN
BROWN - ORANGE
RED - BROWN
Resistance of Outdoor Fan Motor Windings
CONNECTION
C-R
C-S
CU-A181KE
2JS350D3AA02 (
)
0.980
3.929
CU-A241KE
2JS464D3AA02 (
)
0.888
2.328
Resistance of Compressor Windings
REMARKS:
BLU : BLUE
BRW : BROWN
BLK : BLACK
WHT : WHITE
RED : RED
ORG : ORANGE
PNK : PINK
YLW : YELLOW
GRN : GREEN
GRY : GRAY
VLT : VIOLET
REDBLUE
YELLOW
TRADE MARK
COMPRESSOR TERMINAL
(YLW)
(BLU)
(RED)
Untitled-9 6/21/00, 10:18 AM12

Related product manuals