EasyManua.ls Logo

Panasonic CU-B34DBE8 - Position of the Centre Gravity

Panasonic CU-B34DBE8
156 pages
Print Icon
To Next Page IconTo Next Page
To Next Page IconTo Next Page
To Previous Page IconTo Previous Page
To Previous Page IconTo Previous Page
Loading...
50
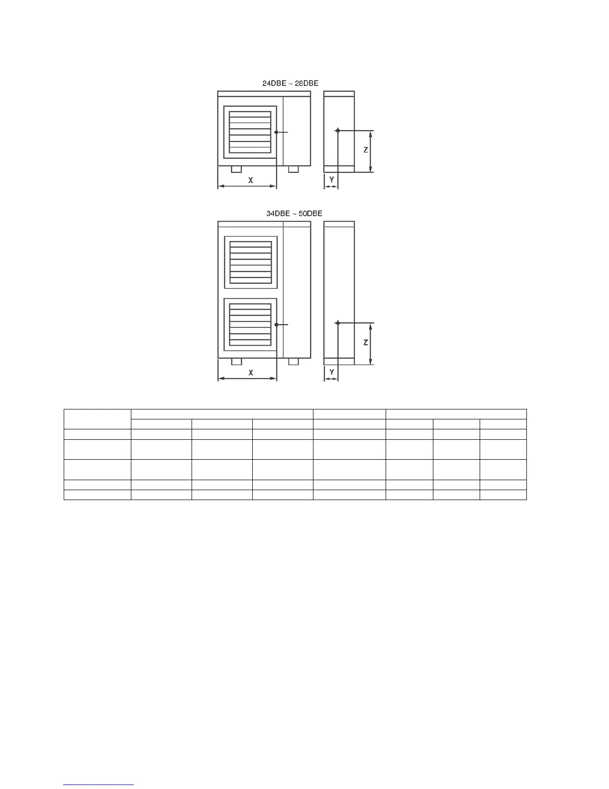
10.3. Position of the centre gravity
MODEL NAME OUTSIDE DIMENSIONS NET WEIGHT CENTRE OF GRAVITY
WIDTH (mm) DEPTH (mm) HEIGHT (mm) kg X (mm) Y (mm) Z (mm)
CU-B24DBE5 900 320 795 69 560 150 320
CU-B28DBE5 900 320 795 69 560 150 320
CU-B28DBE8
CU-B34DBE5 900 320 1170 102 560 150 450
CU-B34DBE8 100
CU-B43DBE8 900 320 1170 102 560 150 450
CU-B50DBE8 900 320 1170 102 560 150 450

Table of Contents

Other manuals for Panasonic CU-B34DBE8

Related product manuals