EasyManua.ls Logo

Panasonic CU-E12NKR - 6 Refrigeration Cycle Diagram; Cu-E7 Nkr

Panasonic CU-E12NKR
205 pages
Print Icon
To Next Page IconTo Next Page
To Next Page IconTo Next Page
To Previous Page IconTo Previous Page
To Previous Page IconTo Previous Page
Loading...
35
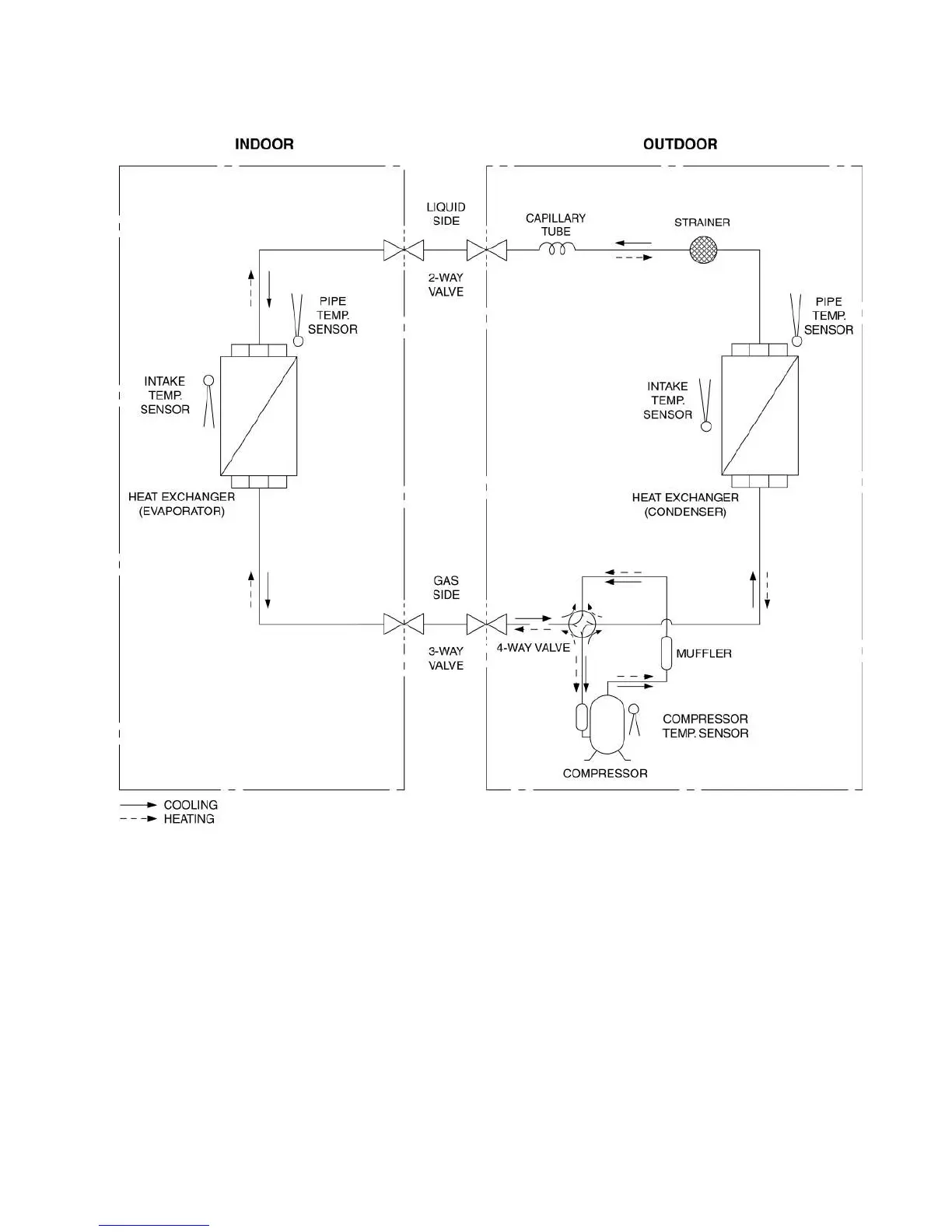
6. Refrigeration Cycle Diagram
6.1 CU-E7NKR

Table of Contents

Other manuals for Panasonic CU-E12NKR

Related product manuals