EasyManua.ls Logo

Panasonic CU-PC12QKH - Indoor Unit

Panasonic CU-PC12QKH
115 pages
Print Icon
To Next Page IconTo Next Page
To Next Page IconTo Next Page
To Previous Page IconTo Previous Page
To Previous Page IconTo Previous Page
Loading...
39
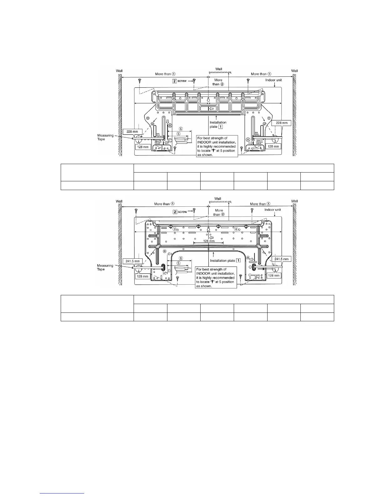
11.2 Indoor Unit
11.2.1 How to Fix Installation Plate
The mounting wall shall be strong and solid enough to prevent it from the vibration.
Dimension
Model
1 2 3 4 5 6
PC9***, PC12*** 480 mm 82 mm 425 mm 425 mm 93 mm 145 mm
Dimension
Model
1 2 3 4 5 6
PC18***, PC24*** 590 mm 82 mm 539 mm 532 mm 219 mm 269 mm
The center of installation plate should be at more than 1 at right and left of the wall.
The distance from installation plate edge to ceiling should more than 2.
From installation plate center to unit’s left side is 3.
From installation plate center to unit’s right side is 4.
B : For left side piping, piping connection for liquid should be about 5 from this line.
: For left side piping, piping connection for gas should be about 6 from this line.
1 Mount the installation plate on the wall with 5 screws or more (at least 5 screws).
(If mounting the unit on the concrete wall, consider using anchor bolts.)
o Always mount the installation plate horizontally by aligning the marking-off line with the thread and using
a level gauge.
2 Drill the piping plate hole with ø70 mm hole-core drill.
o Putting measuring tape at position as shown in the diagram above.
The hole center is obtained by measuring the distance namely 128 mm for left and right hole
respectively. Another method is intersection point of arrow mark extension.
The meeting point of the extension arrow mark is the hole center position.
o Drill the piping hole at either the right or the left and the hole should be slightly slanting to the outdoor
side. (refer to step 11.2.2)

Table of Contents

Other manuals for Panasonic CU-PC12QKH

Related product manuals