EasyManua.ls Logo

Panasonic CZ-CSRC3 - Dimensions; Installation Instructions; Supplied Accessories

Panasonic CZ-CSRC3
68 pages
To Next Page IconTo Next Page
To Next Page IconTo Next Page
To Previous Page IconTo Previous Page
To Previous Page IconTo Previous Page
Loading...
Optional Controller
Manual of Controller
2 - 15
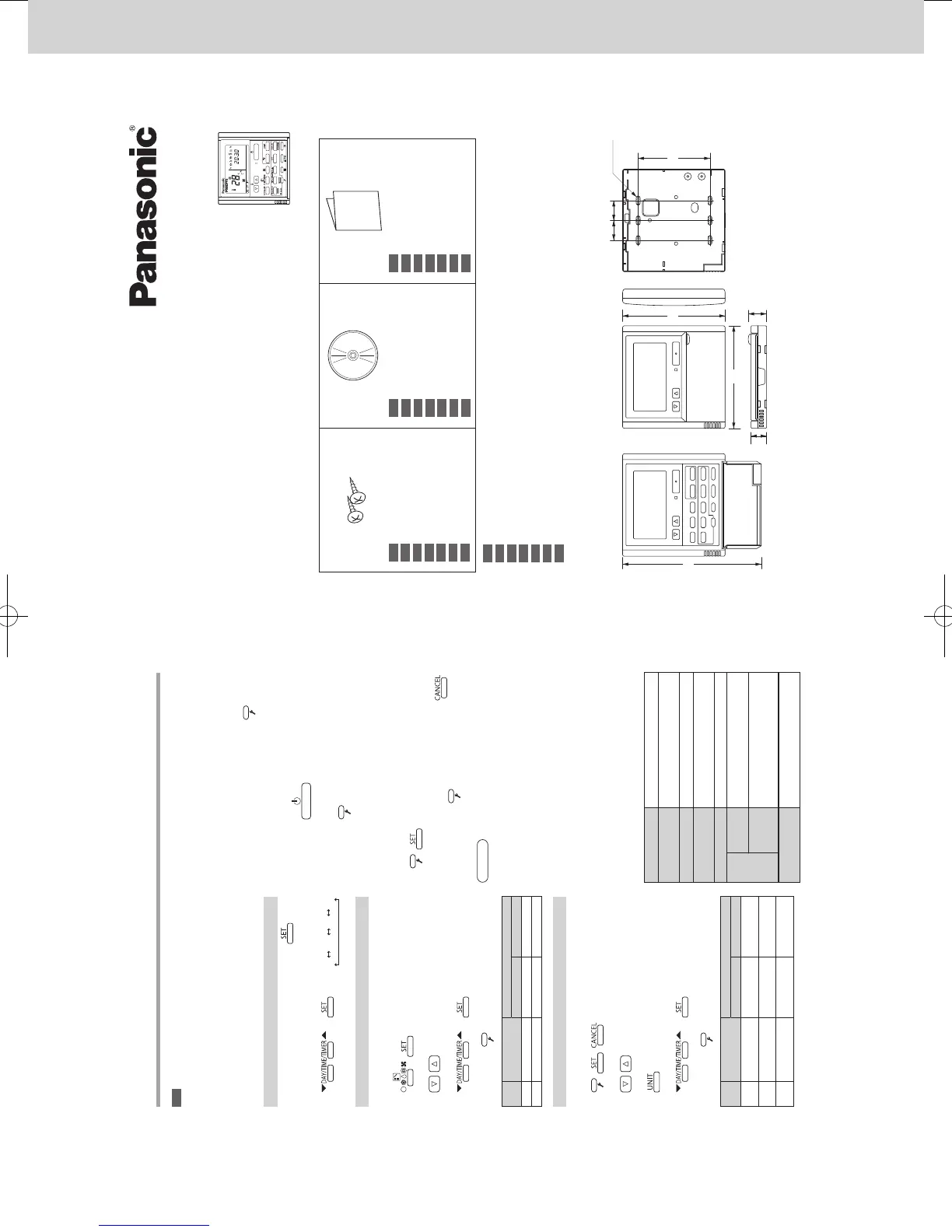
1. Timer Remote Controller (CZ-RTC4)
Installation Instructions
Model No.
CZ-RTC4
85464369802020
A
°
Supplied accessories
EN
Screw M3.8 × 16
FR
Vis M3,8 × 16
ES
Tornillo M3,8 × 16
DE
Schraube M3,8 × 16
IT
Vite M3,8 × 16
PT
Parafusos M3,8 × 16
GR
Βίδα M3,8 × 16
EN
Operating Instructions
FR
Mode d’emploi
ES
Instrucciones de funcionamiento
DE
Bedienungsanleitung
I T
Istruzioni per l’uso
PT
Instruções de operação
GR
Οδηγίες Λειτουργίας
EN
Quick Reference
FR
Référence rapide
ES
Referencia rápida
DE
Kurzanleitung
I T
Riferimento rapido
PT
Consulta rápida
GR
Σφιγκτήρας
EN
*Remote control wiring is not supplied. ( eld supplied item)
FR
*Le cable de la télécommande n’est pas fourni. (fourniture chantier)
ES
*El cableado del mando a distancia no se suministra. (elemento suministrado por separado)
DE
*Das Kabel für die Fernbedienung ist bauseits bereitzustellen.
IT
*Il cablaggio del telecomando non è fornito. (articolo fornito sul campo)
PT
*A cablagem do controlo remoto não éfornecida. (Itemadquirido localmente)
GR
*Η καλωδίωση του τηλεχειριστηρίου δεν παρέχεται. (εξοπλισμός εγκατάστασης)
(2)
(1)
(1)
Dimensions
(mm)
24.75
23 23 6-4.7x10.7
20
120
167
83.5
120
CV6233317564
Installation Instructions Timer Remote Controller
Instructions d’installation
Télécommande avec programmation horaire
Instrucciones de instalación Controlador remoto del temporizador
Einbauanleitung Kabel-Fernbedienung mit Zeitschaltuhr
Istruzioni per l’installazione Telecomando del timer
Instruções de instalação Controlador remoto do temporizador
Οδηγίες Εγκατάστασης Τηλεχειριστήριο χρονοδιακόπτη
業務用リモコンCZ-RTC4据付書.indd1 2015/01/1518:24:09
Printed in China
H0515-0
Setting / Test operation / Speci cations
(Continued)
Ρύθμιση
Ρολόι (Clock)
Λειτουργία ρύθμισης ΤΧ (Κύρια/δευτερεύουσα, Τύπος ρολογιού)
Λειτουργία λεπτομερών ρυθμίσεων (Ρύθμιση εξόδου
ανεμιστήρα εξαερισμού, Αισθητήρας θερμοκρασίας
δωματίου, Ρύθμιση ένδειξης θερμοκρασίας)
Ρολόι (Clock)
1
Πατήστε και κρατήστε πατημένο το για
μερικά δευτερόλεπτα.
2
Ορίστε την ημέρα της εβδομάδας, την ώρα και τα λεπτά.
”: Su Mo Sa
(Επαναλάβατε)
Λειτουργία ρύθμισης ΤΧ (RC. setting mode)
1
Πατήστε και κρατήστε ταυτόχρονα πατημένα
τα 2 πλήκτρα για μερικά δευτερόλεπτα.
A
,
2
Επιλέξτε το Code no. (Αρ. κωδικού).
3
Επιλέξτε το Set data (Ορισμός δεδομένων).
Η ένδειξη αναβοσβήνει και κατόπιν μένει αναμμένη.
Πατήστε το .
Αρ.
Κωδικού
Στοιχείο
Ορίστε τα δεδομένα
0000 0001
01 Κύριο/δευτερεύον Δευτερεύον Κύριο
02 Τύπος ρολογιού
24 ώρες 12 ώρες (ΠΜ/ΜΜ)
Λειτουργία λεπτομερών ρυθμίσεων (Detailed setting mode)
1
Πατήστε και κρατήστε ταυτόχρονα πατημένα
τα 3 πλήκτρα για μερικά δευτερόλεπτα.
, ,
2
Επιλέξτε το Code no. (Αρ. κωδικού).
3
Επιλέξτε το Αρ. μονάδας.
4
Επιλέξτε το Set data (Ορισμός δεδομένων).
Η ένδειξη αναβοσβήνει και κατόπιν μένει αναμμένη.
Πατήστε το .
Αρ.
Κωδικού
Στοιχείο
Ορίστε τα δεδομένα
0000 0001
31
Ρύθμιση εξόδου
ανεμιστήρα εξαερισμού
Μη συνδεδεμένος
Συνδεδεμένος
32
Αισθητήρας
θερμοκρασίας δωματίου
Κύρια συσκευή ΤΧ
33
Ρύθμιση ένδειξης
θερμοκρασίας
°C °F
Δοκιμαστική Λειτουργία
Ανοίξτε τον ασφαλειοδιακόπτη εκ των προτέρων,
ανατρέχοντας στις οδηγίες λειτουργίας για τη μονάδα.
Ξεκινά το τηλεχειριστήριο.
1
Πατήστε και κρατήστε πατημένο το για
μερικά δευτερόλεπτα.
Εμφανίζεται η οθόνη [TEST]. (Η μονάδα εισέρχεται
σε κατάσταση δοκιμαστικής λειτουργίας.)
2
Πατήστε το . Πραγματοποιήστε τη
δοκιμαστική λειτουργία.
Κατά τη δοκιμαστική λειτουργία εμφανίζεται το [TEST].
3
Πατήστε το . Ολοκληρώστε τη δοκιμαστική
λειτουργία.
Εξαφανίζεται η ένδειξη [TEST] (Δοκιμαστική λειτουργία).
4
Διαγράψτε το ιστορικό σφαλμάτων.
Πατήστε και κρατήστε ταυτόχρονα πατημένα
τα 2 πλήκτρα για μερικά δευτερόλεπτα.
,
Εμφανίζονται πληροφορίες για σφάλματα.
Για να διαγράψετε το ιστορικό σφαλμάτων, πατήστε το .
Πιέστε τοκουμπί για να τερματίσετε τοντρόπο
λειτουργίας συντήρησης.
Προσοχή
Μην χρησιμοποιείτε αυτή τη λειτουργία για σκοπούς
άλλους της δοκιμαστικής λειτουργίας. (Για την
αποφυγή της υπερφόρτωσης των μονάδων)
Διαβάστε τις οδηγίες εγκατάστασης που παρέχονται
με τις μονάδες.
Πραγματοποιούνται μόνο οι λειτουργίες Heat
(Θέρμανση), Cool (Ψύξη) και Fan (Ανεμιστήρας).
Η θερμοκρασία δεν μπορεί να αλλάξει.
Η δοκιμαστική λειτουργία απενεργοποιείται
αυτόματα μετά από 60 λεπτ
ά. (Για την αποφυγή
συνεχούς δοκιμαστικής λειτουργίας)
Οι εξωτερικές μονάδες δεν λειτουργούν για περίπου 3 λεπτά
μετά την ενεργοποίηση της ισχύος ή τη διακοπή της λειτουργίας.
Προδιαγραφές
Αρ. Μοντέλου
CZ-RTC4
Διαστάσεις
(Υ) 120 mm × (Π) 120 mm
× (Β) 20+4,75 mm
Βάρος 160 g
Εύρος Θερμοκρασίας/
Υγρασίας
0 C έως 40 C / 20 % έως 80 % (Χωρίς
συμπύκνωση υδρατμών) *Εσωτερική χρήση μόνο.
Τροφοδοσία
DC16 V (παρέχεται από την εσωτερική μονάδα)
Ρολόι
Ακρίβεια
± 30 δευτερόλεπτα/μήνα (σε κανονική
θερμοκρασία 25 C) *Ρυθμίζετε περιοδικά.
Χρόνος
αναμονής
24 ώρες (Από την πλήρη φόρτιση)
*Περίπου Απαιτούνται 8 ώρες για
πλήρη φόρτιση.
Αριθμός συνδεδεμένων
εσωτερικών μονάδων
Έως 8 μονάδες
GR Ρύθμιση / Δοκιμαστική Λειτουργία / Προδιαγραφές
業務用リモコンCZ-RTC4据付書.indd24 2015/01/1518:24:08
SM830241-00_2WAY SYS.indb 15 2015/03/26 14:54:57

Table of Contents

Other manuals for Panasonic CZ-CSRC3

Related product manuals