EasyManua.ls Logo

Panasonic DMR-ES15EB

Panasonic DMR-ES15EB
154 pages
To Next Page IconTo Next Page
To Next Page IconTo Next Page
To Previous Page IconTo Previous Page
To Previous Page IconTo Previous Page
Loading...
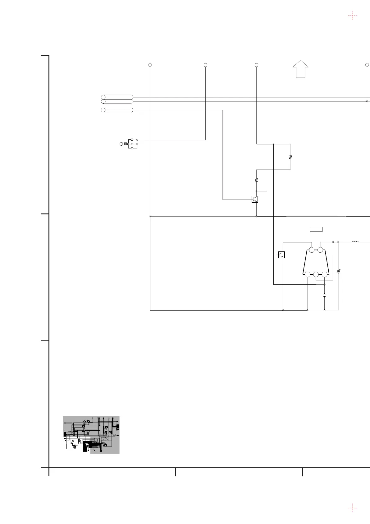
13.5. Main Net (3/4) Section (Main P.C.B. (1/4)) Schematic Diagram (M)
LB7418
J0JCC0000103
LB7419
J0JCC0000103
J0JCC0000103
LB7410
LB7417
J0JCC0000103
1800
R7448
LB7415
J0JCC0000103
3 21
K9ZZ00001279
ZJ7406
G_RPROUT_D_A
G_BPBOUT_D_A
G_CIN_DM_A
G_V_YIN_DM_A
G_GPYOUT_D_A
G_MIXLOUT_A
G_MIXROUT_A
XMPREQ
AU_5V
G_SCLK_A
XINTM
XINTP
G_SBMTP_A
G_SBPTM_A
G_AADC_R_A
AU_GND
XDMUTE
G_AADC_L_A
G_COUT_DM_A
G_YOUT_DM_A
J0JCC0000164
LB7406
LB7414 J0JCC0000164
LB7413 J0JCC0000164
LB7416 J0JCC0000164
P7402
TO P59001
DIGITAL P.C.B.
(MODEL SELECT SECTION)
K1KY64A00001
C1502
0.1
2 4
1 3 5
C0DAZJH00003
IC1501
R1510
11K[D]
25V220C1506
VWJ0795
L1501
1500[D]
R1511
0.1
C1525
2 4
1 3 5
C0DAEYH00002
IC1506
39K[D]
R1509
C1524 F2A1A101A389
F2A1A470A388C1523
321
ZJ7401
K9ZZ00001279
DR_P_ON_H
ANA5V
P_OFF_L
QR1502
UNR521300L
R1519 4700
R1518
4700
QR1501
UNR521300L
AV
T
T
VIN VOUT
DR5V
GNDON[H] SENSE
AV
AV
AV
AV
AV
AV
T
T
T
T
T
T
AV
AV
AV
AV
AV
AV
AV
GND VINVo
DR12V
(M6520)
SENSEON[H]
AV
DGND
51
55
53
DGND41
43
DGND33
DGND
21
25
29
31
27
23
35 DGND
3
7
5
1
SCLK
11
15
19
17
13
9
AU5V
XINTP
SBPTM
AUGND
AUGND
AUGND
SBMTP
XINTM
XDMUTE
AADC_R
AADC_L
XMPREQ
39
37 DGND
DGND49
DGND45
47
BPBOUT_DM
COUT_DM
YOUT_DM
RPROUT_DM
MIXLOUT_DM
MIXROUT_DM
GPYOUT_DM
CPNCIN_DM63
DGND61
DGND57
59
V_YIN_DM
A B C
D
E F
G
1
2
3
4
5
7
6
54321
C
B
A
A
TO
MAIN NET SECTION
(1/4)
NOTE:DO NOT USE THE PART NUMBER SHOWN ON THIS DRAWING FOR ORDERRING.
THE CORRECT PART NUMBER IS SHOWN IN THE PARTS LIST,AND MAY BE
SLIGHTLYDIFFERNT OR AMENDED SINCE THIS DRAWING WAS PREPARED.
(3/4) LOCATION MAP
DMR-ES15EB/EP/EC/EG/EBL
Main Net(3/4) Section
(Main P.C.B.(1/4))
Schematic Diagram(M)
M:Main Net Section:(Page: )
A
AV:A/V I/O Section:(Page: )
B
DE:Nicam Decoder Section:(Page: )
C
T:Timer Section:(Page: )
D
45

Other manuals for Panasonic DMR-ES15EB

Related product manuals