EasyManua.ls Logo

Panasonic FV-10VEC2 - START-UP PROCEDURE and Operation Overview; ERV Unit Startup Steps; Control Panel Functions

Panasonic FV-10VEC2
19 pages
Print Icon
To Next Page IconTo Next Page
To Next Page IconTo Next Page
To Previous Page IconTo Previous Page
To Previous Page IconTo Previous Page
Loading...
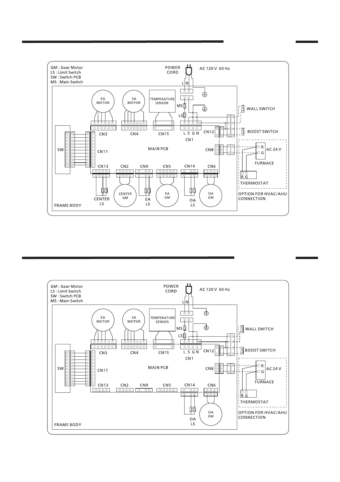
3. Wiring diagram
12
FV-10VEC2
FV-10VE2

Other manuals for Panasonic FV-10VEC2

Related product manuals