EasyManua.ls Logo

Panasonic S-140MF2E5A - Page 199

Panasonic S-140MF2E5A
360 pages
Print Icon
To Next Page IconTo Next Page
To Next Page IconTo Next Page
To Previous Page IconTo Previous Page
To Previous Page IconTo Previous Page
Loading...
4-93
VRF SYSTEMS Indoor Unit Specifi cations
1
2
3
4
5
6
7
8
9
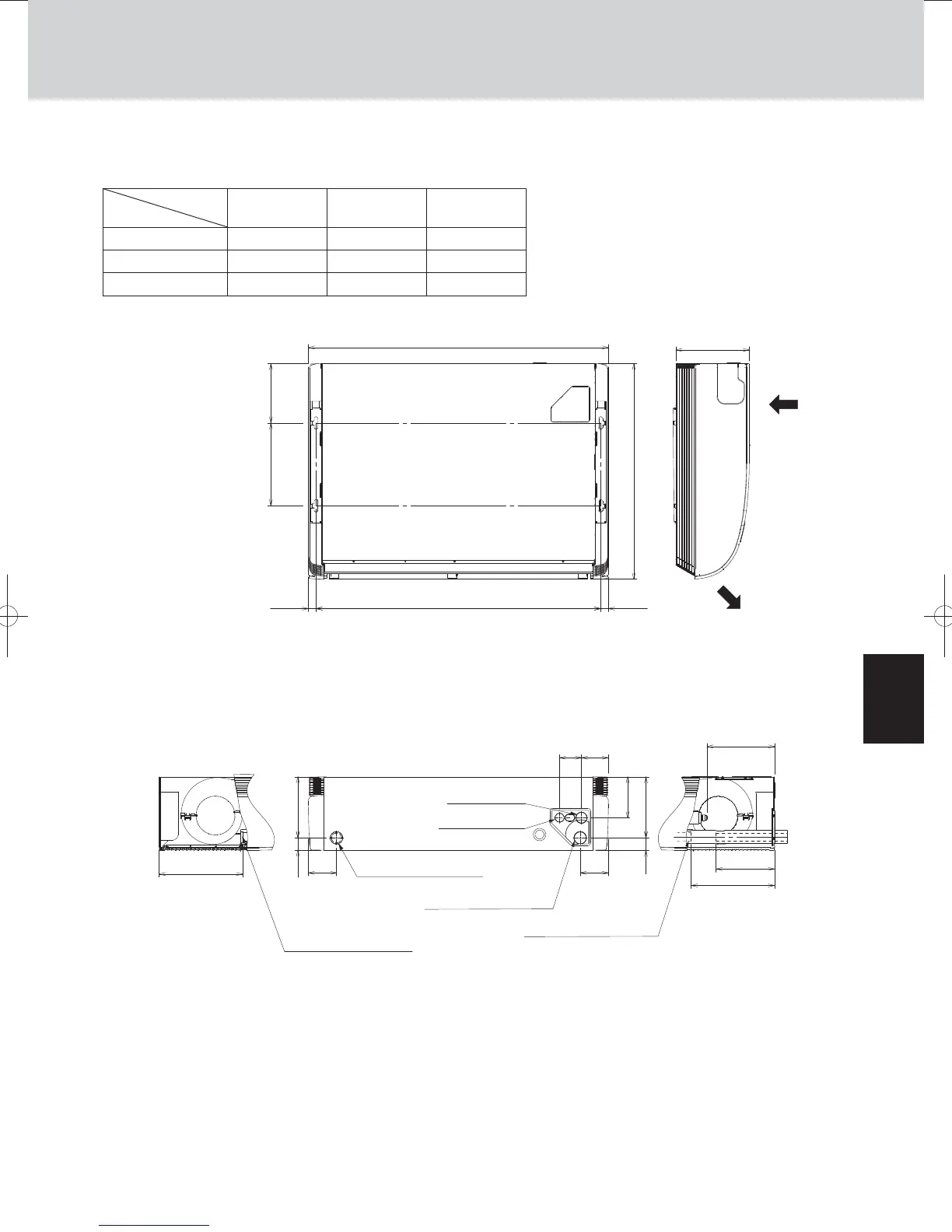
6. Ceiling Type (T2 Type)
6-3. Dimensional Data
Unit: mm
39
39
90
90
86
187
267
267
196
196
131
70
216
Rear (Figure shows view from front)Left side
Left drain position
Closed with rubber stopper
at time of shipment.
Left drain position
Right drain position
(Liquid tubing •
Gas tubing)
Right side
Gas tubing
Liquid tubing
Right drain position
Dimensions of suspension bolt pitch and unit
Refrigerant tubing • drain hose position
Length
Type
ABC
36, 45, 56
73
106, 140
911
1226
1541
960
1275
1590
235
235
235
265
190
24.5
(Suspension
bolt pitch)
Unit: mm
A
24.5
B
690
C
Air intake
Air discharge
(Suspension bolt pitch)
TD831172-00VRFSYSINDOOR.indb93TD831172-00VRFSYSINDOOR.indb93 2014/04/2416:49:292014/04/2416:49:29

Table of Contents

Other manuals for Panasonic S-140MF2E5A

Related product manuals