EasyManua.ls Logo

Panasonic S-140MF2E5A - Ceiling Opening Dimensions and Hanging Bolt Location; Positions of Air Conditioner Body and Ceiling Surface; 4-Way Cassette 60×60 (Y2 Type)

Panasonic S-140MF2E5A
360 pages
Print Icon
To Next Page IconTo Next Page
To Next Page IconTo Next Page
To Previous Page IconTo Previous Page
To Previous Page IconTo Previous Page
Loading...
2-21
Design of VRF SYSTEM
1
2
3
4
5
6
7
8
9
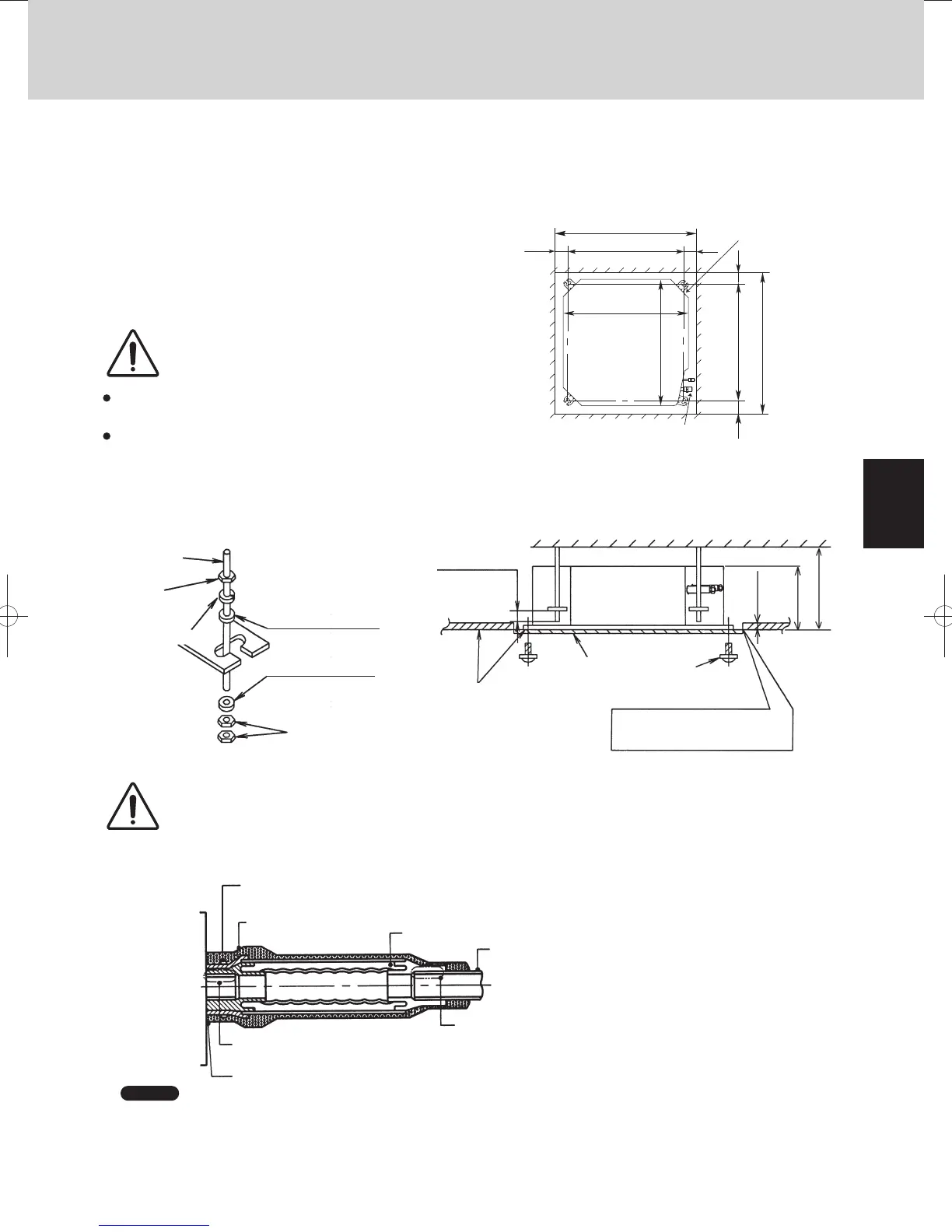
3. How to install the indoor unit
3-2-1. Preparation for Ceiling Suspension
This unit uses a drain pump. Use a carpenter’s level to check that the unit is level.
3-2-2. Ceiling Opening Dimensions and Hanging Bolt Location
3-2-3. Positions of Air Conditioner Body and Ceiling Surface
This air conditioner uses a drain up motor.
Horizontally install the unit using a carpenter’s level.
The paper model for installation expand or shrink
according to temperature and humidity.
Check on dimensions before using it.
During the installation, care must be
taken not to damage electric wires.
CAUTION
Tighten the nut and bolt to prevent unit from falling.
The dimensions of the paper model for installation are the
same as those of the ceiling opening dimensions.
Be sure to discuss the ceiling drilling work with the workers
concerned.
530
60
60
60
60
Drain pipe
650 (Ceiling opening)
(Unit: mm)
(Hanging bolt)
Refrigerant pipe
580 (Unit size)
530 (Hanging bolt)
650 (Ceiling opening)
580 (Unit size)
Fig. 2-30
Fig. 2-31 Fig. 2-32
Open the ceiling board along the
outer edge of the paper model.
Adjust to the
same height
Ceiling
Air conditioner
body
Paper model for
installation
Set screw for paper
model (4 pieces)
113 mm
282 mm
292 mm
and above
Keep the length
of the bolt from
the bracket to
40 mm
Hanging bolt
(W3/8 or M10)
Flat washer for M10
(accessory)
Flat washer for M10
(accessory)
Nut
(W3/8 or M10)
Nut
(W3/8 or M10)
M10 Spring
washer
WARNING
3-2. 4-Way Cassette 60×60 (Y2 type)
3-2-4. Installing the Drain Pipe
Heat insulator (Local
supply) (The thickness
must be at least 8 mm.)
Flexible hose with
heat insulator
(Accessory)
Hose clip (Accessory)
PVC pipe
(O.D. ø26)
(Local supply)
To be glued
It may be required to take off this part for checking or
servicing the drain up motor. Please do not glue.
Make sure that there is no clearance here.
Fig. 2-33
NOTE
Make sure the drain pipe has a downward slant (1/100 or more) and that there are no water traps.
TDxxxxxx-002WAYVRF.indb21TDxxxxxx-002WAYVRF.indb21 2014/01/3017:52:312014/01/3017:52:31

Table of Contents

Other manuals for Panasonic S-140MF2E5A

Related product manuals