EasyManua.ls Logo

Panasonic S-28MD1E5 - Contents of Remote Controller Switch Alarm Display

Panasonic S-28MD1E5
175 pages
To Next Page IconTo Next Page
To Next Page IconTo Next Page
To Previous Page IconTo Previous Page
To Previous Page IconTo Previous Page
Loading...
6 - 2
1. Contents of Remote Controller
Switch Alarm Display
Mini VRF SYSTEM
Trouble Diagnosis
6
1.Contents of Remote Controller
Switch Alarm Display
2WAY SYSTEM
Trouble Diagnosis
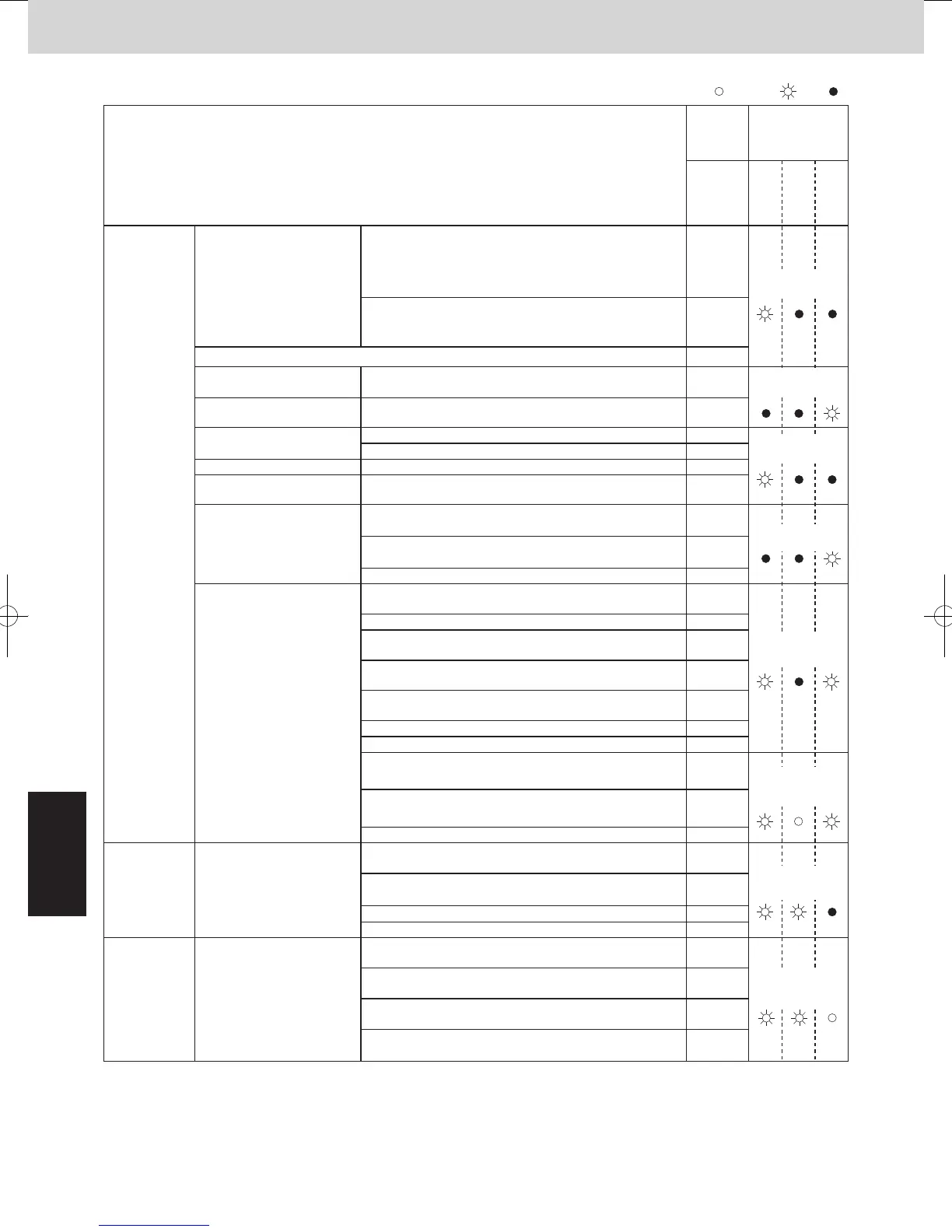
ON: Blinking: OFF:
Possible cause of malfunction
Wired
remote
control
display
Wireless
remote controller
receiver display
Operation
Timer
Standby
for heating
Serial
communication
errors
Miss-setting
Remote controller is detecting
error signal from indoor unit.
Remote controller is not connected properly. (Receiving failure
from remote control)
Indoor unit address was mistakenly controlled by undesired
indoor unit remote controller.
(Impossible to communicate with outdoor unit)
Remote controller is not connected properly.
(Impossible to communicate with indoor unit by remote
controller)
Remote controller does not respond to indoor unit.
Indoor unit is detecting error
signal from outdoor unit.
Outdoor unit does not respond to indoor unit.
<E01>
<E02>
<<E03>>
<<E09>>
<<L09>>
F06
F07
F08
E04
E08
<E06>
Outdoor unit is detecting error
signal from indoor unit.
Some indoor units do not respond to outdoor unit.
Indoor unit address is dupulicating.
Two or more remote controllers are set as main on R1-R2 link.
Auto Address failed to start.
Indoor unit communication
error of group control wiring.
No response from sub indoor to the main indoor unit in group
control wiring.
During auto. address setting,
number of connected units
does not correspond to
number set.
Improper setting
Improper setting
Improper setting
Indoor unit
Fewer indoor units are found in Auto Addressing than the
setting on outdoor PCB.
More indoor units are found in Auto Addressing than the setting
on outdoor PCB.
No indoor unit responded in Auto Addressing.
Indoor unit model does not match with the outdoor unit model.
(Multi-split/mini-split)
Two or more indoor units are set as main in group control.
Two or more indoor units are set as priority indoor unit
(priority indoor unit).
Two or more indoor units are set as priority indoor unit
(non-priority indoor unit).
Indoor unit address is not set.
Capacity setting of indoor unit is not correct.
4-way valve has failure.
Duplicate system address setting on outdoor units.
Capacity setting of outdoor unit is not correct.
Group control wiring is detected for indoor unit set as individual
control.
E12
E18
E16
E20
E15
<L03>
L06
L08
L05
<<L02>>
L04
L18
L10
L07
Thermistor fault
Outdoor unit heat exchanger gas temperature sensor has
failure. (EXG)
Outdoor temperature sensor has failure. (TO)
Outdoor unit heat exchanger liquid temperature sensor has
failure. (EXL)
Continued
Operating lamp
blinking
Heating ready lamp
blinking
Operating lamp
blinking
Heating ready lamp
blinking
Operating and heating
ready lamps blinking
simultaneously
Operating and heating
ready lamps blinking
simultaneously
F04
Compressor discharge temperature sensor has failure.
(DISCH)
<<F03>>
<<F10>>
<<F11>>
Indoor unit heat exchanger gas temperature sensor has
failure. (E3)
Indoor discharge air temperature sensor has failure. (BL)
Indoor suction air (room) temperature sensor has failure. (TA)
Operating and
timer lamps blinking
alternately
<<F01>>
Indoor unit heat exchanger liquid temperature sensor has
failure. (E1)
Thermistor faultOutdoor unit
Operating and timer
lamps blinking
alternately
ON: Blinking: OFF:
Possible cause of malfunction
Wired
remote
control
display
Wireless
remote controller
receiver display
Operation
Timer
Standby
for heating
Thermistor fault Outdoor thermistor is either
open or damaged.
Compressor inlet temperature sensor has failure. (SCT)
High pressure sensor has failure. (HPS)
Connection to the panel of indoor unit is not good.
Activation of
protective
device
Protective device in indoor
unit is activated.
Thermal protector for Indoor unit fan motor is activated.
Float switch of drain pan safety is activated.
Indoor unit fan inverter protection control is activated.
Protective device in outdoor
unit is activated.
O
2 sensor has activated.
F12
F16
Subcooling heat exchanger temperature sensor has failure.
(SCG)
F14
Low pressure sensor has failure. (LPS)
F17
<<P09>>
<<P12>>
<<P10>>
Drain pump failure or locked rotor.
<<P11>>
<<P01>>
P14
Compressor discharge temperature is too high.
High pressure swich is activated.
AC power supply has abnormal.
Compressor secondary current is overcurrent.
Too high load in refrigerant circuit.
Outdoor unit fan motor has failure.
Compressor start failure. Compressor is missing phase or
reverse phase.
Other indoor unit in group control has an alarm.
Indoor unit communication
error of group control wiring.
P04
P03
P05
P20
P29
<P31>
P22
P16
Operating and timer
lamps blinking
alternately
Timer and heat
ready lamp blinking
alternately
Operating and heat
ready lamp blinking
alternately
1.Contents of Remote Controller
Switch Alarm Display
2WAY SYSTEM
Trouble Diagnosis
< > alarm indication: In some cases may affect the operation of other indoor units.
Abnormal device function
<< >> alarm indication: Does not affect the operation of other indoor units.
EEPROM on indoor unit PCB has failure.
EEPROM on outdoor unit PCB has failure.
Protective
device
for compressor
is activated
Protective device for
compressor is activated.
Operating and timer
lamp blinking
simultaneously
Operating and timer
lamp blinking
simultaneously
Low pressure sensor value is too low.
Timer lamp blinking
Compressor current sensor is disconnected or shorted.
F29
F31
H06
Compressor HIC has failure. HIC is overcurrent or
overheat. VDC is undervoltage or overvoltage.
H31
H03
PFC is overcurrent or VDC is overvoltage. (Single phase only) H02
Compressor discharge temperature sensor is
disconnected, shorted or misplaced. (DISCH)
H05
H01Compressor primary current is overcurrent.
SM830258-01_欧州向け_1fan_mini_VRF.indb 2 18/03/13 17:29:20

Table of Contents

Other manuals for Panasonic S-28MD1E5

Related product manuals