EasyManua.ls Logo

Panasonic S-36PN1E5 - Page 263

Panasonic S-36PN1E5
739 pages
To Next Page IconTo Next Page
To Next Page IconTo Next Page
To Previous Page IconTo Previous Page
To Previous Page IconTo Previous Page
Loading...
1-253
1
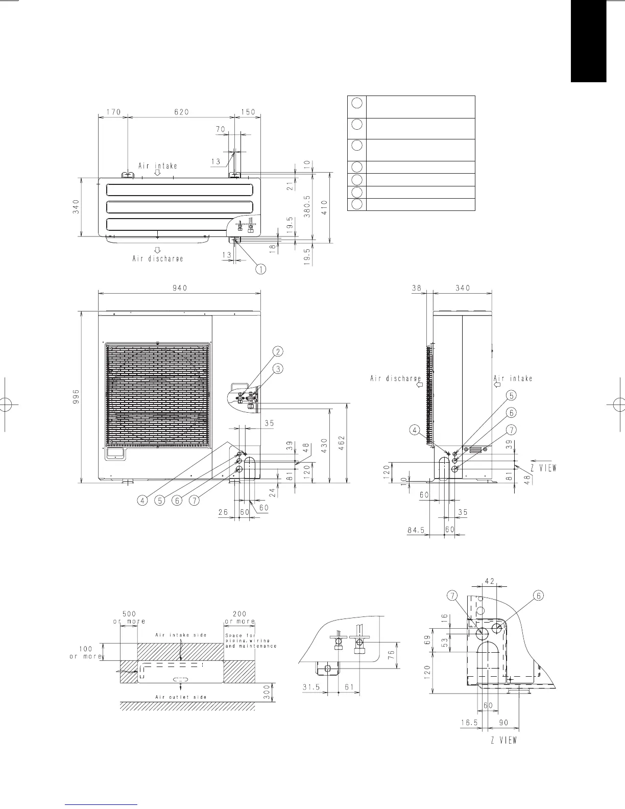
1-2. Dimensional Data
(B) Outdoor Units: U-60PE1E5 / U-71PE1E5/ U-100PEY1E5/ U-125PEY1E5
U-71PE1E8 / U-100PEY1E8/ U-125PEY1E8
1
2
3
4
5
6
7
Mounting hole (4-R6.5),
anchor bolt: M10
Refrigerant piping (liquid pipe),
flared connection (ø9.52)
Refrigerant piping (gas pipe),
flared connection (ø15.88)
Electrical wiring port (ø13
)
Electrical wiring port (ø22
)
Electrical wiring port (ø27
)
Electrical wiring port (ø35
)
unit: mm
SM830211-07PAC-i.indb253SM830211-07PAC-i.indb253 2013/09/1722:47:472013/09/1722:47:47

Table of Contents

Other manuals for Panasonic S-36PN1E5

Related product manuals