EasyManua.ls Logo

Panasonic S-36PN1E5

Panasonic S-36PN1E5
739 pages
To Next Page IconTo Next Page
To Next Page IconTo Next Page
To Previous Page IconTo Previous Page
To Previous Page IconTo Previous Page
Loading...
3-17
3
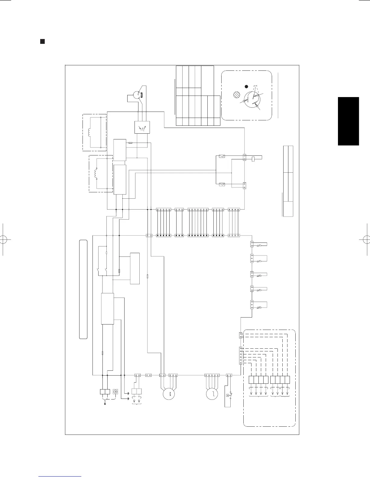
ELECTRIC CIRCUIT DIAGRAM
F223527
2
1
2111
3
ELECTRO-MAGNETIC COIL
4
1
1
N
L
L-IN
1
4
4
1
7
1
1
1
3
5
RY04
1
3
OUTDOOR HEAT EXCHANGER
TEMP.SENSOR(C2)
3
CN-TS
(R)
CN-C1
(W)
21
OUTDOOR AIR
TEMP.SENSOR(TO)
COMPRESSOR DISCHARGE
TEMP.SENSOR(TD)
12
CN-C2
(W)
CN-RELAY
(W)
3
2
3
1
1
3
1
1
5
COMPRESSOR SUCTION
TEMP.SENSOR(TS)
OUTDOOR HEAT EXCHANGER
TEMP.SENSOR(C1)
CN-HIC2
(W)
CN-DC_F
(W)
CN-HIC3
(W)
CN-HIC1
(W)
CN-HIC2
(W)
CN-02
(GR)
3
P
N
FUSE2
4
3
MS
POWER SUPPLY
1
5
1
PFC
CIRCUIT
FUSE1(REFER FUSE SPEC)
3
1
7
1
N-IN
3
220/230/240V
50Hz
RECTIFICATION
CIRCUIT
NOISE FILTER
CIRCUIT
M
E2
E1
F900
PTC
CN-OC
(B)
CN-EMG
(BR)
CN-FMB
(Y)
CN-MOV1
(W)
CN-FMA
(Y)
CN-63PH
(R)
CN-TD
(BL)
TO THE
INDOOR UNIT
F501
AC3(BL)
AC1
AC2(W)
DC1(O)
AC3
AC1(GR)
AC2(W)
COMPRESSOR
15A 250V
(GR)
RY02
1
IC01
1
W
V
U
W
V
U
CN-20S
(B)
ELECTRO-
MAGNETIC COIL
(4-WAY VALVE)
G
B
BR
G
W
W
W
W
W
W
W
CN-HIC1
(W)
W
W
W
W
CN-HIC3
(W)
W
BL
O
BL
W
GR
CN-RELAY
(W)
CN-PAM
(W)
RE1(R)
U2
U1
P
B
(BL)
CN-PAM
(BL)
RE2(R)
RE1(R)
RE2(R)
R
B
Y
CN-TO
(BL)
BL
BL
RECTIFICATION
CIRCUIT
T3.15A
L250V
T3.15A L250V
M
RY900
RY901
DC2(BL)
TERMINAL BOARD
CONTROL BOARD
(HIC)
CONTROL BOARD
(CR)
W
W
W
W
(EXPANSION VALVE)
W
W
W
W
W
W
TERMINAL BOARD
FAN MOTOR
1
2
6
1
CN-OPT2
(Y)
CN-OPT1
(R)
BR
R
1
2
1
2
LV1
COM
LV3
LV2
B
BL
P
GR
W
PU
TO THE NEXT
SYSTEM
(FORCED STOP)
FORCED STOP
DEMAND
TERMINAL BOARD
TERMINAL BOARD
OPTION(CZ-CAPDC3)
R
REACTOR
100P TYPE
R
R
REACTOR
125P TYPE
R
t
°
t
°
t
°
t
°
t
°
ORANGE
YELLOW/
GREEN
WIRE COLOR
BROWN
GREEN
YELLOW
PURPLE
RED
O
BL
W
GR
WHITE
BLACK
BLUE
GRAY
Y/G
PINK
PU
BR
P
G
R
Y
B
HI PRESSURE SW.
BOLT
DISCHARGE
PIPE
COMPRESSOR TERMINAL
(REFER TO TERMINAL
RED
BLU
(W)
COVER FOR WIRE INSERT)
YEL
(V)
(U)
U-125PEY1E5 40A AC250V
U-100PEY1E5 30A AC250V
FUSE1
FUSE SPEC
3-2. Outdoor Units
Single-phase U-100PEY1E5 / U-125PEY1E5
SM830211-07PAC-i.indb17SM830211-07PAC-i.indb17 2013/07/1714:07:112013/07/1714:07:11

Table of Contents

Other manuals for Panasonic S-36PN1E5

Related product manuals