EasyManua.ls Logo

Panasonic S-36PU1E5A - Page 472

Panasonic S-36PU1E5A
659 pages
To Next Page IconTo Next Page
To Next Page IconTo Next Page
To Previous Page IconTo Previous Page
To Previous Page IconTo Previous Page
Loading...
3-18
3
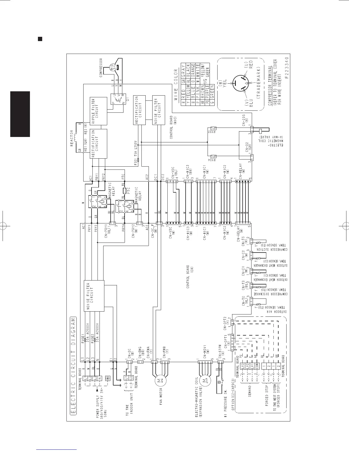
3-2. Outdoor Units
3-phase U-71PE1E8A
SM830231-00Single欧州.indb18SM830231-00Single欧州.indb18 2014/06/2014:26:412014/06/2014:26:41

Table of Contents

Other manuals for Panasonic S-36PU1E5A

Related product manuals