EasyManua.ls Logo

Panasonic S-36PU1E5A

Panasonic S-36PU1E5A
693 pages
To Next Page IconTo Next Page
To Next Page IconTo Next Page
To Previous Page IconTo Previous Page
To Previous Page IconTo Previous Page
Loading...
1-206
1
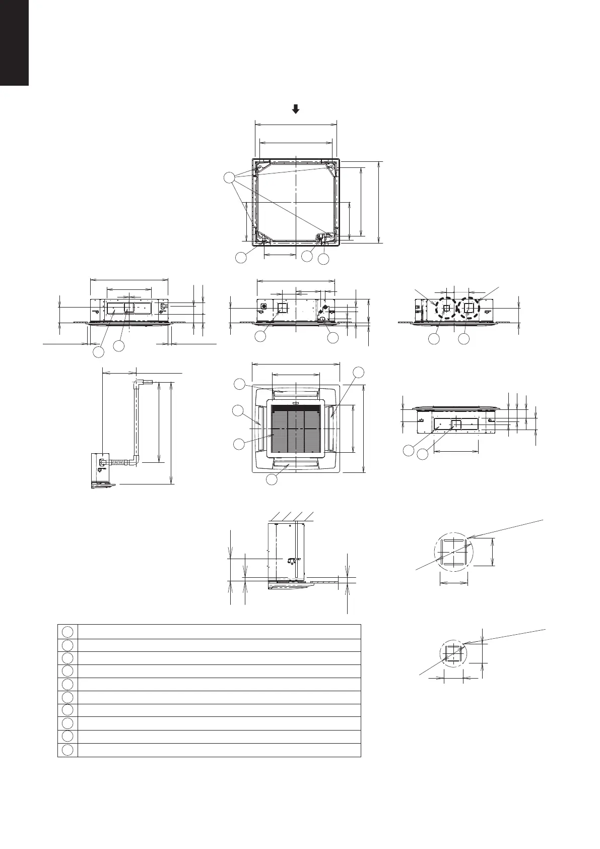
1-2. Dimensional Data
(A) Indoor Units: S-36PU1E5A / S-45PU1E5A / S-50PU1E5A / S-60PU1E5A / S-71PU1E5A
1
2
3
4
5
6
7
8
9
10
Air intake
Discharge outlet
Refrigerant tubing (liquid tube) Type 36-50 ø6.35 (flared), Type 60 • 71 ø9.52 (flared)
Refrigerant tubing (gas tube) Type 36-50 ø12.7 (flared), Type 60 • 71 ø15.88 (flared)
Drain tube connection port VP25 (outer dia. ø32)
Power supply port
Discharge duct connection port (ø150)
Vaporization-type humidifier (optional) installation area
Suspension bolt hole (4-12×30 elongated hole)
Fresh air intake duct connection port (ø100) *
324
9
5
3
4
7
7
8
6
2
2
2
2
1
10
7
7
8
421
(411)
745
(Suspension bolt pitch)
860~910
(Ceiling opening dimensions)
160
33.5
50121
42
840
50
271
145
160
16082
unit: mm
130
480
130
167
480
2
840
167
124
514
950
515
950
95
124
95
180
30
18
118
256
115
115
80
80
* Necessary to provide optional air intake kit.
<Filter dimension>
520 x 520 x 16
The length of the suspension bolts
should be selected so that there is
a gap of 30 mm or more below the
lower surface of the ceiling (18 mm
or more below the lower surface of
the main unit), as shown in the
figure at right. If the suspension
bolt is too long, it will contact
the ceiling panel and the unit
cannot be installed.
Raise dimension of drain tube
Detailed view Z
Detailed view Y
View X
X
ZY
860~910
786
(Ceiling opening dimensions)
(Suspension bolt pitch)
Less than 35
Less than 300
Less than 670
Less than 850
Less than 35
4 - ø3 bur
ring hole
4 - ø3
burring hole
ø162
ø113
SM830231-02Single.indb206SM830231-02Single欧州.indb206 2014/09/1913:21:282014/09/1913:21:28

Table of Contents

Other manuals for Panasonic S-36PU1E5A

Related product manuals