EasyManua.ls Logo

Panasonic S-36PU1E5A - Page 225

Panasonic S-36PU1E5A
693 pages
To Next Page IconTo Next Page
To Next Page IconTo Next Page
To Previous Page IconTo Previous Page
To Previous Page IconTo Previous Page
Loading...
1-215
1
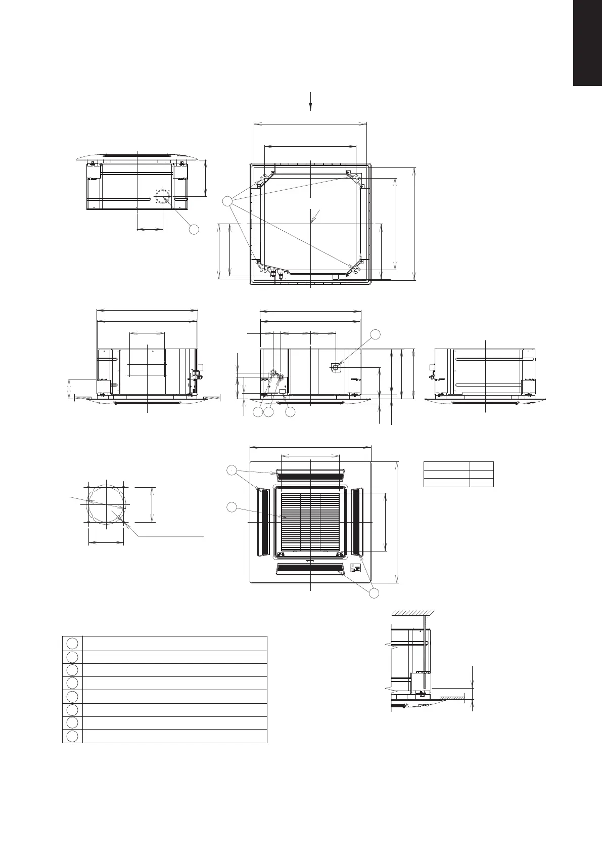
1-2. Dimensional Data
(A) Indoor Units: S-36PY2E5A, S-45PY2E5A, S-50PY2E5A
Air intake grille
Air outlet
Refrigerant piping (liquid pipe) ø6.35 (flared)
Refrigerant piping (gas pipe) ø12.7 (flared)
Drain tube connection port VP25 (outer ø32)
Power supply entry
Suspension bolt hole (4-11 x 26 slot)
Fresh air intake duct connection port (ø80)
1
2
3
4
5
6
7
8
unit: mm
2
2
1
Adjust the suspension bolt length so that the gap from the
lower ceiling surface becomes 45mm or more,
as shown in the figure at right.
If the suspension bolts is too long, it will contact the ceiling
panel and the unit cannot be installed.
25
(583)
575
44 170
123
31
146
179
283
(288)
31
(23)
260
(ceiling opening dimension)
(suspension bolt pitch)
A
600
(ceiling opening dimension)
530
600
530
(suspension bolt pitch)
301
316
320
VIEW A
212
148
112
(583)
575
200
a
a
700
625
CZ-KPY3A
CZ-KPY3B
336
336
a
Dimension of Fresh air intake duct
(field supply) connection port
71
71
ø
80
45
43 6
5
7
Panel center
8
4-ø3Barring hole
SM830231-02Single.indb215SM830231-02Single欧州.indb215 2014/09/1913:21:322014/09/1913:21:32

Table of Contents

Other manuals for Panasonic S-36PU1E5A

Related product manuals