EasyManua.ls Logo

Panasonic S-36PU1E5A - Page 394

Panasonic S-36PU1E5A
693 pages
To Next Page IconTo Next Page
To Next Page IconTo Next Page
To Previous Page IconTo Previous Page
To Previous Page IconTo Previous Page
Loading...
1
1-384
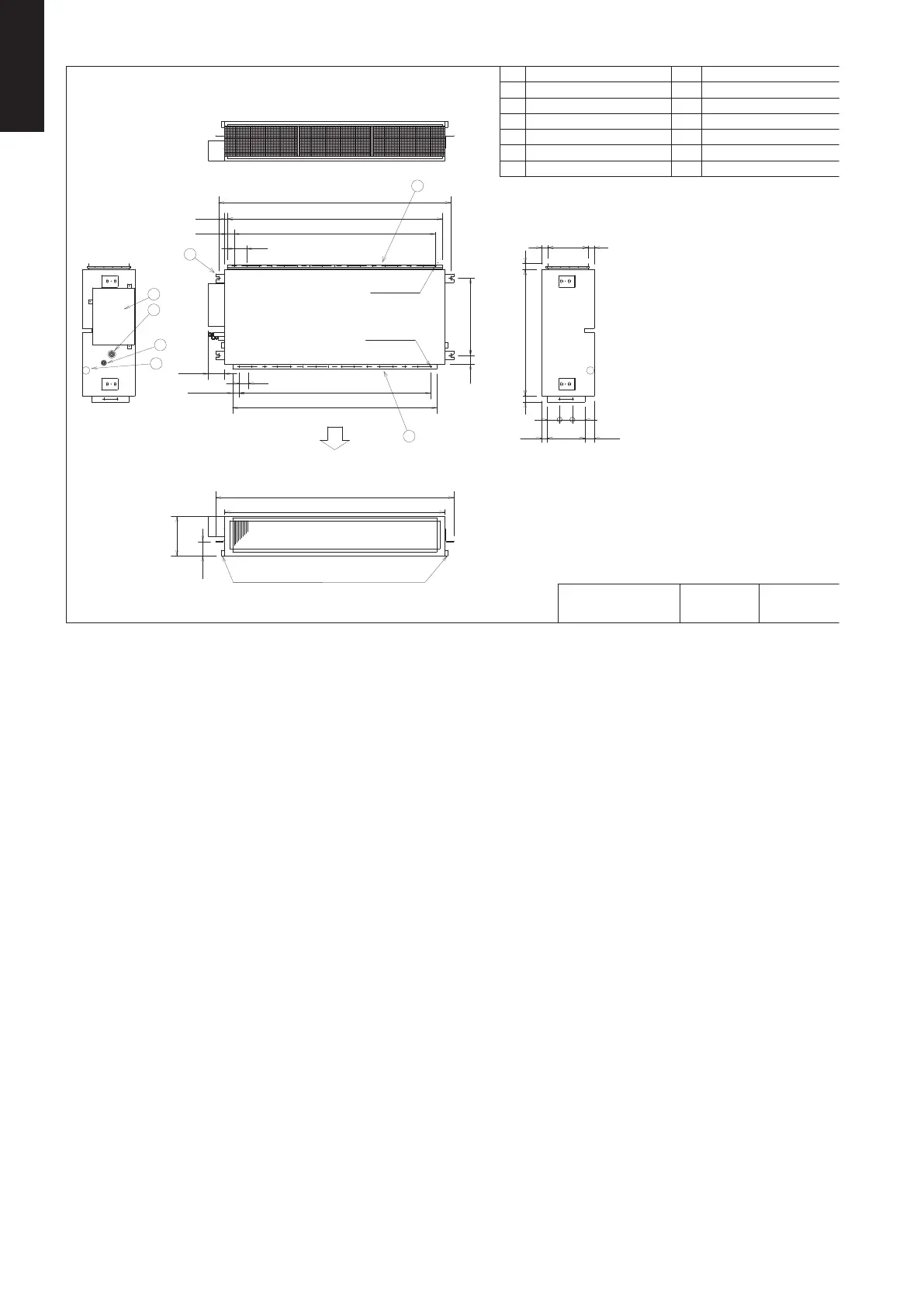
NO.
1
2
3
4
5
6
NAME
NOTE
Pipe connection (liquid)
Q'TY
1
1
2
2
4
1
Pipe connection (gas)
Drain pipe connection
Hanger
Duct connection
Control box
O.D. Ø15.88 Flared
O.D. Ø9.52 Flared
Female screw PT1"
Outside Dimensions
MODEL NO.
UNIT:mm
S-100PN1E5A
S-140PN1E5A
S-125PN1E5A
100
1260
1090
250
64
46-Ø4.5
44-Ø4.5
80
1160
20
1320
523
1200
65
57.5
60
1040(P65x16)
58
48
31
65
161
48
30 650 30
31 32187
65
4
5
4
3
2
1
6
Drain pipe connection
975 (P65 x 15)
Air Flow
SM830231-02Single.indb384SM830231-02Single欧州.indb384 2014/09/1913:22:042014/09/1913:22:04

Table of Contents

Other manuals for Panasonic S-36PU1E5A

Related product manuals