EasyManua.ls Logo

Panasonic SC-BTT270 - Speaker Installation Options; Wall Mounting and Safety

Panasonic SC-BTT270
52 pages
To Next Page IconTo Next Page
To Next Page IconTo Next Page
To Previous Page IconTo Previous Page
To Previous Page IconTo Previous Page
Loading...
42
VQT3D27
Optional speaker settings
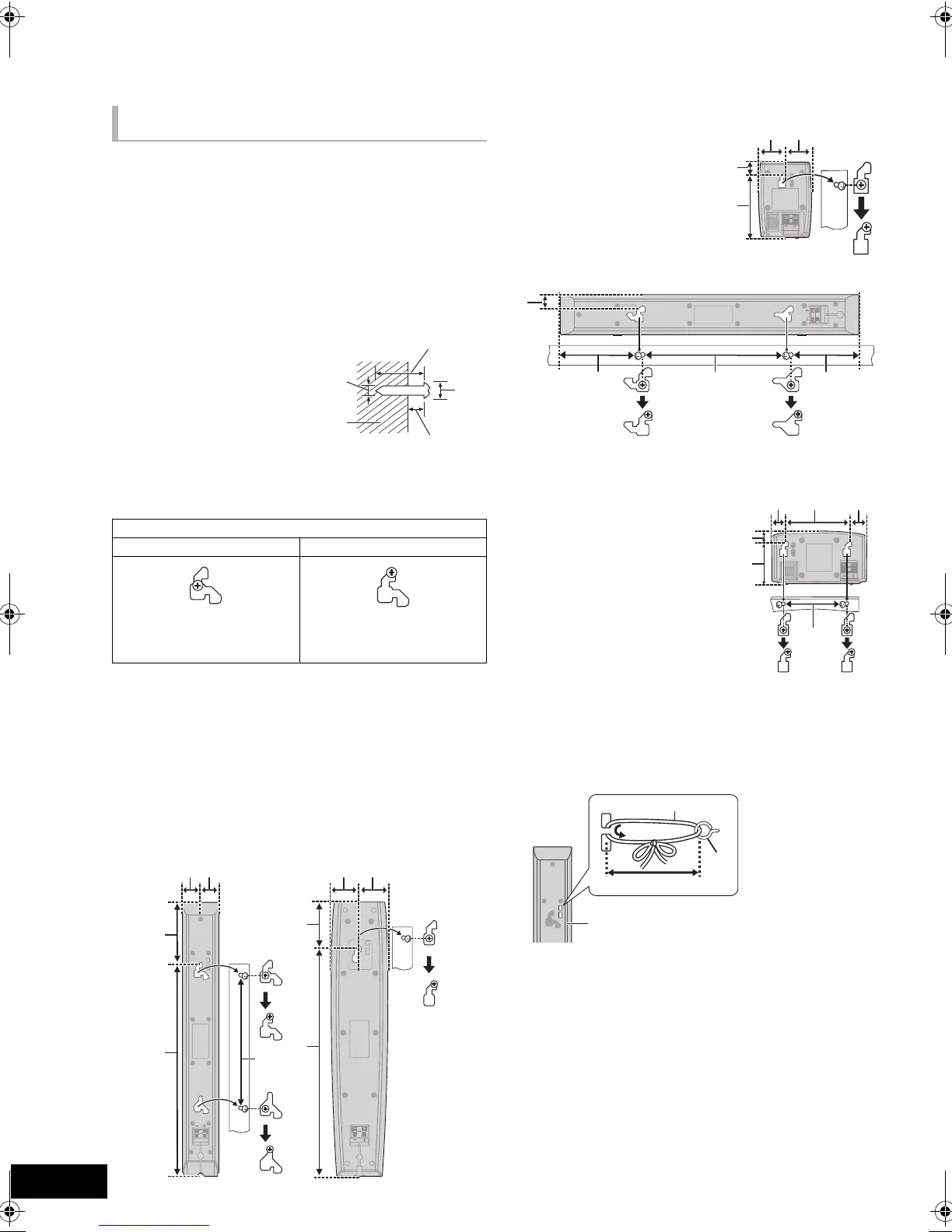
Speaker installation
option
You can attach all of the speakers (except subwoofer) to a wall.
The wall or pillar on which the speakers are to be attached
should be capable of supporting 10 kg (22 lbs) per screw.
Consult a qualified building contractor when attaching the
speakers to a wall. Improper attachment may result in
damage to the wall and speakers.
Do not attempt to attach these speakers to walls using
methods other than those described in this manual.
1 Drive a screw (not supplied) into the wall.
2 Fit the speaker securely onto the screw(s)
with the hole(s).
Use the measurements indicated below to identify the
screwing positions on the wall.
Leave at least 20 mm (
25
/32q) of space above the speaker and
10 mm (
13
/32q) on each side to allow enough space for fitting
the speaker.
[BTT770] [BTT370] [B TT273 ]
Front speaker
Attach to a wall without the base and the stand.
F 28.5 mm (1
1
/8q)
G 97 mm (3
13
/16q)
H 335 mm (13
3
/16q)
I 210 mm to 212 mm
(8
9
/32q to 8
11
/32q)
J 40 mm (1
9
/16q)
K 63 mm (2
15
/32q)
L 322 mm (12
11
/16q)
M 40 mm (1
9
/16q)
N 17.6 mm (
11
/16q)
O 98.7 mm (3
7
/8q)
[BTT770]
Center speaker
P 18.8 mm (
3
/4q)
Q 117 mm (4
19
/32q)
R 209 mm to 211 mm
(8
7
/32q to 8
5
/16q)
S 97 mm (3
13
/16q)
T 23 mm (
29
/32q)
U 95 mm to 97 mm
(3
3
/4q to 3
13
/16q)
V 26 mm (1
1
/32q)
W 16.7 mm (
21
/32q)
X 63.7 mm (2
1
/2q)
[BTT770] [BTT370] [ B TT2 73]
To avoid speaker dropping
Front speaker, Center speaker
e.g., [BTT770]
Front speaker
Consult a qualified building contractor to avoid damage to
the wall or speakers.
Use a string of less than 2.0 mm (
3
/32q), which is capable of
supporting over 10 kg (22 lbs).
Attaching to a wall
A At least 30 mm (1
3
/16q)
B 4.0 mm (
5
/32q)
C 7.0 mm to 9.4 mm
(
9
/32q to
3
/8q)
D Wall or pillar
E 5.5 mm to 7.5 mm
(
7
/32q to
5
/16q)
e.g., [BTT770] Front speaker
DO NOT DO
In this position, the
speaker will likely fall if
moved to the left or right.
Move the speaker so that
the screw is in this
position.
[BTT770]
[BTT370]
[BTT273]
[BTT770] [BTT370] [BTT273]
Surround speaker
[BTT270]
Front speaker,
Surround speaker
[BTT370] [BTT270] [BTT273]
Center speaker
A String (not supplied)
B Screw eye (not supplied)
C Less than 10 cm (3
15
/16q)
D Rear of the speaker
VQT3D27~Body_mst.fm 42 ページ 2011年1月6日 木曜日 午後1時40

Table of Contents

Other manuals for Panasonic SC-BTT270

Related product manuals