EasyManua.ls Logo

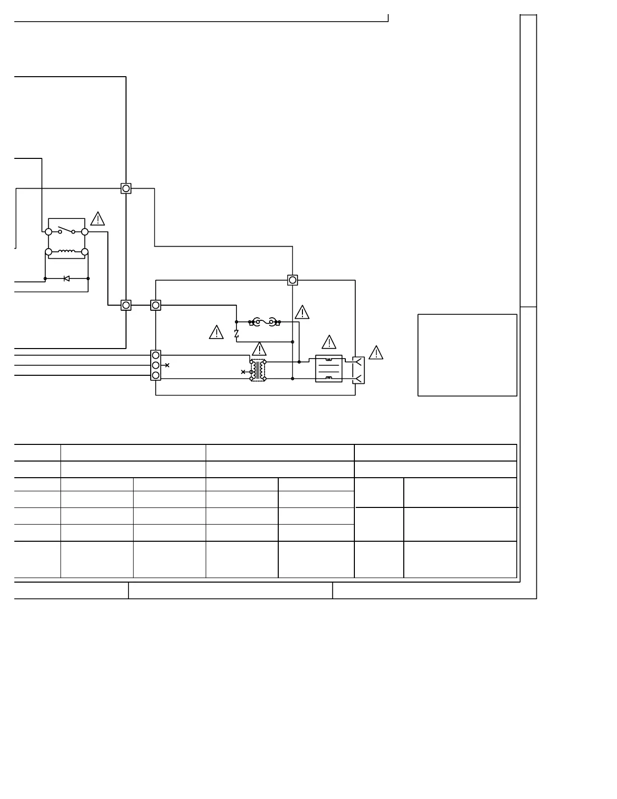
Panasonic SC-TM82AV - Power Circuit Diagram; Power and Transformer Schematic

Panasonic SC-TM82AV
50 pages
Print Icon
To Next Page IconTo Next Page
To Next Page IconTo Next Page
To Previous Page IconTo Previous Page
To Previous Page IconTo Previous Page
Loading...
5/163
'
56<0
5/
127$

(67(&,5&8,72(6
&255(&72+$67$(/020(172'(
68(0,6,213$5$&8$/48,(5&$0%,2
,1)250$&,21'(,1*(1,(5,$
'(%(5$5()(5,56($/$
)&
97$/
:%
&1
5-7:97
:$
25573+(
*&$$-
7
=
)
(5=99&6
)&
:%
2556<0&
.$$%
/
5/4=
-.
'
&
$&9
+=
5HYLVy
6HFFLyQ
(OHFWULFD
6LPEROR
6
(
2&7$9,2,
'LVHxy


)HFKD
P
EROR
P
LVLyQ
L
Q
F
DOD
U
H
&ÏGLJR
'LEXMy
,QJDXGLR
'SWR
&LUFXLWRSRGHU
WUDQVIRUP
'L$*5$0$(/(&7521,&2
1RPEUH
1RGH
SDUWH
3URFHVR
0RGHOR
6LPEROR
3DQDVRQLF
1RWD
$SUREy
6$70$9
5-%;$5-%;$
2&7$9,2,

Related product manuals