EasyManua.ls Logo

Panasonic TX-55GZ950E

Panasonic TX-55GZ950E
84 pages
To Next Page IconTo Next Page
To Next Page IconTo Next Page
To Previous Page IconTo Previous Page
To Previous Page IconTo Previous Page
Loading...
English
13
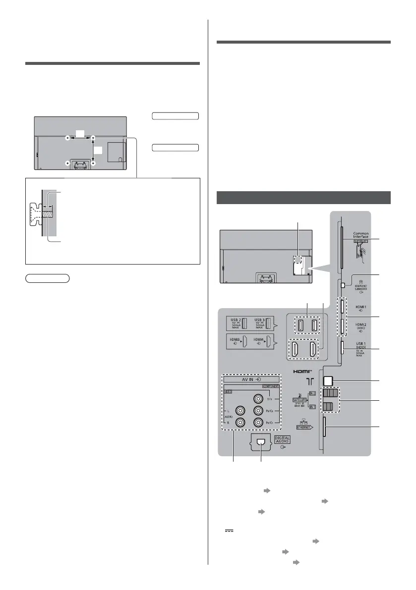
Installing the wall-
hanging bracket
Please contact your local Panasonic dealer to purchase
the recommended wall-hanging bracket.

Holes for wall-hanging bracket installation
Rear of the TV
a
b
55-inch model
a: 400 mm
b: 300 mm
65-inch model
a: 400 mm
b: 400 mm
(View from the side)
Depth of screw
minimum: 23 mm
maximum: 28 mm
Diameter: M6
Screw for fixing the TV onto the
wall-hanging bracket (not supplied with
the TV)
Warning

Using other wall-hanging brackets, or installing a wall-
hanging bracket by yourself have the risk of personal
injury and product damage. In order to maintain the
unit’s performance and safety, be absolutely sure to
ask your dealer or a licensed contractor to secure
the wall-hanging brackets. Any damage caused by
installing without a qualified installer will void your
warranty.

Carefully read the instructions accompanying optional
accessories, and be absolutely sure to take steps to
prevent the TV from falling off.

Handle the TV carefully during installation since
subjecting it to impact or other forces may cause
product damage.

Take care when fixing wall brackets to the wall.
Always ensure that there are no electrical cables or
pipes in the wall before hanging bracket.

To prevent fall and injury, remove the TV from its fixed
wall position when it is no longer in use.
Connections

External equipment and cables shown are not
supplied with this TV.

Please ensure that the unit is disconnected from the
mains socket before attaching or disconnecting any
cables.

Check the terminal type and cable plugs are correct
for connection.

Use a fully wired HDMI compliant cable.

Keep the TV away from electronic equipment (video
equipment, etc.) or equipment with an infrared sensor,
otherwise distortion of image / sound may occur or
operation of other equipment may be affected.

Please also read the manual of the equipment being
connected.
Terminals
2
3
4
5
6
7
1
8
910
11 12
1 Model name plate
2 CI slot 1 - 2
(p. 18)
3 Headphone / Subwoofer jack (p. 17, 18)
4 HDMI1 - 2 (p. 15, 16, 17)
5 USB 1 port
This symbol indicates DC operation.
6 Terrestrial / cable terminal (p. 14)
7 Satellite terminal (p. 14)
8 ETHERNET terminal (p. 16)

Related product manuals