EasyManua.ls Logo

Panasonic U-8ME2E8 - Page 80

Panasonic U-8ME2E8
207 pages
Print Icon
To Next Page IconTo Next Page
To Next Page IconTo Next Page
To Previous Page IconTo Previous Page
To Previous Page IconTo Previous Page
Loading...
3 - 4
2WAY SYSTEM
Outdoor Unit Repair Procedures
3
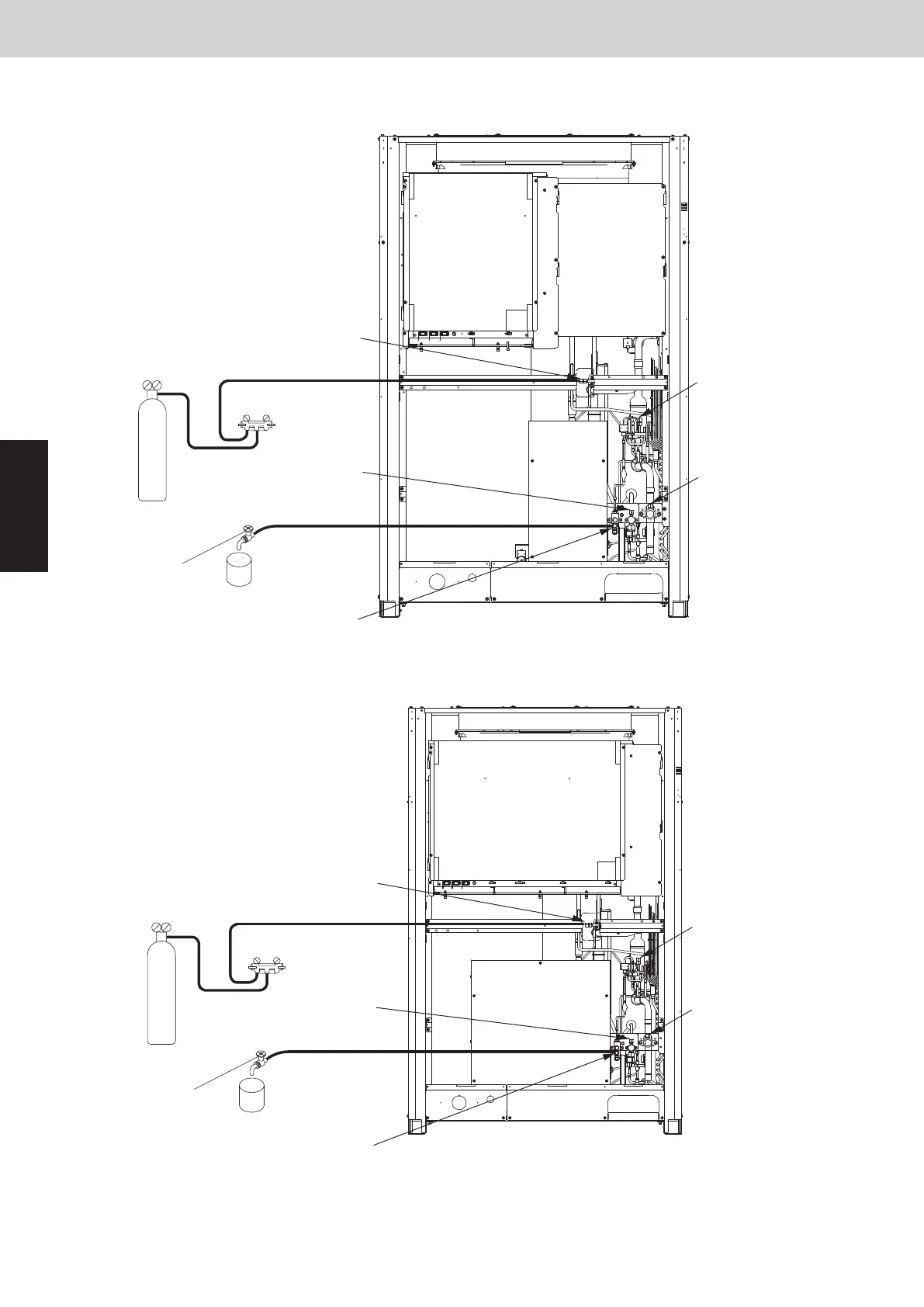
2. Discharging Compressor Oil
Fig. 2-b
Fig. 2-c
Nitrogen gas
Manifold gauge
Lo Hi
Packless valve or the like Container
Oil balance tube service port
(For 7.94mm-dia. connector)
Low-pressure outlet port
(for ø7.94mm-dia connector)
Liquid tube service port
(for ø7.94mm-dia connector)
High-pressure outlet port
(for ø7.94mm-dia connector)
Gas tube service port
(for ø7.94mm-dia connector)
Nitrogen gas
Manifold gauge
Lo Hi
Packless valve or the like Container
Oil balance tube service port
(For 7.94mm-dia. connector)
Low-pressure outlet port
(for ø7.94mm-dia connector)
Liquid tube service port
(for ø7.94mm-dia connector)
High-pressure outlet port
(for ø7.94mm-dia connector)
Gas tube service port
(for ø7.94mm-dia connector)
Type 12HP
Type 14HP / 16HP
SM830253-00_欧州2way7_SM-TRSM.indb 4 16/08/26 19:25:01

Table of Contents

Related product manuals