EasyManua.ls Logo

Pasco Scientific SF-8607 - Experiment 1 Force Versus Current

Default Icon
14 pages
Print Icon
To Next Page IconTo Next Page
To Next Page IconTo Next Page
To Previous Page IconTo Previous Page
To Previous Page IconTo Previous Page
Loading...
scientific
5
012-04046C
Current Balance and Accessory
Experiment 1: Force versus Current
Procedure
If you're using a quadruple-beam balance:
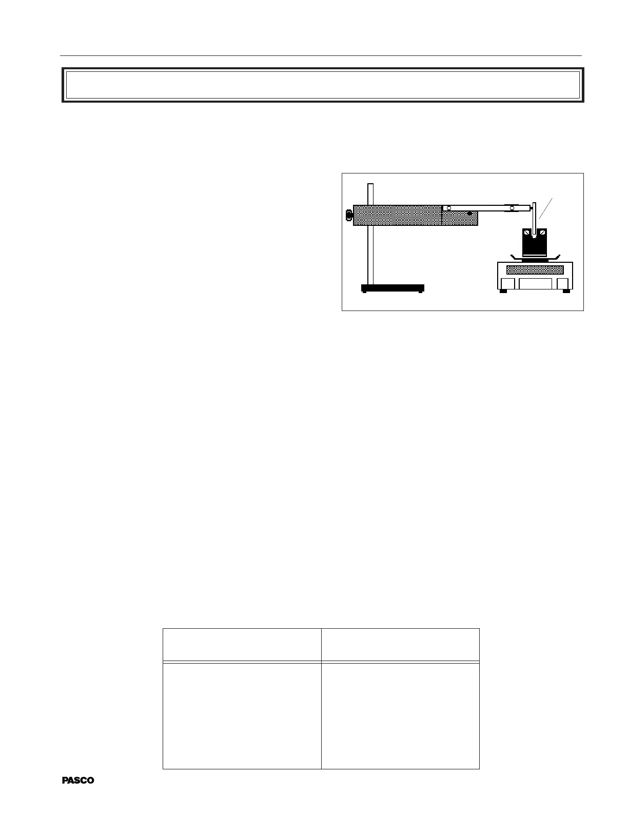
Set up the apparatus as shown in figure 1.1.
Determine the mass of the magnet holder and
magnets with no current flowing. Record this value
in the column under “Mass” in Table 1.1.
Set the current to 0.5 amp. Determine the new
“mass” of the magnet assembly. Record this value
under “Mass” in Table 1.1.
Subtract the mass value with the current flowing
from the value with no current flowing. Record this
difference as the “Force.”
Increase the current in 0.5 amp increments to a
maximum of 5.0 amp, each time repeating steps 2-4.
If you're using an electronic balance:
Set up the apparatus as shown in figure 1.1.
Place the magnet assembly on the pan of the balance. With no current flowing, press the
TARE button, bringing the reading to 0.00 grams.
Now turn the current on to 0.5 amp, and record the mass value in the “Force” column of Table
1.1.
Increase the current in 0.5 amp increments to a maximum of 5.0 amp, each time recording the
new “Force” value.
Data Processing
Plot a graph of Force (vertical axis) versus Current (horizontal axis).
Analysis
What is the nature of the relationship between these two variables? What does this tell us
about how changes in the current will affect the force acting on a wire that is inside a magnetic
field?
Lab Stand
Main Unit
0.01 gram
Balance
Magnet
Assembly
Current Loop
Figure 1.1 Equipment Setup
Table 1.1 Data
Current “Mass” “Force”
( amps) ( gram) (gram)
0.0
0.5
1.0
1.5
2.0
2.5
3.0
3.5
4.0
4.5
5.0
Current “Mass” “Force”
( amps) ( gram) (gram)