EasyManua.ls Logo

PennBarry DYNAMO - Replacement Parts

PennBarry DYNAMO
16 pages
Print Icon
To Next Page IconTo Next Page
To Next Page IconTo Next Page
To Previous Page IconTo Previous Page
To Previous Page IconTo Previous Page
Loading...
8
www.PennBarry.com
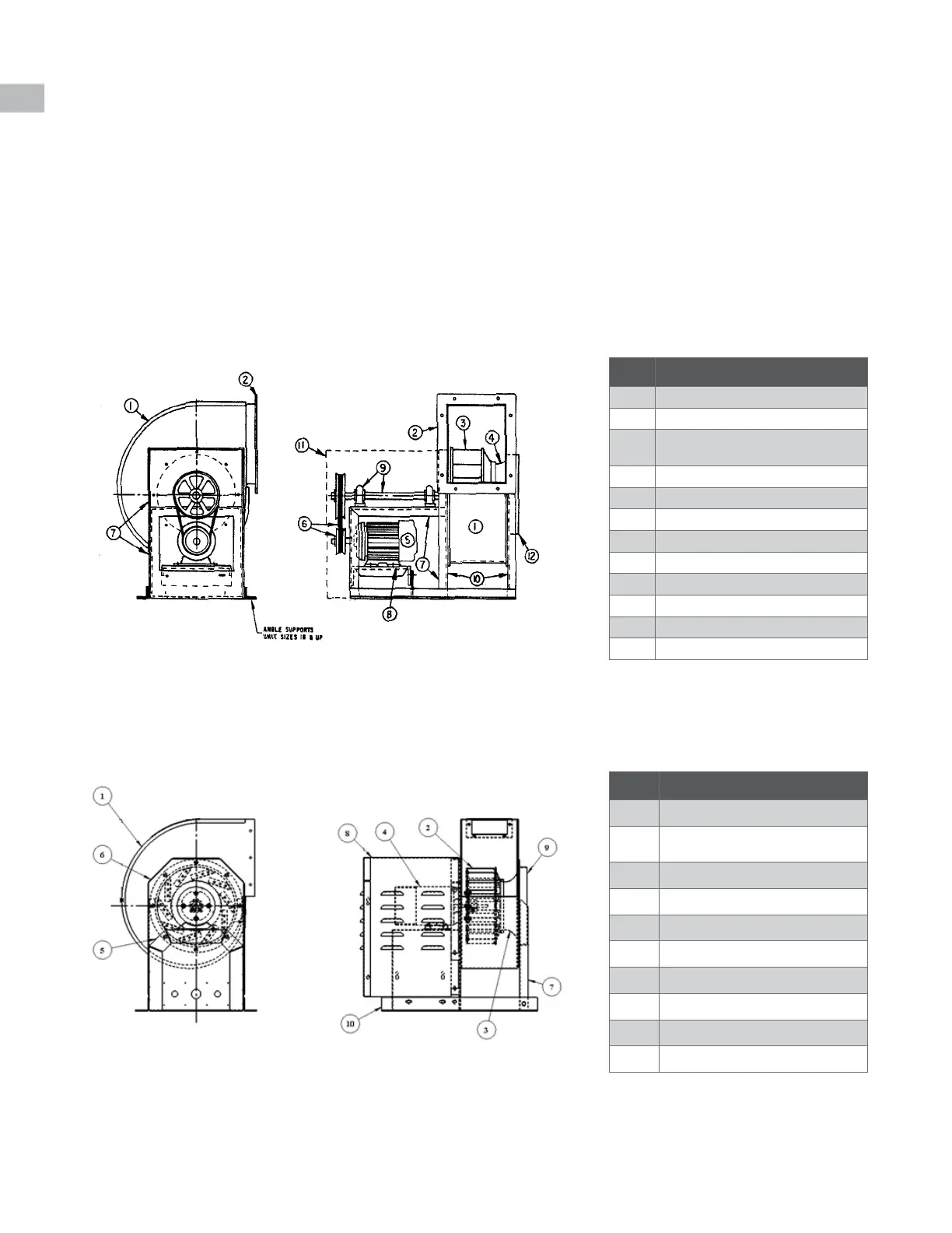
CENTRIFUGAL BLOWER CLASS 1, S.W.S.I.
DIRECT DRIVE CENTRIFUGAL BLOWER CLASS 1, S.W.S.I
REPLACEMENT PARTS
Replace parts with components which duplicate original parts correctly. Incorrectly sized shafts, belts, pulleys, etc. can damage the
fan.
Spare or replacement parts and prices are available upon request. Please supply the following information: Factory Order Number,
Customers Name and Order Number, and Date. If this information is not available, furnish a complete description of the part
required. Names of parts are shown on the following drawing. To order motors, provide the HP, RPM, voltage, phase, hertz and type
of enclosure.
Part Description
1 Blower Scroll Housing
2 Outlet Duct Flange (optional)
3
Centrifugal Wheel (aluminum
non- overloading)
4 Spun Inlet
5 Ball Bearing Motor
6 Belt and Pulleys
7 Drive Frame Support Assembly
8 Adjustable Motor Mouthing Plate
9 Fan Shaft and Bearings
10 Support Legs with Mounting Holes
11 Belt and Bearing Enclosure (Optional)
12 Round Inlet Ring
Part Description
1 Blower Scroll Housing
2
Centrifugal Wheel (aluminum
non- overloading)
3 Spun Inlet
4 EC Motor
5 Motor Mount
6 Drive Frame Support
7 Fan Shaft and Bearings
8 Weather Cover
9 Inlet Angle Flange
10 Angle Supports

Related product manuals