EasyManua.ls Logo

Perfecta 132 UC - Page 23

Perfecta 132 UC
32 pages
Print Icon
To Next Page IconTo Next Page
To Next Page IconTo Next Page
To Previous Page IconTo Previous Page
To Previous Page IconTo Previous Page
Loading...
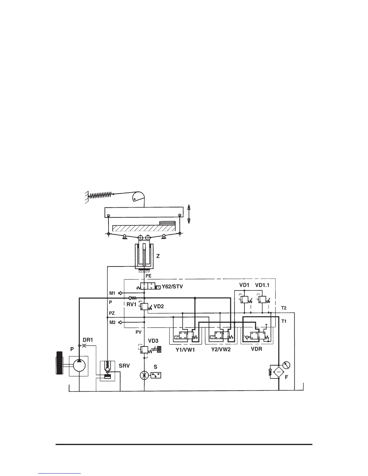
1/01 E Service Instructions 23
The individual working stages of
the hydraulic clamping system
are:
Machine at Basic Position
(free circulation)
(Fig. 29)
The main motor is on. The pump
runs. The knife beam and the
clamp are at their topmost posi-
tions.
Multi-way valves VW1 and VW2
are at rest (Y1, Y2 not operated).
The oil flow returns to the tank via
RV1, VW1, VW2, VDR and F with
almost no pressure.
Fig. 29

Related product manuals