EasyManua.ls Logo

Perlick HC24FS - Page 38

Perlick HC24FS
125 pages
Print Icon
To Next Page IconTo Next Page
To Next Page IconTo Next Page
To Previous Page IconTo Previous Page
To Previous Page IconTo Previous Page
Loading...
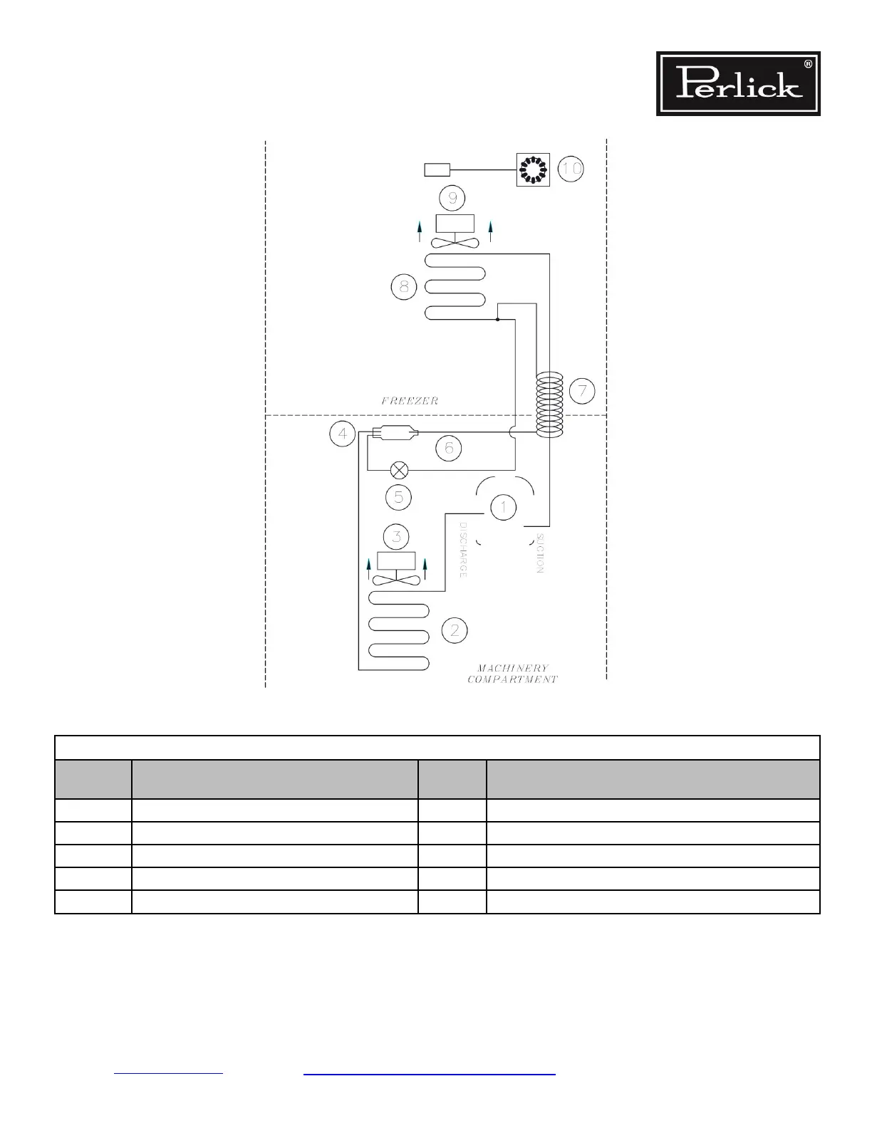
Freezer/Commercial Chiller
ITEM
NUMBER
DESCRIPTION
ITEM
NUMBER
DESCRIPTION
1 Compressor 6 Capillary Tube
2 Condenser 7 Heat Exchanger
3 Condenser Fan 8 Evaporator
4 Drier 9 Evaporator Fan
5 Hot - Gas Bypass Valve 10 Temperature Control
Return to Table of Contents
Figure 7-17. Freezer/Commercial Chiller Refrigeration System Diagram
Residential Refrigeration
and Front Venting Commercial Refrigeration
Service Manual
Refrigeration System Repair Instructions Page 7-17

Table of Contents

Other manuals for Perlick HC24FS

Related product manuals