EasyManua.ls Logo

Philips 32PFL3205/12 - Page 34

Philips 32PFL3205/12
64 pages
Print Icon
To Next Page IconTo Next Page
To Next Page IconTo Next Page
To Previous Page IconTo Previous Page
To Previous Page IconTo Previous Page
Loading...
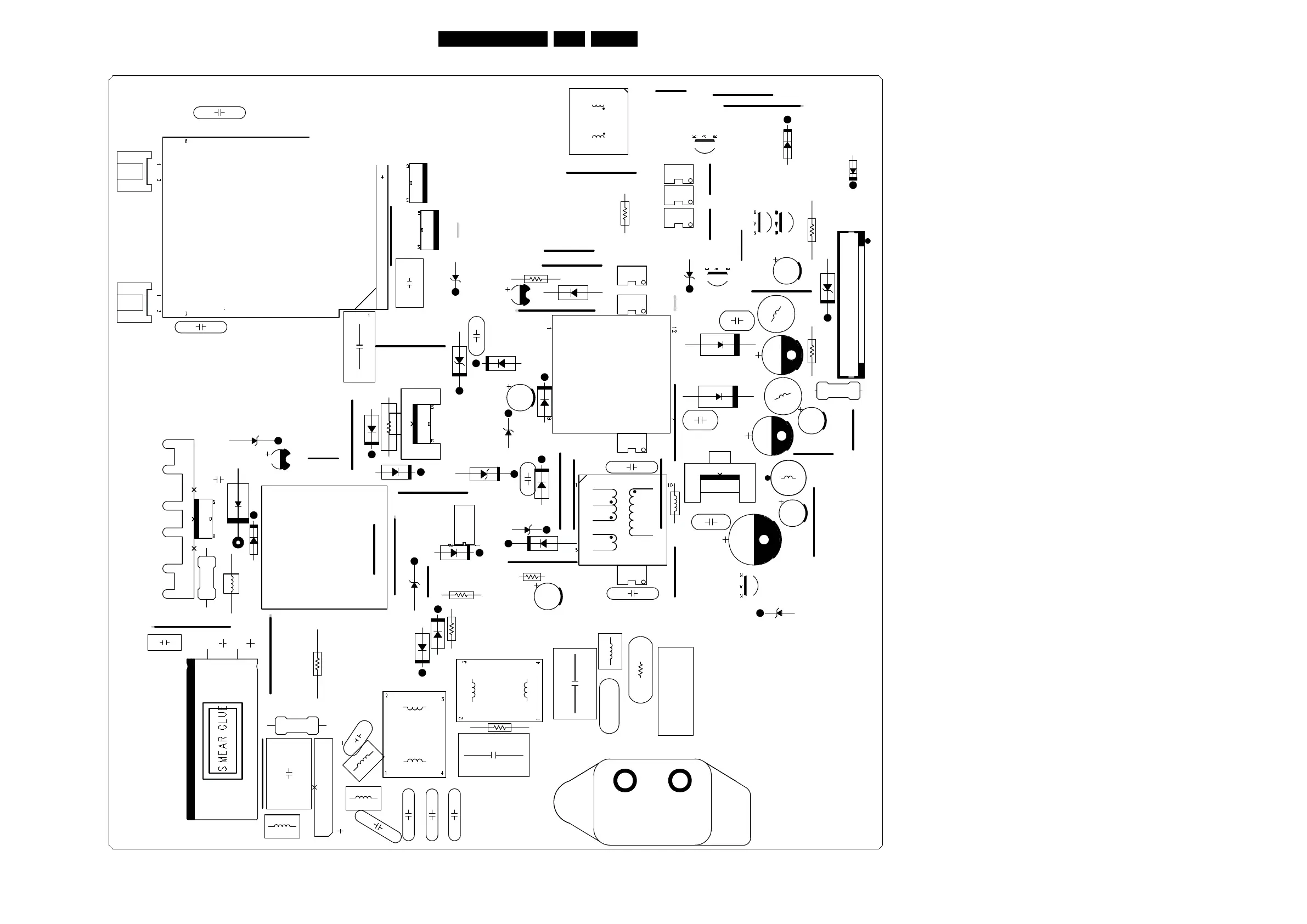
EN 34TPM4.1E LA 10.
Circuit Diagrams and PWB Layouts
2010-Jan-21
Layout Power Board, 32" (Top Side)
y18850_526_100107.eps
100308
HD912
Q901
Q801
Q802
RV901
C902
C904
L905
T901
C809
C807
L904
L903
T902
D912
BD901
C901
FB903
L902
FB905
FB901
IC901
IC803
IC804
IC805
IC806
C802
C934
C927
L901
C930
FB902
IC903
IC905
C938
C947
FB904
Q904
CN902
C909
R925
CN901
C920
C912
FB906
ZD907
ZD801
CN802
CN803
T801
T803
L906
D916
C803
C905
IC906
C903
C950
ZD903
ZD905
ZD908
D904
F901
TH901
C906
C908
C910
R910
R966
J902
J914
J912
J913
J915
J925
J907
J926
J928
C907
J916
J923
J918
J908
J903
J930
J931
R956
D917
D914
D804
ZD909
ZD912
C921
C949
D906
ZD902
ZD910
D909
D905
D908
D913
D902
C924
C932
C911
J911
J901 J922
J920
J919
J917
R916
R824
R909
R915
C933
J929
J904
J927
C925
C928
D910
C926
C929
J909
J910
R953
R934
R967
J906
J905
J921
J924
ZD906
ZD911
ZD904
R832
R901
D805
Q808
IC907
IC904
Q809 Q807
D911

Related product manuals