EasyManua.ls Logo

Philips AUT2016 - Page 43

Philips AUT2016
88 pages
Print Icon
To Next Page IconTo Next Page
To Next Page IconTo Next Page
To Previous Page IconTo Previous Page
To Previous Page IconTo Previous Page
Loading...
41
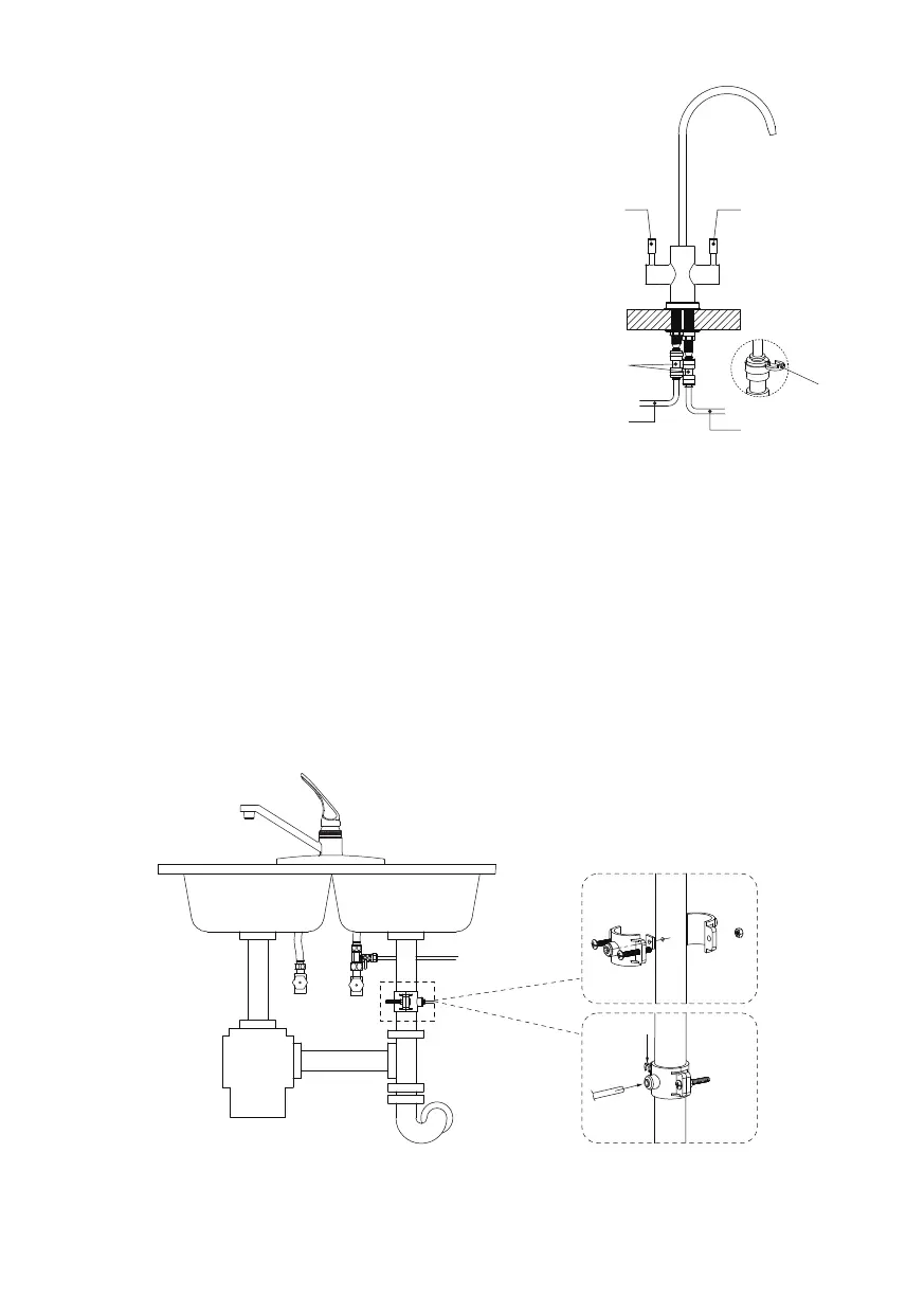
d. Assemblez le tuyau d'évacuation d'eau et le raccord de siphon
Repérez où se trouve le tuyau d'évacuation des eaux usées. Percez un trou de
6.5 mm sur ce dernier. Installez le raccord de siphon en vous référant à l'illustration.
Serrez correctement les écrous. Coupez un morceau de tube 1/4”. Insérez une
extrémité de ce tube dans le trou du tuyau d'évacuation à l'arrre du système
jusqu'à ce qu'il soit stoppé. Utilisez un clip pour maintenir le tube au niveau du
trou. Insérez l'autre extrémité du tube dans le raccord de siphon.
Couper un autre tuyau 1/4” avec un dispositif
dédié. Insérer une extrémité du tuyau
dans le raccord rapide et connecter ce dernier
sur la tige plus courte de la robinetterie.
Insérer l’autre extrémité du tuyau 1/4” dans
l’orice de sortie deau ltrée à l’arrière du
système jusqu’à son blocage. Utiliser un
clip pour sécuriser le tuyau au niveau de
l’orice.
Raccords
rapides
Tuyau de
sortie d’eau ltrée
Tuyau de sortie
d’eau ltrée par RO
Eau ltrée
Eau ltrée RO
Clip
(1)
(2)
(3)