EasyManua.ls Logo

Philips BLF278 - Package Outline

Philips BLF278
23 pages
Print Icon
To Next Page IconTo Next Page
To Next Page IconTo Next Page
To Previous Page IconTo Previous Page
To Previous Page IconTo Previous Page
Loading...
2003 Sep 19 21
Philips Semiconductors Product Specification
VHF push-pull power MOS transistor BLF278
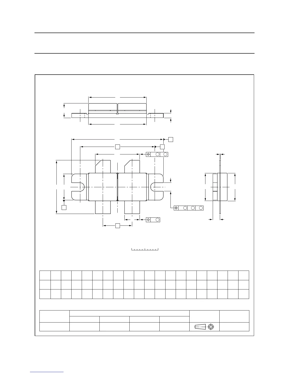
PACKAGE OUTLINE
REFERENCES
OUTLINE
VERSION
EUROPEAN
PROJECTION
ISSUE DATE
99-03-29
IEC JEDEC EIAJ
SOT262A1
0 5 10 mm
scale
Flanged double-ended ceramic package; 2 mounting holes; 4 leads SOT262A1
p
A
F
b
e
D
q
U
1
D
1
H
1
U
2
H
Q
c
5
12
43
E
E
1
C
A
w
1
AB
M M M
B
M
w
3
M M
w
2
C
UNIT
A
mm
Db
5.85
5.58
0.16
0.10
22.17
21.46
11.05
10.29
10.03
21.08
19.56
9.91
9.65
5.77
5.00
c
e U
2
0.250.25 0.51
w
3
27.94
qw
2
w
1
F
1.78
1.52
U
1
34.17
33.90
H
1
17.02
16.51
p
3.28
3.02
Q
2.85
2.59
EE
1
D
1
10.27
10.05
inches
0.230
0.220
0.006
0.004
0.873
0.845
21.98
21.71
0.865
0.855
0.435
0.405
0.396
0.830
0.770
0.390
0.380
0.227
0.197
0.0100.010 0.0201.100
0.070
0.060
1.345
1.335
0.670
0.650
0.129
0.119
0.112
0.102
0.404
0.396
H
DIMENSIONS (millimetre dimensions are derived from the original inch dimensions)

Related product manuals