EasyManua.ls Logo

Philips CD304 MK II - Page 33

Philips CD304 MK II
60 pages
Print Icon
To Next Page IconTo Next Page
To Next Page IconTo Next Page
To Previous Page IconTo Previous Page
To Previous Page IconTo Previous Page
Loading...
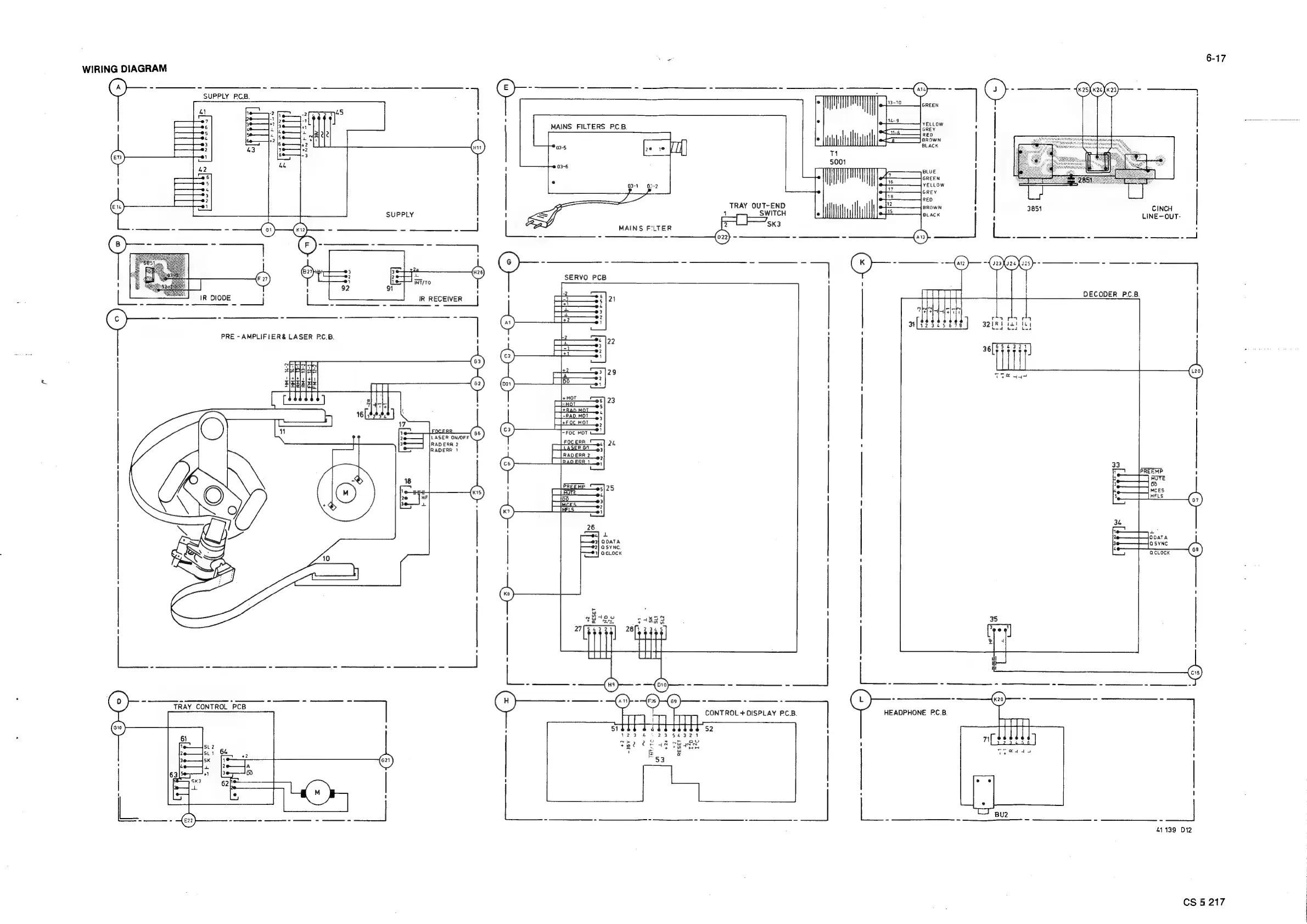
WIRING
DIAGRAM
SUPPLY
12-1
aia
zh
+.
a
aaa
ee
;
Malcfs
we
tee4]
17
n
r
OCERR
2
LASER
ON/OFF
3
RADERR
2
IRADERR
1
Hi
FM—
PRE
~AMPLIFIER&
LASER
PC.B.
|
'
4
Foc
MOT
FOCERR
'
[|
TLASER
0
|
JRaverr2
1
3]
QDATA
QSYNC.
y
QCLOCK
TRAY
OUT-~END
ovis}
=
Cth
+
Fi
TTA
SITTT
ro
R
342345678
321}
reaor4y
tL
dey
bed
Lae
36
654321
CINCH
CINE-OUT-
DECODER
PCB.
w w
To
ss
PREEMP
[-)
wore
=
[J
Mces
{
_}MFLS
a
L
Jooata
Y
pas
NC
QCLOCK
6-17
41139
D12
CS
5
217

Related product manuals