EasyManua.ls Logo

Philips DVDR75 - Page 61

Philips DVDR75
117 pages
Print Icon
To Next Page IconTo Next Page
To Next Page IconTo Next Page
To Previous Page IconTo Previous Page
To Previous Page IconTo Previous Page
Loading...
61DVDR75
FRONT
Analog input
Digital Video Input
IEEE 1394
UART3: GATEWAY
IRESET_DIG
CVBS-RGB-Y/C
AUDIO PCM I2S
SPDIF
A_WCLK
A_BCLK
A_DAT
MUTEN
AD_ACLK
AUDIO ENCODER I2S
YUV-YC-CVBS
ANALOG AUDIO VIDEO
BE_FAN
CVBS_OUT_B
C_OUT_B
Y_OUT_B
V_OUT_B
Y1_OUT_B
U_OUT_B
V_IN
U_IN
Y_IN
C_IN
CVBS_Y_IN
RESET_BEn
BE_DLOAD
S2B UART
FRONT-END I2S
4
9
DVD+RW ENGINE AV2
TRAY CONTROL
SERVO
READ
WRITE
DISC
PSU
INFRA RED
EYE
DISPLAY & CONTROL
PSU
IPOR_DC
I2C
2
CLOCK &
BACKUP
TUNER
INPUT/OUTPUT
PROCESSING &
SOURCE
SELECTION
DAC
CONTROL
uP
P50
ANALOG BOARD
MAINS
AC
DIGITAL PCB
ENGINE
5
DATA
&CONTROL
LASER
1933
1932
1
1234567
2
3
4
5
6
7
8
+3V3
+3V3
+3V3
+3V3
GND
GND
+5V
+12V
GND
GND
-5V
+12Vstby
-Vgnstby
SCL
SDA
INT
POR_DC
5STBY
1
2
4
6
8
9101112
A_xCLK
D_xCLK
F4712
F4714
F4716
F4718
F4720
F4722
2
1
AFCRI
AFCLI
CVBSFIN
CFIN
YFIN
3
4
5
7
8
9
8
1402
1922
1203
1942
1947
1986
1900
1943
1910
42853910
1900
1104
6
123456
7
+3V3
+5V
GND
GND
GND
+4V6E
-5V
+12V
8
1000
S-VIDEO
CVBS
AUDIO R
AUDIO L
AFCRI
AFCLI
CVBSFIN
8SW
CFIN
YFIN
7
ADC
1
2
3
4
5
6
7
8
9
12
14
16
18
20
22
1
+3V3
+5V
GND
GND
GND
+4V6E
-5V
+12V
POWER
OPEN/CLOSE
PLAY
STOP
RECORD
LEFT/RIGHT
TRACK
CHANNEL
TV GUIDE
FRONT PROCESSOR
D_DATAO
D_WCLK
D_BCLK
ONLY FOR SETS WITH DV IN
uP SUB BOARD
MULTI-MODE SOPS
10
DIGITAL PCB CHRYSALIS 2.1 / CHRYSALIS F
SDRAM
FLASH
VIDEO INPUT
PROCESSING
ANALOG VIDEO
DIGITAL AUDIO
RS232
SERVICE
I2S
S2B
PCI BUS
1500
1103
1704
1904
1100
PSU
1
2
4
6
8
1234567
+3V3
+3V3
+3V3
+3V3
GND
GND
GND
ION
+5V
+12V
8
1
91011
GND
-5V
12
DIG.VIDEO 656
20
21
18
2
4
3
7
9
11
12
14
22
20
18
16
14
Y
Cb
Cr
1946
Y
Cb
Cr
Y
Cb
Cr
Y
Cb
Cr
AUDIO L/R
CVBS
S-VIDEO
AUDIO DIGITAL
S-VIDEO
CVBS
AUDIO L/R
COMP. VIDEO /
PROG. SCAN
OUT
COMP.
VIDEO
ANTENNA INPUT
TV OUT
PHY
LINK
AUDIO OPTICAL
IO EXTENSION
BOARD
DAOUT
2
1901
DAOUT
2
1920
1923
G LINK IR OUT
G LINK UART
IR_OUT
3
GLINK_RXD
GLINK_TXD
DATA ACQUISITION
OSD GENERATION
OSD
INSERTION
12
14
16
18
20
22
1952
EPG
PROCESSING
1951
1
3
5
7
9
1941
1940
OSD
INSERTION
19531950
PSU
I2C
1970
EPG BOARD 2/2
EPG BOARD 1/2
GLINK
F4709
Only for DVDR80
AUDIO DIGITAL
Only for DVDR75
CHRYSALIS PNX7100
MPEG 2, AC3 CODEC
1105
BOOT
EEPROM
USRDATA
EEPROM
DIGITAL AUDIO
I2C I2C
Optional
Optional
ION
STBY
ION
STBY
1987
1984
22
Video
Deinterlacer
Line Doubler
FAROUDJA
FLI2301
SDRAM
CHRY. F
VIDEO
ENC
CHRY.
PROG.
TR 09002_001
070403
A: DC, 500mV/Div
10us/Div
A_YCVBS F4709
A: DC, 200mV/Div
10us/Div
D_CVBS F4712
A: DC, 200mV/Div
:
10us/Div
D_Y F4714
A: DC, 200mV/Div
10us/Div
D_VR F4718
A: DC, 200mV/Div
:
10us/Div
D_YG F4720
A: DC, 200mV/Div
10us/Div
D_UB F4722
2V / div AC 10us / div
2V / div AC 200ns / div
AD_WCLK; AE_WCLK
AD_BCLK; AE_BCLK
2V / div AC 50ns / div
AD_ACLK
D_C F4716
A: DC, 200mV/Div
10us/Div
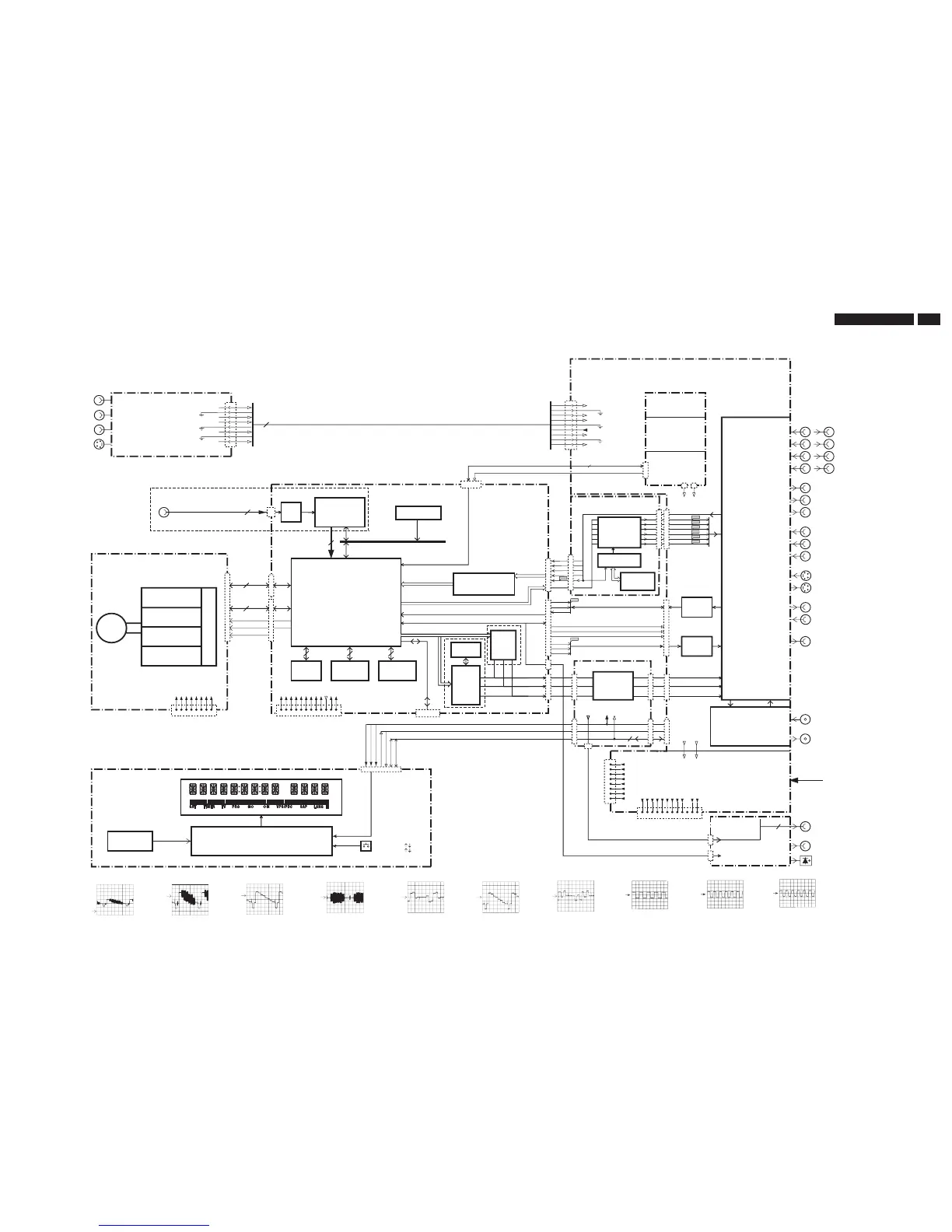
6. Diagramas em Blocos, Formas de Onda e Diagramas de Ligação
Diagrama em Blocos Geral - Painel Digital 2.1 Chrysalis

Other manuals for Philips DVDR75

Related product manuals