EasyManua.ls Logo

Philips DVDR75 - Timer Recording Programming; Timer Programming Basics and VPS;PDC

Philips DVDR75
117 pages
Print Icon
To Next Page IconTo Next Page
To Next Page IconTo Next Page
To Previous Page IconTo Previous Page
To Previous Page IconTo Previous Page
Loading...
70
DVDR75
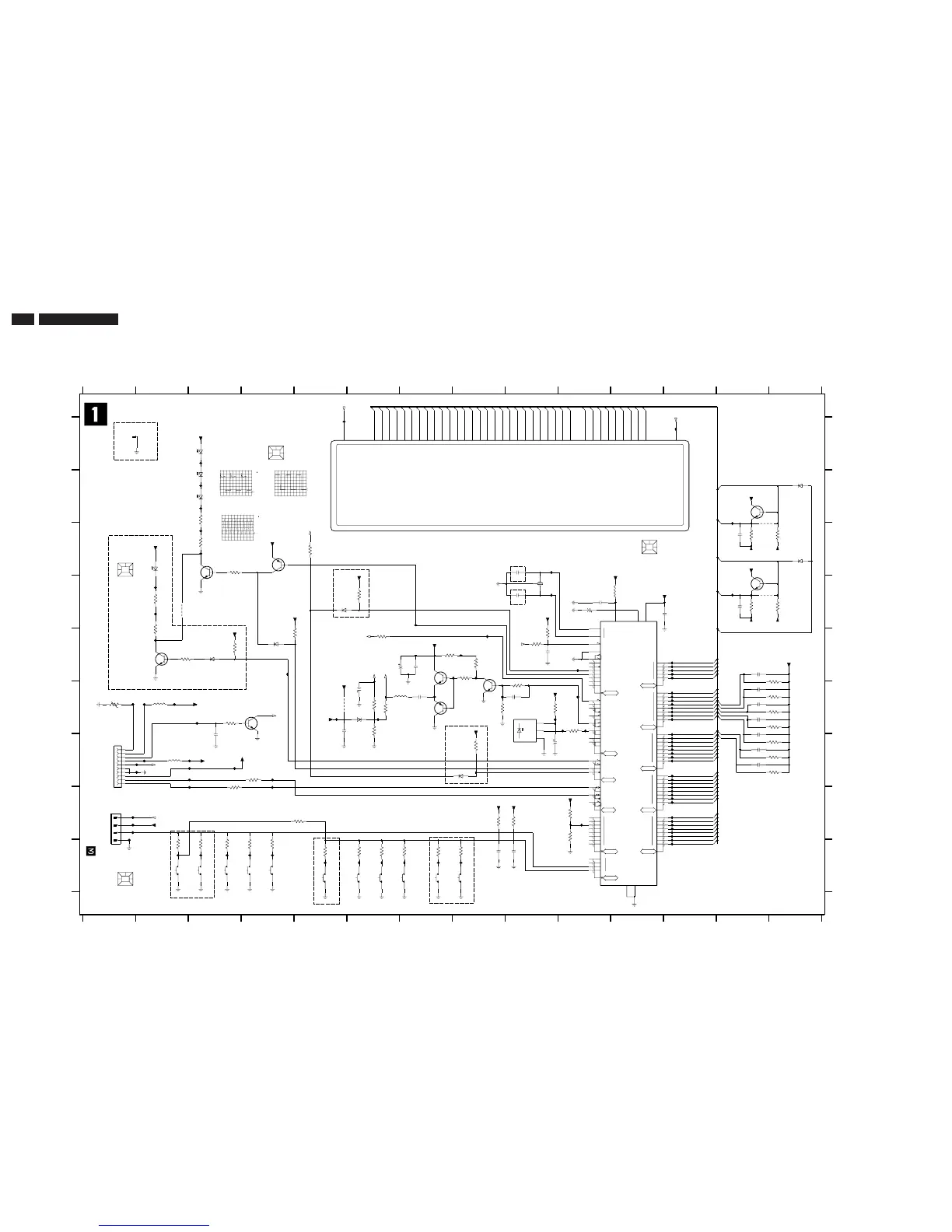
7. Esquemas Elétricos & Layouts de Paineis
Esquema Elétrico - Painel Display
-T
13
12
11
10
7
INT0
INT1
TC2
DVO
TEST
VKK
VDD
VAREF
14
13
12
11
10
9
8
23
16
21
20
19
18
17
P4<0:7>
AIN
P5<0:3>
PD<0:4>
V3
P6<0:7>
V
P7<0:7>
V
P8<0:7>
V
P9<0:7>
V
SO1
5
6
7
6
5
4
3
2
1
0
15
VSS
PDO
2
1
XTAL
P0<0:7>
PPG
PWM
TC4
TC1
SCK0
0
1
2
3
4
5
6
SI1
SCK1
RESET
VASS
INT3
INT2
INT4
INT5
XTIN
XTOUT
SCL
SDA
22
TC3
P1<0:7>
STOP
P2<0:2>
SI0
SO0
P3<0:2>
AIN
31
30
29
28
27
26
25
24
2
3
4
not used
to STBY-PRINT
A
B
C
D
E
F
G
H
I
0005 A4
0206 C11
0210 I1
0211 C1
1110 D9
1111 A1
1160 I7
1161 I8
1162 I5
1163 I3
CH+
STOP
OPEN/CLOSE
EPG
CH-
1234567891011121314
12345
from/to Analogboard
GND
GND
6 7 8 9 1011121314
A
B
C
D
E
F
G
H
I
PLAY
RIGHT
not used
1164 I2
1165 I6
1166 I3
1167 I6
1168 I4
1169 I6
1170 I4
1910 G1
1911 H1
2100 I8
2101 D10
2102 D10
2103 I9
2104 D11
VGNSTBY
not used
not used
2105 G3
2108 D9
2109 C9
2110 E6
2111 E7
2112 E9
2113 F7
2114 F9
2115 F5
2116 G9
2117 F6
Tray_Led
not used
5VSTBY
2118 E13
2119 F13
2120 F13
2121 F13
2122 F13
2123 C13
2124 D13
2125 G13
2126 G13
3100 C13
3101 D13
3102 H8
K1
for CSTEP only
RECORD
EPG
3103 I6
3104 I7
3105 I7
3106 I6
3107 H9
3108 I4
3109 I2
3110 I4
3111 F3
3112 G10
3113 E6
3114 G4
3115 G3
3116 E7
3117 E9
12VSTBY
3118 E8
3119 F6
3120 F9
3121 F9
3122 F6
3123 F6
3124 F8
3125 E8
3126 E9
3127 C14
3128 D14
3129 I8
3130 I3
3131 I3
3132 H10
3133 H10
3134 F1
3135 I5
3136 D2
+12VSTBY
ZL
3137 B3
3138 E2
3139 C3
3140 G8
3141 C3
3142 D6
3143 C5
3144 E4
3145 E3
3146 E2
3147 E14
3148 F14
3149 F14
3150 F14
3151 G14
3152 G14
3153 G14
3154 H5
4100 B13
4101 D13
4102 D2
5100 D11
5101 F2
5103 G2
not used
5104 F7
6100 F6
6101 A3
6102 B3
6103 B3
6105 B14
6106 C14
6107 C2
6109 G8
6110 D5
6111 E4
6112 E3
7100 A5
7101 B13
7102 D13
7103 E11
7104 F4
7105 C3
7106 E7
7107 F9
7108 F7
7109 E8
7110 E2
for CSTEP only
7112 C4
9101 F5
F102 G3
F103 F2
F104 G3
F1401 F1
F1402 F2
F1403 F3
F1404 G2
F1405 G1
F1407 G2
F1408 G3
F1409 G2
F1410 G3
F1501 H1
F1502 H1
F1503 H1
F1504 H1
I100 E12
I101 E12
I102 E12
I103 E12
I104 E12
I105 I12
I106 H12
I107 H12
GND
for CSTEP only
I108 H12
I109 H12
I110 H12
I111 H12
I112 H12
I113 H12
I114 H12
I115 H12
I116 H12
I117 G12
I118 G12
I119 G12
I120 G12
I121 G12
I122 G12
I123 G12
I124 G12
I125 G12
I126 G12
I127 G12
I128 F12
I129 F12
not used
50V
not used
I130 F12
I131 F12
I132 F12
I133 F12
I134 F12
I135 F12
I136 F12
I137 H10
I142 F10
I143 F10
I144 F10
I147 E8
I150 D9
I151 D9
I155 E10
I156 D7
I157 F5
I158 F6
I159 F7
I160 E8
I161 E8
I162 F8
I163 F8
I165 F10
I166 I4
I167 I4
4K7
VGNSTBY
I168 I3
I169 I8
I170 I7
I171 I7
I172 I6
I173 G4
I174 G4
I175 D13
I176 B13
I177 A5
NEXT
not used
50V
not used
I178 A12
I179 I6
I180 I3
I181 I2
I182 A3
I183 B3
I184 E4
I185 I5
I189 D2
I190 B3
I191 D2
I192 C3
I193 E2
I194 C3
for CSTEP only
for CSTEP only
for CSTEP only
LEFT
REC
PREV
0211
HOLDER EPG
1162
3135
EVQ11L05R
180R
3136
I185
+5VSTBY
GND
BAS316
6105
I176
GND
+5VSTBY
GND
4102
3154
10K
LIGHT CHAMBER RECORD
0210
I128
3112
1K0
10n
2100
3102
2K2
GNDGND GND
PROTECTION FOIL
0005
I108
I162
I175
GND
100p
2124
I142
3146
22K
BAS316
6112
3129
1K0
F1503
3103
3147
22K
10K
220R
3104
+12VSTBY
I133
EVQ11L05R
1165
F1401
1166
EVQ11L05R
GND
I110
BAS316
6110
2
GND
1
OUT
3
VS
GND
7107
TSOP4836ZC1
LW-3333-T2-5
6107
PDTA124EU
7112
GND
I100
I106
GND
I158
7105
BC847BW
EVQ11L05R
GND
GND
I184
1168
EVQ11L05R
+5VSTBY
GND
GND
1163
I169
I125
I170
I178
I136
I157
2105
I192
GND
3152
22K
I103
10u
2125
100p
5100
270R
I112
+5VSTBY
3137
VKK
2114
1n0
1164
GND
I166
EVQ11L05R
47K
3108
3151
47K
22K
10K
3141
3145
1911
DA
1
2
3
4
F1408
I182
6100
BZX384-C6V8
I189
3124
10K
7101
BC847BW
I131
GND
I115
100K
I183
3128
I144
I193
1170
I143
+12VSTBY
EVQ11L05R
GNDGND
100n
2104
BC847BW
7104
4
5
6
7
8
9
FMN
1
10
2
3
F103
1910
10K
3117
+12VSTBY
I163
+5VSTBY
F1502
2110
10u
GND
GND
3153
22K
2116
22u
+12VSTBY
I191
BAS316
6111
270R
3139
3100
22K
I147
10K
GND
10K
3142
3143
+5VSTBY
100p
2119
+5VSTBY
2113
680n
I173
3115
100R
I126
I132
2K2
I117
3109
470R
3125
I119
F1410
735187
1111
1
I127
I172
I120
4101
4100
+5VSTBY
BAS316
6106
3133
6102
LTL-1MHHR
330R
3118
1K0
330R
3116
0206
DISPLAY HOLDER
+5VSTBY
BC327-25
7108
GND
I137
I194
GND
3134
2322640
10K
I174
47n
2115
BC847BW
7102
2101
47n
22p
2108
I167
3110
220R
I168
I121
3149
22K
I159
10K
3144
I107
22p
2109
I109
I155
F1402
I101
I104
2103
10n
1K0
GND
22K
3148
3113
2120
100p
I165
BLM18H
GND
5101
3119
3140
10K
470R
7106
BC337-25
47n
2111
I160
100K
3127
I171
16V
22u
2102
LTL-1MHHR
6103
I102
I114
1110
2
13
I134
8M0
EFOMC
BC847BW
7110
2123
100p
I124
GND
I129
20
P17
21
P18
22
P2
6
P3
7
P4
8
P5
9
P6
10
P7
11
P8
12
P9
13 25
G2
26
G3
27
G4
28
G5
29
G6
30
G7
31
G8
32
G9
33
P1
5
P10
14
P11
15
P12
16
P13
17
P14
18
P15
19
P16
23 24 34 35 36 37 38 39 40 41
F1
1
F2
45
G1
2118
100p
BJ900GNK
7100
+5VSTBY
100p
2122
I116
F1403
22K
3101
LTL-1MHHR
6101
F1504
GND
2117
22u
I130
GND
F1409
5103
BLM18H
2126
100p
F104
+5VSTBY
3150
22K
+12VSTBY
GND
I123
I156
I118
3120
1K0
GND
GND
2K2
3105
I161
2121
100p
7
9
8
220n
2112
73
74
75
76
77
10
13
39
38
40 78
63
64
65
66
67
68
69
70
71
72
52
53
54
55
56
57
58
59
60
61
62
41
42
43
44
45
46
47
48
49
50
51
28
29
30
31
32
33
34
35
36
37
20
21
22
14
12
11
23
24
25
26
27
1
2
3
4
5
6
15
16
17
18
19
7103
TMP87CH74F
79
80
100u
5104
Φ
MC
I151
3138
180R
F1405
I122
I113
F1501
I135
F1407
3111
22K
F1404
I177
470R
3123
3131
1K0
I105
BAS316
6109
EVQ11L05R
1160
EVQ11L05R
1161
3122
10K
220R
3121
GND
I181
9101
GND
I150
3132
VKK
GND
+5VSTBY
1K0
3114
100R
VKK
VGNSTBY
GND
3106
47K
1169
EVQ11L05R
GND
EVQ11L05R
1167
BC847BW
7109
3107
2K2
F102
I190
I111
+5VSTBY
3126
100R
3130
10K
I180
+5VSTBY
I179
G1
SCL
FIL1
G7
G6
G5
G4
G3
VKK
VKK
G8
G2
P3
P4
P5
P6
P7
P8
P10
P11
P9
P12
P13
G1
G2
G3
G4
G5
G6
G7
G8_9
V2
V0
IPOR
SDA
TEMP_SENSE
POR_DC
P27
P26
P25
P24
P23
P22
P21
P20
P19
P18
P17
P16
P15
P14
P1
P2
Tray_Led
P6
P7
P8
P9
P10
P11
P12
P13
P18
P17
P16
P15
Tray_Led
V0
VKK
VKK
G8
G2
G3
G4
G5
G6
G7
G1
G9
P14
P1
P2
P3
P4
P5
INTINT
P27
P26
P25
P24
P23
P22
P21
P20
P19
V2
G8_9
FIL2
G9
FIL1
FIL2
INT
or EPG Board for sets with Guide Plus
1.9V
2.1V
0.4V
4.8V
4.8V
5.4V
5.4V
4.8V
5V
0V
0.1V
9.4V
7.5V
0.1V
5V
0.1V
-23.9V
-24V
-23.9V
-24V
-26.5V
5.1V
A: DC, 2 V/Div, 10us/Div
7106/7108-Emitter
A: DC, 1 V/Div, 10us/Div
IC7103-19
A: DC, 1 V/Div, 100ns/Div
IC7103-8
TR 06019_001
030203

Other manuals for Philips DVDR75

Related product manuals