EasyManua.ls Logo

Philips DVDR75 - Page 80

Philips DVDR75
117 pages
Print Icon
To Next Page IconTo Next Page
To Next Page IconTo Next Page
To Previous Page IconTo Previous Page
To Previous Page IconTo Previous Page
Loading...
80
DVDR75
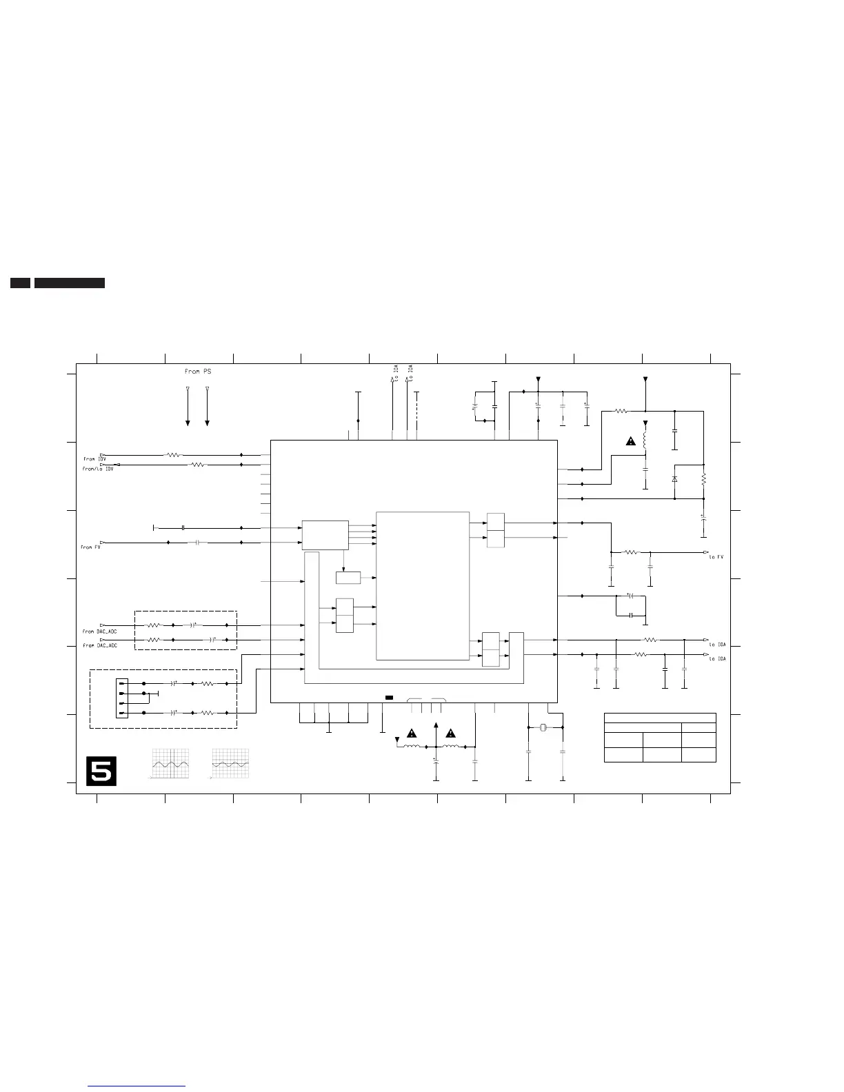
Esquema Elétrico Painel Analógico: Processamento Multi Sound (MSP)
LOUDSPEAKER L
D/A
D/A
I2SL/R
HEADPHONE R
IDENT
NC
SCART
LOUDSPEAKER R
A/D
D/A
DEMODULATOR
S1...4
FM1
FM2
I2SL/R
NICAM B
NICAM A
SCART-L
HEADPHONE L
IDENT
LOUDSPEAKER
A/D
D/A
SCART-L
SCART-R
DFP
SCART-R
Switching Facilities
4
I604 A7
I603 A6
3605 D1
I623 E8
3601 B2
3602 B9
3603 B2
I621 E2
1600 F7
1960 E1
2600 A6
2601 A6
2602 A7
D
F6001 E1
F
2618 E9
2619 E9
2609 C2
I619 D2
4
I609 D8
3604 D1
2626 E2
56
Pos. 7600
F6004 E1
B
C
I606 C3
I610 F7
2607 C2
2608 C9
I608 C3
not used
VERSION TABLE
2604 A9
2
A
I617 B8
I618 D2
1
I613 F6
not used
ALL OTHERS
2627 E2
2630 C9
I614 B8
*
2606 B8
for NAFTA only
I620 E2
TAIWAN
for DVIN only
I631 E2
I632 C8
S. KOREA
8
*
2603 A7
E
2605 F5
5601 F5
I601 A7
I602 A4
I607 C2
3607 E2
4601 A5
5600 A8
D
2631 C8
not used
3
I612 F5
2610 D8
1
2624 D2
3
2616 E8
2617 E8
from DVIO-Board
6600 B9
3611 D9
F
9
A
I611 F7
I615 B3
I616 B3
NAFTA
APAC
2611 A8
2612 D8
2 56789
2623 F6
2625 D2
3606 E2
7
B
5602 F6
3612 E8
2621 F7
3613 C8
I627 D2
I629 D2
I630 E2
MSP3425G
2620 F7
MSP3415G
3600 A8
QFP44
C
7600 A3
F6002 E1
E
I605 B8
47u
2611
MSP3425G
I632
I609
2619
4n7
2606
100n
2600
10u
100n
2603
F6001
3603
100R
I602
3p3
2620
3600
10K
5601
10u
5SW1
I607
2602
10u
56p
2609
2624
2u2 50V
GND
I619
I623
I616
100R
3601
2627
2u2 50V
GND
I627
2605
10u
GND
I631
5SW1
I612
18M432
1600
HC-49/U
GND
2610
10n
GND
2604
10n
1n0
2617
2612
4u7
2630
4n7
2621
3p3
F6004
GND
2618
4n7
GND
GND
GND
GND
I629
10u
5602
I615
GND
3612
100R
1n0
2616
5SW
1K0
3607
50V2u2
2625
I621
8SW
I608
GND
GND
GND
BAS316
6600
I617
2631
3606
1K0
1n0
I605
I610
F6002
2607
56p
GND
GND
I620
I618
GND
GND
4601
I606
GND
I604
I611
100n
2623
2601
10n
I603
4K7
3602
50V2u2
2626
8SW
I614
3605
100R
I601
42
VREFTOP
5
XTAL_IN
6
XTAL_OUT
5SW
SC2_IN_L
38
SC2_IN_R
11
STBYQ
4
TESTEN
7
TP
29
VREF1
25
VREF2
22
RESETQ
40
SC1_IN_L
41
SC1_IN_R
31
SC1_OUT_L
30
SC1_OUT_R
37
I2S_DA_IN2
16
I2S_DA_OUT
15
I2S_WS
43
MONO_IN
23 24 28 32
D_CTR_IO0
8
D_CTR_IO1
12
I2C_CL
13
I2C_DA
14
I2S_CL
17
I2S_DA_IN1
21
1
AVSUP
34
CAPL_M
27
DACM_L
26
DACM_R
20
DVSS
19
DVSUP
9
AHVSS
33
AHVSUP
2
ANA_IN+
3
ANA_IN-
39
ASG
44
AVSS
18
ADR_CL
10
ADR_SEL
36
AGNDC
35
GND
7600
MSP3425G
GND
100R
3611
10u
5600
GND
3613
100R
5SW
GND
I630
1
2
3
4
100R
3604
10u
2608
1960
PH-B
I613
GND
AFER
AFEL
8SW
AMCO
ALDAC
ARDAC
GND
RSA2
RSA1
SDASW
SCLSW
SIF1
5SW
DVAR
DVAL
TR 06028_001
030203
5V
5V
1.5V
1.5V
3.8V
3.8V
3.8V
3.8V
5V
2.3V 2.2V
3.8V
3.8V
3.8V
2.1V
5.1V
5.1V
5V
5.9V
7.6V
2.6V
0V
0V
A: D
D
C, 1
1
V
V
/Div
1
1
00us/Div
I618/I619
A: D
D
C, 1
1
V
V
/Div
1
1
00us/Div
I623

Other manuals for Philips DVDR75

Related product manuals