EasyManua.ls Logo

Philips FW-C38/21 - Page 59

Philips FW-C38/21
81 pages
Print Icon
To Next Page IconTo Next Page
To Next Page IconTo Next Page
To Previous Page IconTo Previous Page
To Previous Page IconTo Previous Page
Loading...
10-7
CS 53 190
DATA
SDA
VCC
1805
D1-D5
D2-D4
7807
7806
7871
7873
TDA7073A
TDA7073A
TDA7073A
HEF4094BT
TTM+
TTM-
MOT2
LD ON
LD
MON
CD R/W
HF IN
V1
D1
D2
D3
D4
R1,R2
MOT1
SLEDGEB-
SLEDGEB+
RADB-
RADB+
FOCB-
FOCB+
+5V
+10V
SHR_CL
STR-OUTP
OE_LATCH
FLEX-FOIL
8001
REGISTER
SHIFT
SERVO - DECODER
CD10
SAA7324 (SAA7325)
Active low pass
Filter
TDA1308
MOTOR
TRAY MOTOR
CARROUSEL
CD DRIVE UP/DOWN SWITCH
1881
1880
TRAY SWITCH
1882
7874
CD POS.1 SWITCH
SL
O6
O5
O7
OO
VDD
+10V
O1
O2
O3
RA
FO
DIODES
PHOTO
D3D2
D5D1
D4
INNER SWITCH
SWITCH INFO
LASER &
MONITOR
DIODE
TURNTABLE
MOTOR
DISC
CD MECHANISM
FOCUS
MOTOR
RADIAL
MOTOR
SLEDGE
MOTOR
MOTOR
TURNTABLE
PHOTODIODE & HF AMPLIFIER - LOADER CONTROL PCB
EN1
DATA
STB
SHR_CL
SICL
SILD
PORE
7875
7801
+3,3V
,,,,,
,,,,,
,,,,,
CD LEFT
78517877
CD RIGHT
Laser Control
&
HF AMPLIFIER
TZA1024 (TZA1025)
55
54
56
38
7
18
20
21
23
15
5
2
3
22
23
18
19
2
4
6
5
9
SWITCH INFO
17
16
15
6
42
40
39
5,17,21,52,57
59
60
64
1
13
+5V
2
+5,6V
8
4
5
7
V5
62
15
63
10
11
6,14
12
13
15
2
1
3
16
11
4
5
6
7
5V1
+5V
+3,3V
SCL
SILD
RN
RP
LN
LP
PORE
+
-
+
-
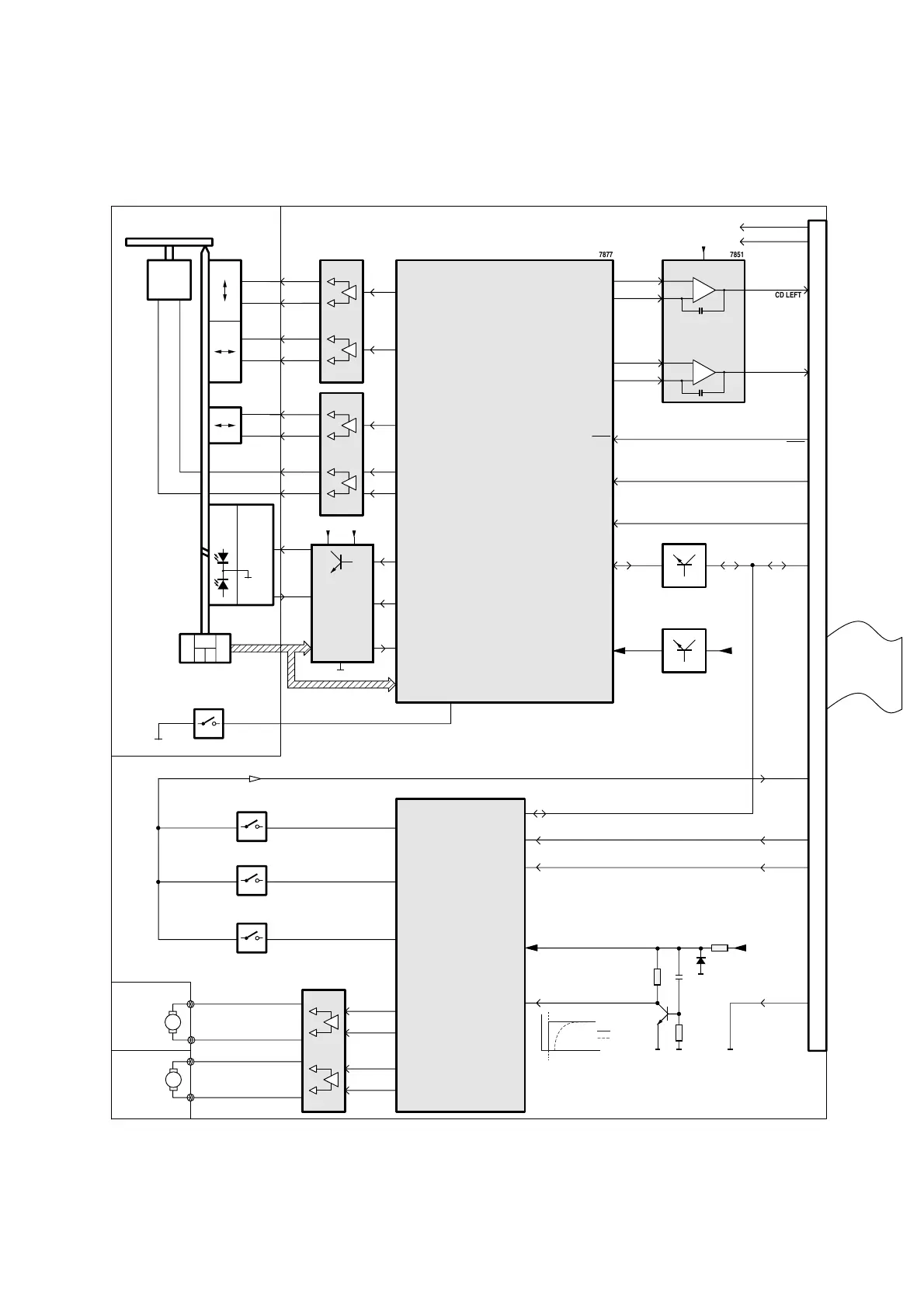
Blockdiagram 3CDC99 19981202
Closed if carrousel is in Position 1.
Closed if the tray is in one endposition.
Open during movement.
V
t
VDD (pin 16)
EN1 (pin 15)
Power on
Blockdiagram

Related product manuals