EasyManua.ls Logo

Philips VE8 - IR & LED Panel (VE

Philips VE8
140 pages
Print Icon
To Next Page IconTo Next Page
To Next Page IconTo Next Page
To Previous Page IconTo Previous Page
To Previous Page IconTo Previous Page
Loading...
114Q529.1A LA 7.
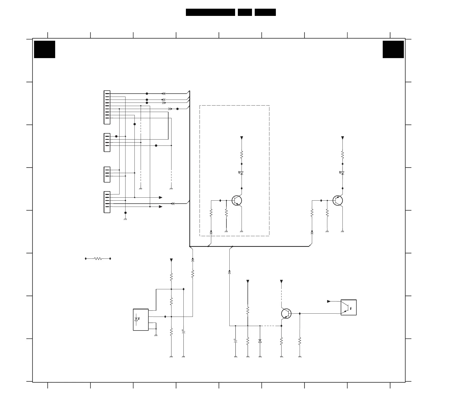
Circuit Diagrams and PWB Layouts
IR & LED Panel (VE)
I020 G3
I021 G6
I022 F4
I023 G6
LIGHT SPILL
9005 G6
F004 B3
F005 B3
F006 B3
F008 E2
F009 B4
F010 B2
F011 C2
F012 C3
I001 F1
I002 F2
I013 C5
I014 D7
I015 D7
I016 D5
I017 D5
I019 C7
LIGHTSPILL
"IR RECEIVER"
3073 G5
3077 H6
3079 H6
3080 E5
3081 E7
3999 F2
6051 D5
6052 D7
6053 H6
7051 D7
7061 D5
7070 G8
7071 G6
9001 D3
9002 C3
9003 D3
9004 F6
1P09 C2
2040 G4
2070 H5
3040 F3
3041 G3
3042 G3
3043 F4
3053 E7
3055 C7
3063 E4
3065 C5
3071 H5
RED
A
B
C
D
E
F
G
H
A
B
C
D
E
F
1M01 C2
1M20 B2
1P05 D2
KEYBOARD
2 3 45678
MAINS LED 2K8
WHITE
TO
123 45678
1
RESERVED
"LIGHT SENSOR"
G
H
1040 G3
SSB
6051
LTW- C1 93TS5
1
2
3
4
56
1M01
I022
BC847BW
7061
6052
SML-310
I023
3063
+5V2
10K
BC857BW
7051
3999
10K
3043
10R
3
I015
TSOP6136TT
1040
1
GND1
GND2
2
OUT
4
VS
3055
100R
TEMT6200FX01
7070
1
2
RES3079
1
2
3
4
5
67
4M7
1P05
BM05B-SRSS-TBT
RES
+5V2
9003
3065
68R
I001 I002
I020
I021
I017
F006
F008
F005
F004
100K
3073RES
9004
F012
BZX384-C3V3
6053
16V
+3V3-STBY
2040
100u
RES
10K
3041
6K8
3042
RES
1
2
3
45
9001
1P09
+3V3-STBY
I014
+3V3-STBY
F011
I016
I013
F009
F010
33K
3071RES
3077
8K2
+5V2
I019
+5V2
9005
RES
9002
16V100u
2070
BC847BW
7071
3
4
5
6
7
8
9
10 11
1M20
1
2
330R
3040
+5V2
3080
10K
3081
10K
RES
10K
LIGHT-SENSOR
3053
LED2
KEYBOARD
LIGHT-SENSOR
RC
LED2
LED1
TAC T SWITCH
RC
LED2
LED1
3139 123 6254.3
J
I_17660_094.eps
120308
J

Related product manuals