EasyManua.ls Logo

Philips VE8 - Page 62

Philips VE8
140 pages
Print Icon
To Next Page IconTo Next Page
To Next Page IconTo Next Page
To Previous Page IconTo Previous Page
To Previous Page IconTo Previous Page
Loading...
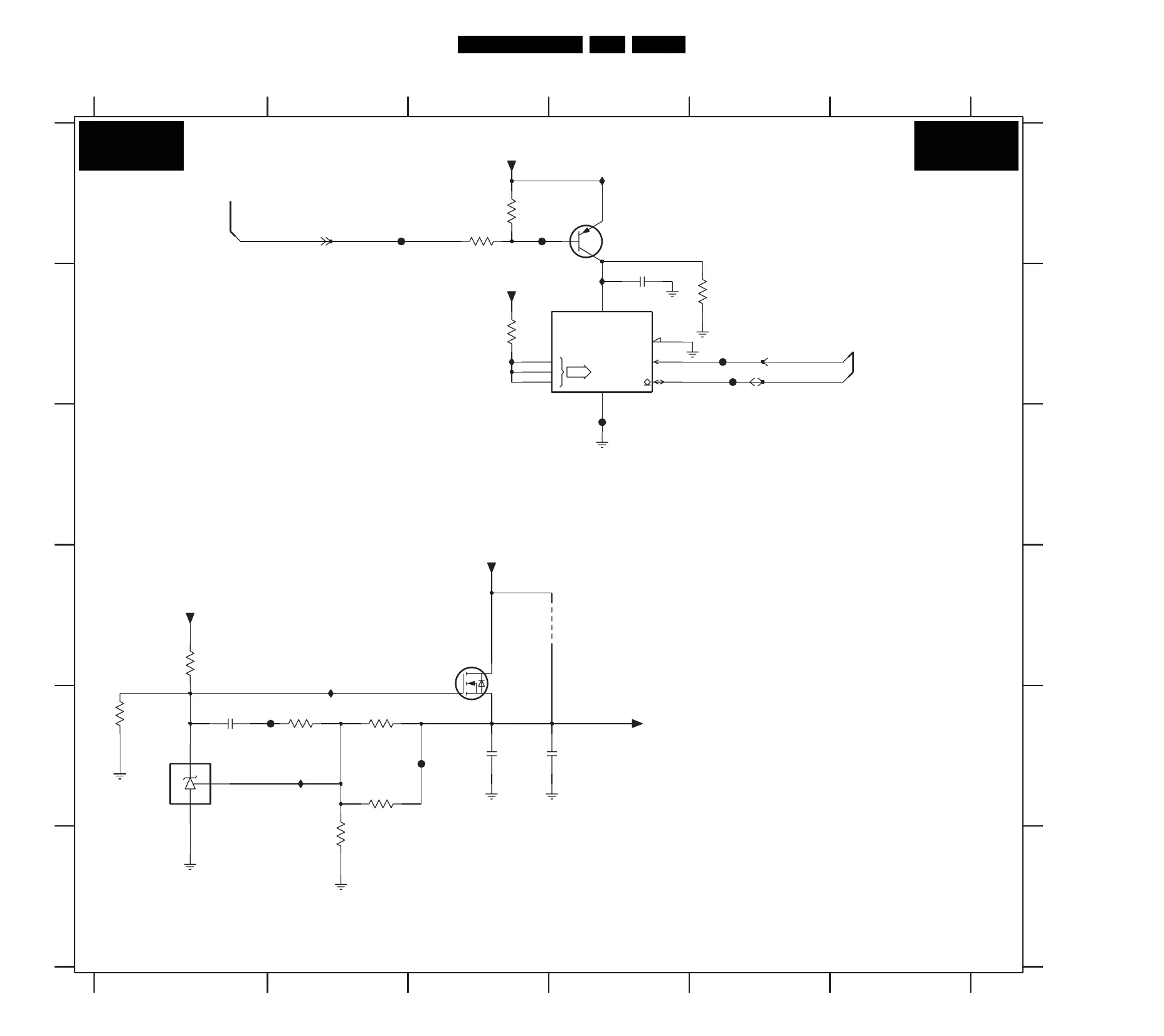
62Q529.1A LA 7.
Circuit Diagrams and PWB Layouts
SSB: PNX8541: NVM
SCL
ADR
0
1
2 SDA
WC
D
E
F
3H29 E1
3H33 E2
3H34 E2
12
3H35 F2
3H40 E2
2 3 456
F
A
MAIN NVM
2H04 E3
2H05 E3
2H09 E1
2HC0 B4
3H09 D1
7H05 E1
7HC3 B4
7HC4 A4
9H07 D4
3HC2-1 A3
3HC2-2 A3
3HC2-3 B5
3HC2-4 B3
7H04 D3
FHC6 A2
FHC7 C4
IH12 D2
IH21 B3
IH32 E2
FH03 E2
FH08 E3
FH09 A3
3 456
1
FHC1 B5
FHC2 B5
IHC1 B4
IHC2 A4
A
B
C
D
E
M24C64
C
B
PNX 8541: NVM
9H07
2K2
3H09
RES
FHC2
A
3 1
K
R
2
FH09
TS2431
7H05
7HC4
BC857BW
84
7
7HC3
1
2
3
6
5
(8Kx8)
Φ
EEPROM
3 6
FH08
+5V5-TUN
10K
3HC2-3
IH32
1u0
2H05
2H04
1u0
3H34
1K0
3H33
1K0
2H09
22n
1
3
PHD38N02LT
7H04
2
+5V-TUN
3H40
10K
+12VD
RES
+3V3-PER
FHC7
FH03
2HC0
100n
IH12
RES
IHC1
IH21
FHC1
3HC2-2
10K
72
3H29
10K
FHC6
IHC2
3H35
45
1K0
1 8
+3V3-PER
10K
3HC2-4
10K
3HC2-1
SCL-UP-MIPS
SDA-UP-MIPS
RESET-NVM
3139 123 6214.4
I_17660_015.eps
110308
B04C
B04C

Related product manuals