EasyManua.ls Logo

PlayGoPools 2200 - Above Ground Pool Installation: Patio Blocks Placement

Default Icon
28 pages
Print Icon
To Next Page IconTo Next Page
To Next Page IconTo Next Page
To Previous Page IconTo Previous Page
To Previous Page IconTo Previous Page
Loading...
9
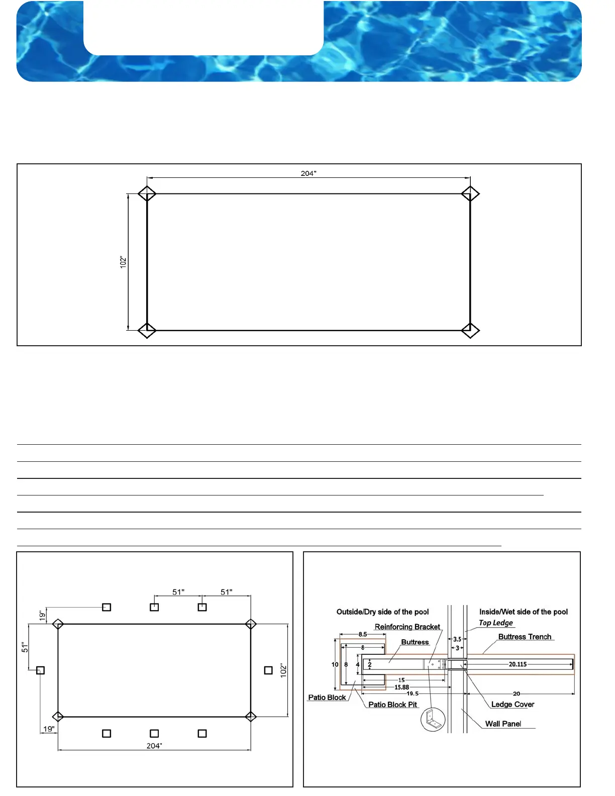
Patio Blocks Placement
• Square o and level four 8” (width) x 8” (length) x 2” (thickness) corner patio blocks 0.5” above the
ground level according to your pool size as shown on the illustration below. ese patio blocks will be
4.5” higher than the buttress patio blocks.
• Next, square o and level buttress patio blocks (centered every y one inch apart from each other
[six inches in ground]) in ground, placing the centers of the buttress patio blocks sixteen inches away
from your pools outer (dry side) wall size per sketch. Use a surveyor’s transit or carpenter level to
make sure that all the tops of the patio blocks are exactly square and level with the top of the ground
and with each other.
IMPORTANT: When stationing all the corner patio blocks, please make sure that all of these
patio blocks stick out 0.5” above ground level by all means. Also, when disposing all the buttress
patio blocks under the dry/outside ends of the Horizontal Buttresses, please place the 2”x2”x0.75”
Deection Compensators (provided with the hardware) under the dry/outside ends of the
Horizontal Buttresses, making sure that all of these dry/outside ends of the Horizontal Buttresses
stick out 0.75” above ground level by all means (the wet/inside ends of the Horizontal Buttresses
should not stick out above ground level at all) according to the pictures on Page 10.
ABOVE GROUND POOL
INSTALLATION